Connect

Find us on...

Dashboard

Login using...

Shawn Bengtson

Office Broker - DRE 01236964

  • Office 760-805-7199
Questions?

616 S Del Mar Avenue # H-k, San Gabriel – $2,462

  • $2.5k Price
  • .21 Acres
  • 107 DOM
  • $2.5k Price
  • .21 Acres
  • 107 DOM

616 S Del Mar Avenue # H-k

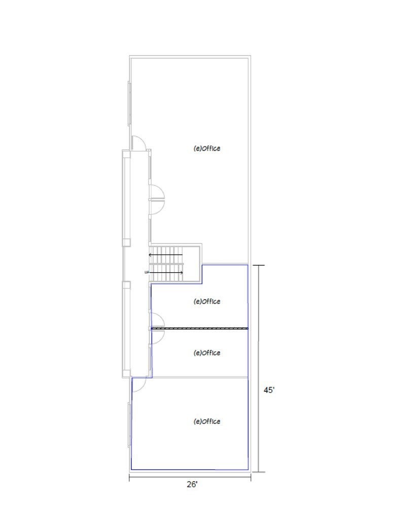
FOR LEASE – Prime Second-Floor Office Space | 1,094 SF | San Gabriel Discover an exceptional opportunity to lease a 1,094 square foot second-floor office suite in the heart of San Gabriel. Located at 616 S Del Mar Ave Suite H-K, this bright and versatile space sits in a newly remodeled building with abundant natural light, professional appeal, and ample onsite parking. Strategically positioned on busy Del Mar Avenue, the property offers unparalleled visibility and accessibility, just minutes from Las Tunas Drive, Valley Boulevard, and the historic Mission District. Your business will also benefit from the added security and peace of mind of being located directly across from the San Gabriel Police Department. Property Highlights: ±1,094 SF Second-Floor Office Newly Renovated Exterior for Modern Curb Appeal High-Visibility Location on Del Mar Ave Across from San Gabriel Police Department for Enhanced Safety Minutes from Las Tunas Dr, Valley Blvd, and Mission District Plentiful Onsite Parking for Staff & Clients Ideal for Professional Services, Medical, or Creative Use Don't miss this chance to establish your presence in one of San Gabriel’s most desirable commercial corridors.

Essential Information

  • MLS® #AR25175158
  • Price$2,462
  • Bathrooms0.00
  • Acres0.21
  • Year Built1992
  • TypeCommercial Lease
  • Sub-TypeOffice
  • StatusActive

Community Information

  • Address616 S Del Mar Avenue # H-k
  • Area654 - San Gabriel
  • CitySan Gabriel
  • CountyLos Angeles
  • Zip Code91776

Interior

  • # of Stories2

Exterior

Lot Description

Landscaped, Rectangular Lot, Street Level

Additional Information

  • Date ListedAugust 4th, 2025
  • Days on Market107

Listing Details

  • AgentVictor Tung
  • OfficeVictor Tung, Broker
Please provide a valid email address.

Victor Tung, Victor Tung, Broker.

Based on information from California Regional Multiple Listing Service, Inc. as of November 22nd, 2025 at 1:50pm PST. This information is for your personal, non-commercial use and may not be used for any purpose other than to identify prospective properties you may be interested in purchasing. Display of MLS data is usually deemed reliable but is NOT guaranteed accurate by the MLS. Buyers are responsible for verifying the accuracy of all information and should investigate the data themselves or retain appropriate professionals. Information from sources other than the Listing Agent may have been included in the MLS data. Unless otherwise specified in writing, Broker/Agent has not and will not verify any information obtained from other sources. The Broker/Agent providing the information contained herein may or may not have been the Listing and/or Selling Agent.