Connect

Find us on...

Dashboard

Login using...

Shawn Bengtson

Office Broker - DRE 01236964

  • Office 760-805-7199
Questions?

627 E Sierra Madre, Azusa – $4,400,000

  • $4.4M Price
  • 2.03 Acres
  • 14 DOM
  • $4.4M Price
  • 2.03 Acres
  • 14 DOM

627 E Sierra Madre

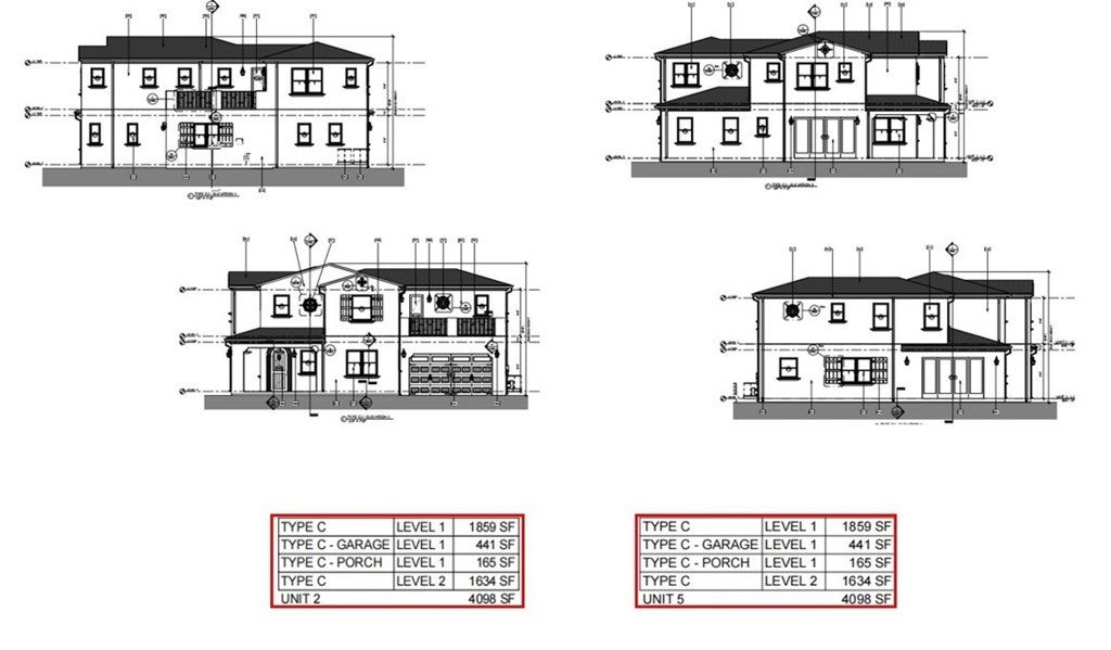
Building department approved/Fire Department approved An exceptional and rare development opportunity in the highly sought-after Rosedale neighborhood. This 2.03-acre parcel offers the potential to create an exclusive 8-home single-family community in one of the most desirable residential enclaves in the San Gabriel Valley. Key Highlights: Total Land Area: 2.03 acres Proposed Units: 8 single-family homes Total Buildable Area: Approximately 31,243 square feet Utilities: All major utilities available nearby Neighborhood: Surrounded by newly built homes, landscaped parks, and scenic walking trails Investment Potential: This property represents a rare infill development site within the established and upscale Rosedale community — a location where new construction opportunities are increasingly limited. Its scale and zoning make it ideal for boutique developers seeking to build a small gated enclave of luxury single-family residences with strong buyer demand and premium resale value. Highlights at a Glance: Prime Rosedale location with strong market fundamentals easy access to major freeways and Metro Gold Line Walking distance to community parks Don’t miss this rare chance to develop in one of Rosedale’s most coveted neighborhoods

Essential Information

  • MLS® #AR25245342
  • Price$4,400,000
  • Bathrooms0.00
  • Acres2.03
  • TypeLand
  • StatusActive

Community Information

  • Address627 E Sierra Madre
  • Area607 - Azusa
  • CityAzusa
  • CountyLos Angeles
  • Zip Code91702

Amenities

  • ViewCity Lights, Canyon

Utilities

Cable Available, Electricity Available, Natural Gas Available, Phone Available, Sewer Available, Water Available

Exterior

  • Lot DescriptionSixToTenUnitsAcre

Additional Information

  • Date ListedOctober 20th, 2025
  • Days on Market14
  • ZoningR

Listing Details

  • AgentTianwei Dong
  • OfficeHarvest Realty Development
Please provide a valid email address.

Tianwei Dong, Harvest Realty Development.

Based on information from California Regional Multiple Listing Service, Inc. as of November 19th, 2025 at 10:12am PST. This information is for your personal, non-commercial use and may not be used for any purpose other than to identify prospective properties you may be interested in purchasing. Display of MLS data is usually deemed reliable but is NOT guaranteed accurate by the MLS. Buyers are responsible for verifying the accuracy of all information and should investigate the data themselves or retain appropriate professionals. Information from sources other than the Listing Agent may have been included in the MLS data. Unless otherwise specified in writing, Broker/Agent has not and will not verify any information obtained from other sources. The Broker/Agent providing the information contained herein may or may not have been the Listing and/or Selling Agent.