Connect

Find us on...

Dashboard

Login using...

Shawn Bengtson

Office Broker - DRE 01236964

  • Office 760-805-7199
Questions?

1137 E Pico Blvd, Los Angeles – $7,008

  • $7k Price
  • .13 Acres
  • 5 DOM
  • $7k Price
  • .13 Acres
  • 5 DOM

1137 E Pico Blvd

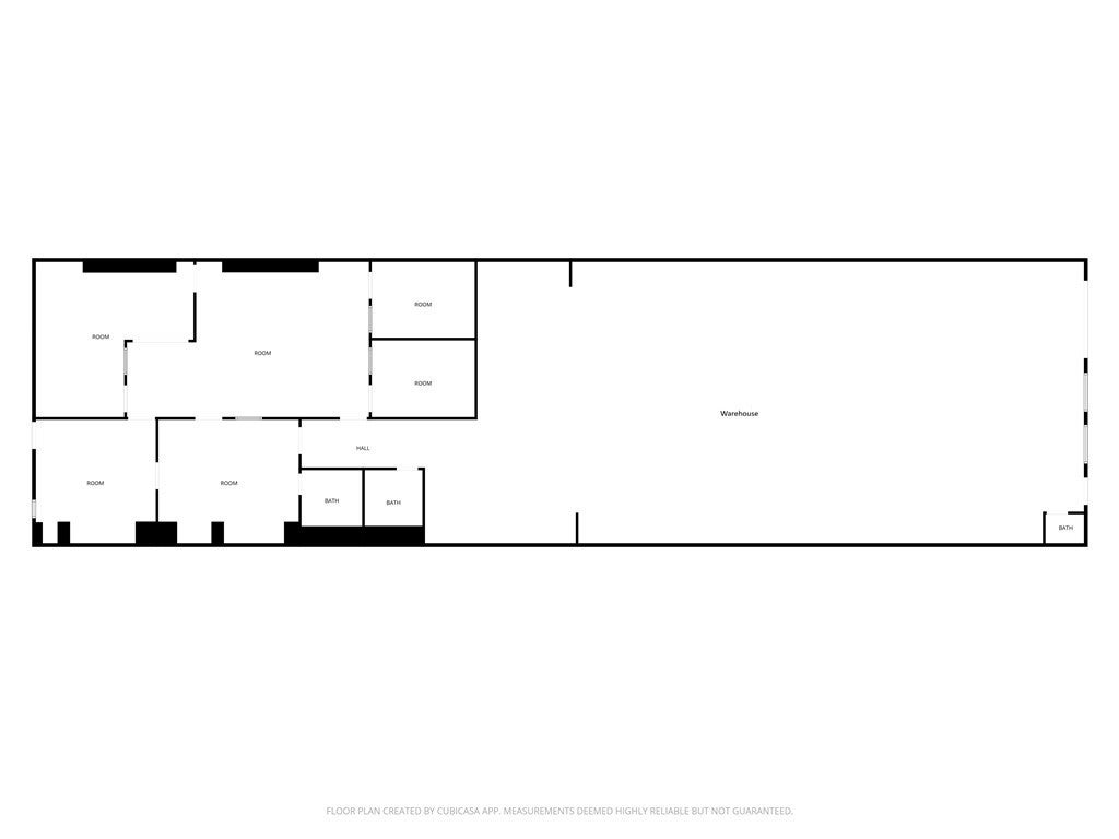
Rare opportunity to lease a 6,000 SF light industrial building located in the heart of Downtown Los Angeles’ Central City East industrial corridor. Built in 1924, this classic brick warehouse offers a functional blend of open warehouse space and dedicated office build-out, making it ideal for manufacturing, creative industrial, storage, distribution, or showroom use. The property features approximately 40 feet of frontage on Pico Blvd and is zoned LAM2, allowing for a wide range of industrial uses. PROPERTY HIGHLIGHTS ±6,000 SF total building area ±2,263 SF existing office build-out (private offices, reception, restrooms) Large open warehouse floor Bow-truss ceiling with high clearance Street front and alley access LAM2 Zoning (Light Industrial) Ideal uses: Apparel / Fashion, Creative Studio, Showroom + Warehouse, Light Manufacturing, E-commerce / Distribution, Storage / Contractor Yard (verify​​‌​​​​‌​​‌‌​​‌​​​‌‌​​​​​​‌‌​‌‌​​‌​​​‌‌​ use)

Essential Information

  • MLS® #AR26038118
  • Price$7,008
  • Bathrooms0.00
  • Acres0.13
  • Year Built1924
  • TypeCommercial Lease
  • Sub-TypeIndustrial
  • StatusActive

Community Information

  • Address1137 E Pico Blvd
  • AreaC42 - Downtown L.A.
  • CityLos Angeles
  • CountyLos Angeles
  • Zip Code90021

Amenities

Utilities

Electricity Connected, Sewer Connected, Water Connected

Interior

  • CoolingCentral Air
  • # of Stories1

Exterior

  • ExteriorBrick
  • Lot Description0-1 Unit/Acre
  • ConstructionBrick

Additional Information

  • Date ListedFebruary 13th, 2026
  • Days on Market5
  • ZoningLAM2

Listing Details

  • AgentJohn Lin
  • OfficeCRE Decentralized
Please provide a valid email address.

John Lin, CRE Decentralized.

Based on information from California Regional Multiple Listing Service, Inc. as of February 25th, 2026 at 7:51pm PST. This information is for your personal, non-commercial use and may not be used for any purpose other than to identify prospective properties you may be interested in purchasing. Display of MLS data is usually deemed reliable but is NOT guaranteed accurate by the MLS. Buyers are responsible for verifying the accuracy of all information and should investigate the data themselves or retain appropriate professionals. Information from sources other than the Listing Agent may have been included in the MLS data. Unless otherwise specified in writing, Broker/Agent has not and will not verify any information obtained from other sources. The Broker/Agent providing the information contained herein may or may not have been the Listing and/or Selling Agent.