Connect

Find us on...

Dashboard

Login using...

Shawn Bengtson

Office Broker - DRE 01236964

  • Office 760-805-7199
Questions?

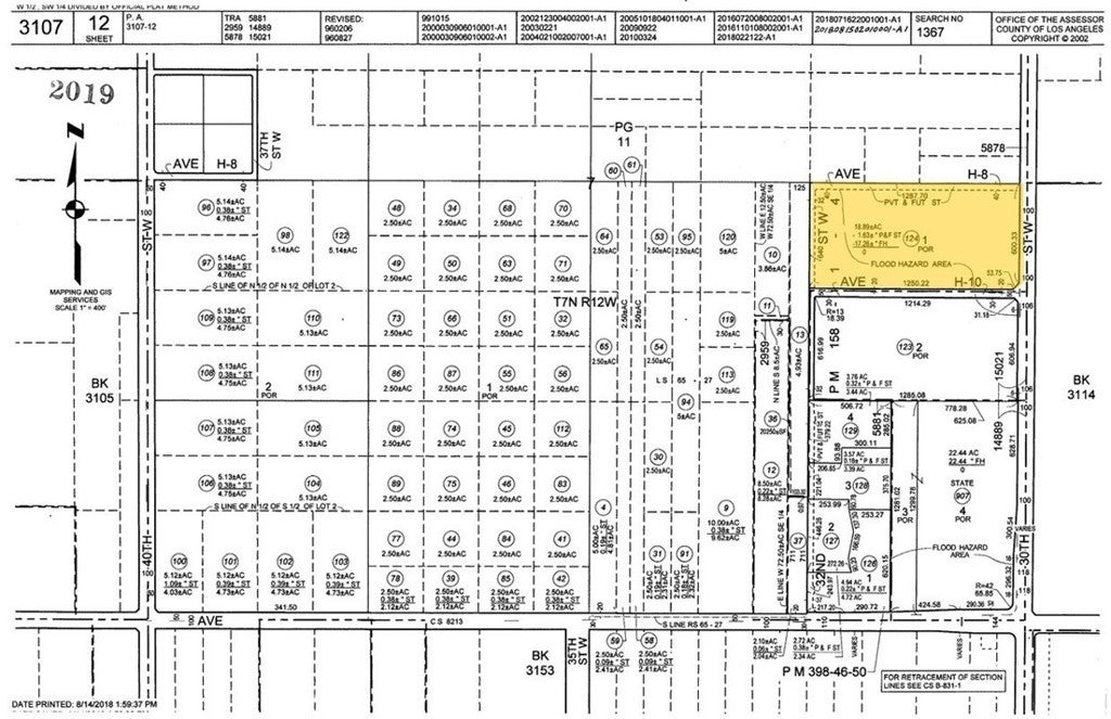
30 Avenue H, Lancaster – $5,250,000

  • $5.3M Price
  • 18.89 Acres
  • 10 DOM
  • $5.3M Price
  • 18.89 Acres
  • 10 DOM

30 Avenue H

This development land is located right next to the copper square apartment complex. Zoning is LRMUE (Low Density Residential Mixed Used) and can build 200+ units which buyer needs to very with the city.

Essential Information

  • MLS® #AR26049583
  • Price$5,250,000
  • Bathrooms0.00
  • Acres18.89
  • TypeLand
  • StatusActive

Community Information

  • Address30 Avenue H
  • AreaLAC - Lancaster
  • CityLancaster
  • CountyLos Angeles
  • Zip Code93536

Amenities

  • ViewNone

Exterior

  • Lot DescriptionSixteenToTwentyUnitsAcre

Additional Information

  • Date ListedMarch 6th, 2026
  • Days on Market10
  • ZoningLRMUE

Listing Details

  • AgentSteve Kwon
  • OfficeKeller Williams Realty
Please provide a valid email address.

Steve Kwon, Keller Williams Realty.

Based on information from California Regional Multiple Listing Service, Inc. as of March 16th, 2026 at 7:30pm PDT. This information is for your personal, non-commercial use and may not be used for any purpose other than to identify prospective properties you may be interested in purchasing. Display of MLS data is usually deemed reliable but is NOT guaranteed accurate by the MLS. Buyers are responsible for verifying the accuracy of all information and should investigate the data themselves or retain appropriate professionals. Information from sources other than the Listing Agent may have been included in the MLS data. Unless otherwise specified in writing, Broker/Agent has not and will not verify any information obtained from other sources. The Broker/Agent providing the information contained herein may or may not have been the Listing and/or Selling Agent.