Connect

Find us on...

Dashboard

Login using...

Shawn Bengtson

Office Broker - DRE 01236964

  • Office 760-805-7199
Questions?

32371 Middle Ridge Road, Albion – $625,000

  • 3 Beds
  • 2 Baths
  • 1,605 Sqft
  • 4 Acres
  • 3 Beds
  • 2 Baths
  • 1,605 Sqft
  • 4 Acres

32371 Middle Ridge Road

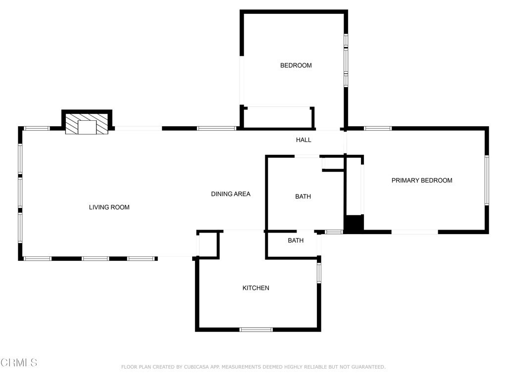
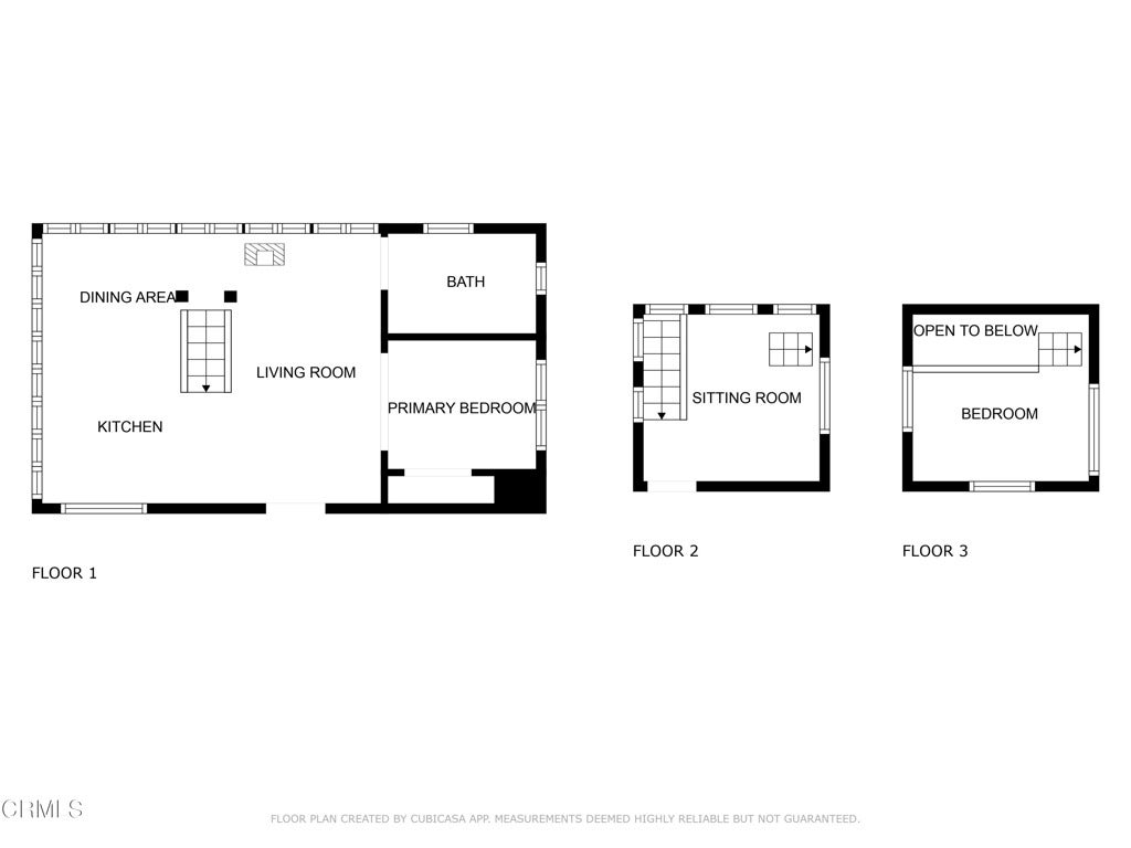
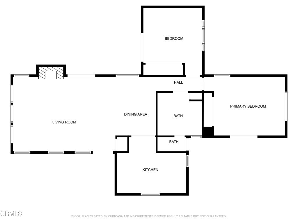
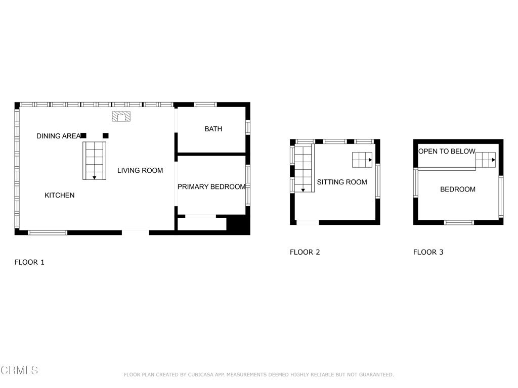
The Water Tower Farm - A Storybook Setting on 4 Acres of Country QuietA blend of redwoods and open meadows, this unique property offers a peaceful retreat with a touch of magic. The four-acre parcel provides generous space for gardens, fruit trees, or a few farm animals. During the rainy season, a vernal pond appears, attracting birds and wildlife and adding to the land's natural charm. The setting feels secluded and serene. At night, the stars shine brightly in the clear country sky, and the air remains cool and fresh, thanks to the nearby ocean.The main home of 1140 sf, features architecturally unique, swooping lines, along with two bedrooms and one bathroom. Warm wood accents throughout make the space feel both comfortable and inviting. Nearby, the picturesque water tower house offers a delightful surprise and an additional 455+sf of living space. On the main level, there is a sitting area, kitchenette, bathroom, and sleeping alcove. The next level includes a flexible space that could serve as a bedroom, studio, or reading room. Above that, a ladder leads to a lofted bed area tucked beneath the rafters.The land is level and accessible, ready for your vision to take shape. If you are seeking a small homestead, a weekend escape, or a home that feels like it stepped out of a storybook, this property welcomes your imagination.

Essential Information

  • MLS® #C1-11026
  • Price$625,000
  • Bedrooms3
  • Bathrooms2.00
  • Full Baths2
  • Square Footage1,605
  • Acres4.00
  • Year Built1974
  • TypeResidential
  • Sub-TypeSingle Family Residence
  • StatusActive

Community Information

  • Address32371 Middle Ridge Road
  • AreaMDA - Mendocino - Albion
  • CityAlbion
  • CountyMendocino
  • Zip Code95410

Amenities

  • ViewNone
  • PoolNone

Interior

  • InteriorTile, Wood
  • HeatingCentral, Propane
  • CoolingNone
  • FireplaceYes
  • FireplacesPropane
  • StoriesOne

Exterior

  • Lot DescriptionSprinklers None

Additional Information

  • Date ListedMay 21st, 2025
  • Days on Market275
  • ZoningRMR 20

Listing Details

  • AgentSheri Molina
  • OfficeCentury 21 Seascape Realty
Please provide a valid email address.

Price Change History for 32371 Middle Ridge Road, Albion, (MLS® #C1-11026)

Date Details Change
Price Reduced from $645,000 to $625,000 $20,000 (3.10%)
Price Reduced from $655,000 to $645,000 $10,000 (1.53%)
Price Reduced from $675,000 to $655,000 $20,000 (2.96%)
Price Reduced from $699,000 to $675,000 $24,000 (3.43%)
Status Changed from Active Under Contract to Active
Show More (4)

Sheri Molina, Century 21 Seascape Realty.

Based on information from California Regional Multiple Listing Service, Inc. as of February 20th, 2026 at 12:36pm PST. This information is for your personal, non-commercial use and may not be used for any purpose other than to identify prospective properties you may be interested in purchasing. Display of MLS data is usually deemed reliable but is NOT guaranteed accurate by the MLS. Buyers are responsible for verifying the accuracy of all information and should investigate the data themselves or retain appropriate professionals. Information from sources other than the Listing Agent may have been included in the MLS data. Unless otherwise specified in writing, Broker/Agent has not and will not verify any information obtained from other sources. The Broker/Agent providing the information contained herein may or may not have been the Listing and/or Selling Agent.