Connect

Find us on...

Dashboard

Login using...

Shawn Bengtson

Office Broker - DRE 01236964

  • Office 760-805-7199
Questions?

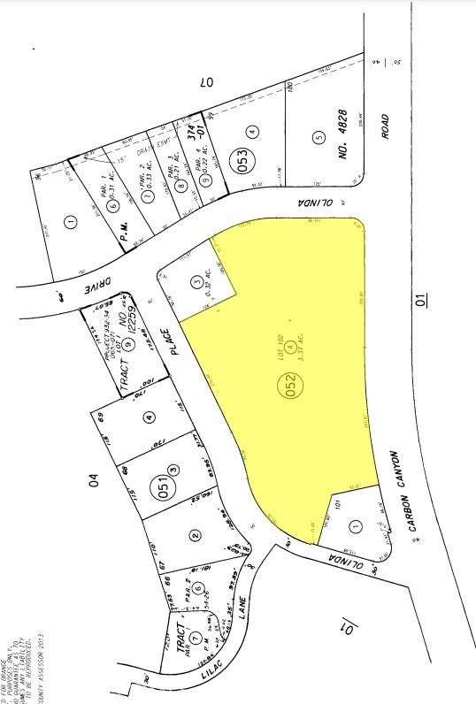
160 Olinda Place, Brea – $3,500,000

  • $3.5M Price
  • 3.68 Acres
  • 786 DOM
  • $3.5M Price
  • 3.68 Acres
  • 786 DOM

160 Olinda Place

Presenting a remarkable investment opportunity, this prime retail shopping center is now available for acquisition. Situated in a highly sought-after location, this property offers investors a strategic asset with a strong track record of performance and promising growth prospects. Strategically located in a high-traffic area with excellent visibility and accessibility, this shopping center is a cornerstone of the community and enjoys a consistent influx of potential customers. This shopping center boasts a total of +/-12,000 square feet on a spacious 3.68 acre lot. The center's diverse tenant mix includes a wide range of retail, dining, and service businesses. The shopping center offers ample parking with approximately 150 parking spaces, ensuring convenience for customers and tenants. The deferred maintenance presents an opportunity for the buyer to renovate and modernize the property, potentially increasing its leasing appeal and rental income. This could involve upgrading the façade, parking lot, enhancing landscaping, or improving common areas. Opportunities for expansion or redevelopment are available, allowing for additional revenue streams. Within the existing Neighborhood Commercial (C-N) zone, a senior living facility is permitted with the approval of a conditional use permit (CUP). Upon full or preliminary application submittal, the City’s development review team would consider this potential project’s compatibility with the site and surrounding neighborhood. A consideration for a facility provider may be proximity to a hospital or medical facility from the property. With regard to the potential of rezoning to a residential zone. A rezone to Single Family (R-1) is the most intensive residential density the City may be supportive of. Currently, the maximum density in the R-1 zone is 6 dwelling units per acre. A zone change would also require a general plan amendment, which is a legislative request that requires city council approval. At a minimum, this type of project application would require the preparation of an initial study by one of our environmental consultants to assess what type of environmental review is warranted. Buyers are advised to check with the City for all development possibilities!

Essential Information

  • MLS® #CV23200708
  • Price$3,500,000
  • Bathrooms0.00
  • Acres3.68
  • Year Built1966
  • TypeCommercial Sale
  • Sub-TypeRetail
  • StatusActive

Community Information

  • Address160 Olinda Place
  • Area86 - Brea
  • CityBrea
  • CountyOrange
  • Zip Code92823

Amenities

  • Parking Spaces150

Utilities

Electricity Connected, Natural Gas Connected, Sewer Connected, Water Connected

Interior

  • # of Stories1

Exterior

  • ExteriorFrame, Stucco
  • RoofSpanish Tile
  • ConstructionFrame, Stucco

Lot Description

Gentle Sloping, Irregular Lot, Lot Over 40000 Sqft, Paved, Value In Land

Additional Information

  • Date ListedNovember 1st, 2023
  • Days on Market786

Listing Details

  • AgentEric Eide
  • OfficeRE/MAX MASTERS REALTY
Please provide a valid email address.

Price Change History for 160 Olinda Place, Brea, (MLS® #CV23200708)

Date Details Change
Price Reduced from $3,599,000 to $3,500,000 $99,000 (2.75%)
Price Reduced from $3,699,000 to $3,599,000 $100,000 (2.70%)
Price Reduced from $3,900,000 to $3,699,000 $201,000 (5.15%)
Price Reduced from $4,200,000 to $3,900,000 $300,000 (7.14%)
Price Reduced from $4,600,000 to $4,200,000 $400,000 (8.70%)
Show More (2)

Eric Eide, RE/MAX MASTERS REALTY.

Based on information from California Regional Multiple Listing Service, Inc. as of December 26th, 2025 at 7:15am PST. This information is for your personal, non-commercial use and may not be used for any purpose other than to identify prospective properties you may be interested in purchasing. Display of MLS data is usually deemed reliable but is NOT guaranteed accurate by the MLS. Buyers are responsible for verifying the accuracy of all information and should investigate the data themselves or retain appropriate professionals. Information from sources other than the Listing Agent may have been included in the MLS data. Unless otherwise specified in writing, Broker/Agent has not and will not verify any information obtained from other sources. The Broker/Agent providing the information contained herein may or may not have been the Listing and/or Selling Agent.