Connect

Find us on...

Dashboard

Login using...

Shawn Bengtson

Office Broker - DRE 01236964

  • Office 760-805-7199
Questions?

649 W Gladstone Street, San Dimas – $3,200,000

  • 2 Beds
  • 1 Bath
  • 2,113 Sqft
  • 1.61 Acres
  • 2 Beds
  • 1 Bath
  • 2,113 Sqft
  • 1.61 Acres

649 W Gladstone Street

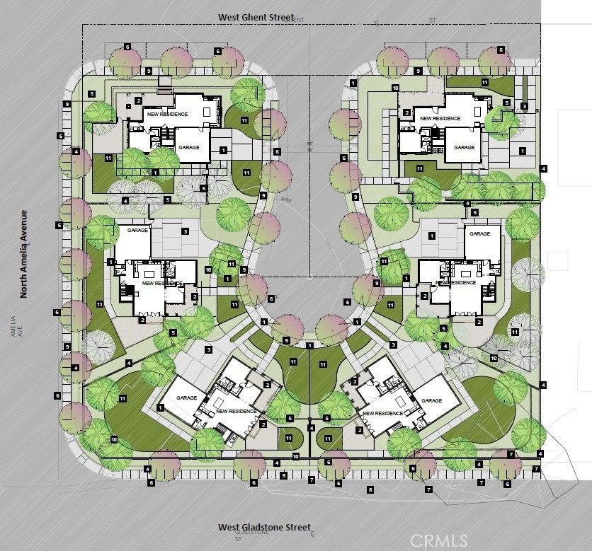
Unlock the potential of this exceptional vacant land opportunity nestled in the vibrant heart of San Dimas. Property is in a prime location at the corner of N Amelia Ave & W Gladstone St, this expansive 1.61-acre lot presents an enticing prospect for builders and investors alike. The true value of this property lies in its development potential, with land entitlements already secured and a tentative tract map for subdivision approved. This parcel offers the drafted plans for the creation of six detached single-family homes. Each residence provides a spacious living environment, ranging from 2383 to 2597 square feet, providing ample room for comfortable modern living. Encompassing a total of over 70,000 square feet, this sizable lot presents endless possibilities. *Each lot has the capability of building a ADU adding another additional maximum of 1,000 livable square per ADU.* Most recent plans have the total proposed livable square footage as 19,754. Located a mere 0.2 miles away, Arma J. Shull Elementary School, boasts a stellar 10 rating and provides an excellent educational option for families. The bustling Glendora Marketplace is also within easy reach, offering a plethora of shopping, dining, and entertainment options just 0.8 miles away. A small single-family house currently occupies a portion of the land, offering 2 bedrooms and 1 bathroom with approximately 750 square feet. Additionally, a liquor store building comprising approximately 1400 square feet stands on the lot.

Essential Information

  • MLS® #CV24068771
  • Price$3,200,000
  • Bedrooms2
  • Bathrooms1.00
  • Full Baths1
  • Square Footage2,113
  • Acres1.61
  • Year Built1929
  • TypeResidential
  • Sub-TypeSingle Family Residence
  • StatusActive

Community Information

  • Address649 W Gladstone Street
  • Area689 - San Dimas
  • CitySan Dimas
  • CountyLos Angeles
  • Zip Code91773

Amenities

  • ViewMountain(s), Neighborhood
  • PoolNone

Interior

  • CoolingCentral Air
  • FireplaceYes
  • FireplacesSee Remarks
  • # of Stories1
  • StoriesOne

Exterior

Lot Description

TwoToFiveUnitsAcre, Corner Lot, Lot Over 40000 Sqft

School Information

  • DistrictSan Dimas
  • MiddleLone Hill
  • HighSan Dimas

Additional Information

  • Date ListedApril 6th, 2024
  • Days on Market579
  • ZoningSDSFA7500*

Listing Details

  • AgentAllen Wu
  • OfficeALLEN WU, BROKER
Please provide a valid email address.

Price Change History for 649 W Gladstone Street, San Dimas, (MLS® #CV24068771)

Date Details Change
Price Reduced from $3,400,000 to $3,200,000 $200,000 (5.88%)
Price Reduced from $3,500,000 to $3,400,000 $100,000 (2.86%)

Allen Wu, ALLEN WU, BROKER.

Based on information from California Regional Multiple Listing Service, Inc. as of November 22nd, 2025 at 7:20am PST. This information is for your personal, non-commercial use and may not be used for any purpose other than to identify prospective properties you may be interested in purchasing. Display of MLS data is usually deemed reliable but is NOT guaranteed accurate by the MLS. Buyers are responsible for verifying the accuracy of all information and should investigate the data themselves or retain appropriate professionals. Information from sources other than the Listing Agent may have been included in the MLS data. Unless otherwise specified in writing, Broker/Agent has not and will not verify any information obtained from other sources. The Broker/Agent providing the information contained herein may or may not have been the Listing and/or Selling Agent.