Connect

Find us on...

Dashboard

Login using...

Shawn Bengtson

Office Broker - DRE 01236964

  • Office 760-805-7199
Questions?

13428 Mohawk Road, Apple Valley – $829,999

  • 9 Beds
  • 6 Baths
  • .48 Acres
  • 278 DOM
  • 9 Beds
  • 6 Baths
  • .48 Acres
  • 278 DOM

13428 Mohawk Road

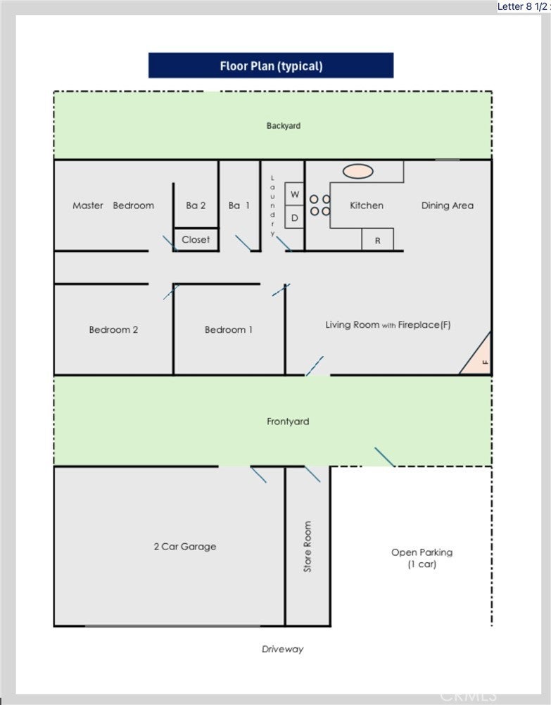
Rent raised 12/1/2025. BEST RENT PER SQ FT - LARGEST RENTABLE AREA PER UNIT - LARGEST GARAGE SPACES PER UNIT…INDOOR LAUNDRY ROOM…..FRONT & BACK YARDS ….Please see Floor Plan in Photos -One of its kind. All units are the same in size & amenities! Each unit is like a regular home complemented with a fireplace; climate control; an indoor laundry room, front & back yards; plenty of parking spaces - double garage & 1 open parking. A unique feature is the store room attached to the garage. The building was laid out to provide maximum privacy for each unit. PLease see building layout in the “Photo” section. It’s income is one of the highest in community the besting many 4 unit apartments. Please note: HVAC units in units B & C replaced last year as well as the ducting; Unit C main breaker panel replaced last years. PLEASE SEE SUPPLEMENT

Essential Information

  • MLS® #CV25112625
  • Price$829,999
  • Bedrooms9
  • Bathrooms6.00
  • Acres0.48
  • Year Built1989
  • TypeResidential Income
  • Sub-TypeTriplex
  • StatusActive

Community Information

  • Address13428 Mohawk Road
  • AreaAPPV - Apple Valley
  • CityApple Valley
  • CountySan Bernardino
  • Zip Code92308

Amenities

  • Parking Spaces9
  • # of Garages6
  • PoolNone

Parking

Concrete, Direct Access, Garage, Garage Faces Side, Storage

Garages

Concrete, Direct Access, Garage, Garage Faces Side, Storage

Interior

  • HeatingCentral
  • CoolingCentral Air
  • FireplaceYes
  • FireplacesLiving Room
  • # of Stories1
  • StoriesOne

Exterior

  • Lot DescriptionFront Yard, Street Level

Additional Information

  • Date ListedMay 20th, 2025
  • Days on Market278

Listing Details

  • AgentHenry Geronimo
  • OfficeMEDALLION REALTORS
Please provide a valid email address.

Price Change History for 13428 Mohawk Road, Apple Valley, (MLS® #CV25112625)

Date Details Change
Status Changed from Active Under Contract to Active
Status Changed from Active to Active Under Contract
Price Reduced from $849,990 to $829,999 $19,991 (2.35%)

Henry Geronimo, MEDALLION REALTORS.

Based on information from California Regional Multiple Listing Service, Inc. as of February 23rd, 2026 at 9:56am PST. This information is for your personal, non-commercial use and may not be used for any purpose other than to identify prospective properties you may be interested in purchasing. Display of MLS data is usually deemed reliable but is NOT guaranteed accurate by the MLS. Buyers are responsible for verifying the accuracy of all information and should investigate the data themselves or retain appropriate professionals. Information from sources other than the Listing Agent may have been included in the MLS data. Unless otherwise specified in writing, Broker/Agent has not and will not verify any information obtained from other sources. The Broker/Agent providing the information contained herein may or may not have been the Listing and/or Selling Agent.