Connect

Find us on...

Dashboard

Login using...

Shawn Bengtson

Office Broker - DRE 01236964

  • Office 760-805-7199
Questions?

5150 S Western Avenue, Los Angeles – $925,000

  • $925k Price
  • .15 Acres
  • 195 DOM
  • $925k Price
  • .15 Acres
  • 195 DOM

5150 S Western Avenue

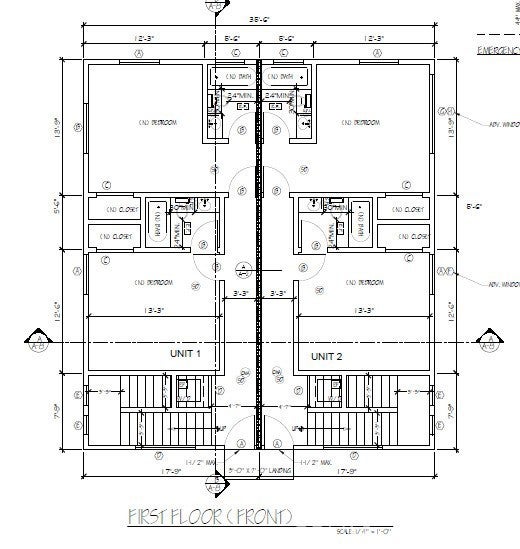
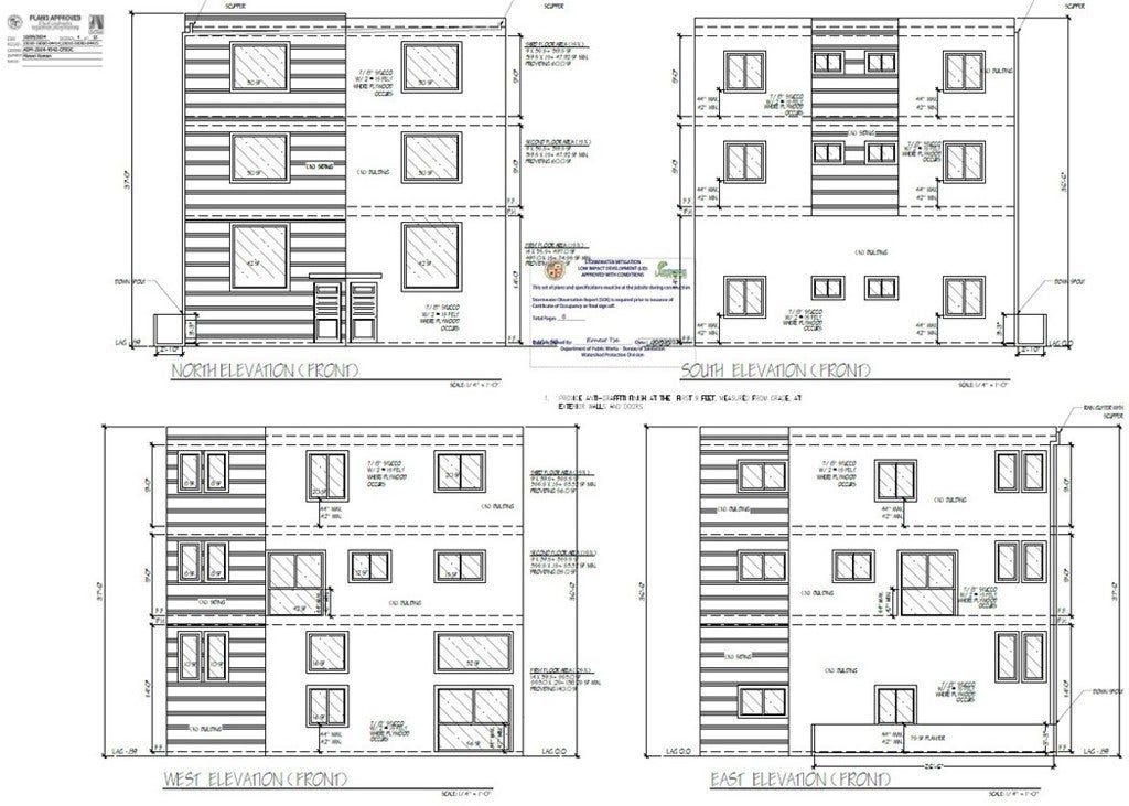
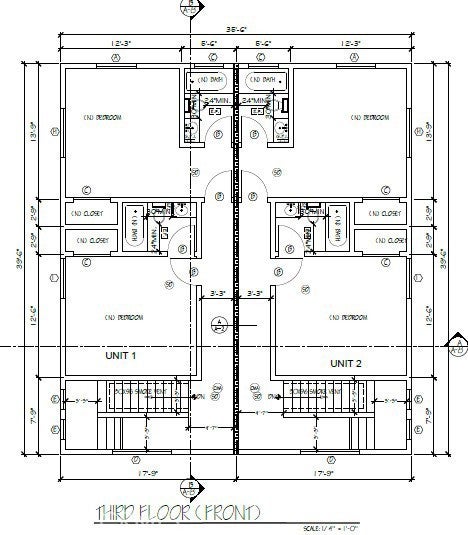
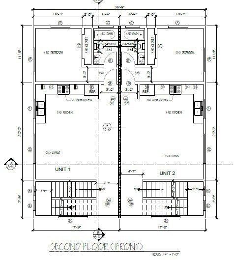
Prime Development Opportunity – Vacant Land with RTI Plans! Presenting an outstanding opportunity for developers and investors: vacant land with Ready-to-Issue (RTI) plans to construct 4 luxurious three-story units in the form of two duplexes. Each unit is thoughtfully designed with: 5 bedrooms and 5 bathrooms per unit a total building area of 8,412 sqft across all units. Modern layouts offering functionality and style. No RSO and Not subject to SB8 regulations, Streamlined project ready to go! Located in a desirable area, this property is perfect for those seeking to maximize their return on investment with a turnkey development opportunity. Buyer to perform their own investigations and due diligence regarding all aspects of the property, plans, and development. This is a rare chance to build an impressive project—don't miss out!

Essential Information

  • MLS® #CV25126614
  • Price$925,000
  • Bathrooms0.00
  • Acres0.15
  • TypeLand
  • StatusActive

Community Information

  • Address5150 S Western Avenue
  • AreaC34 - Los Angeles Southwest
  • CityLos Angeles
  • CountyLos Angeles
  • Zip Code90062

Amenities

  • ViewNone

Exterior

  • Lot DescriptionZeroToOneUnitAcre

Additional Information

  • Date ListedJune 5th, 2025
  • Days on Market195
  • ZoningLAC2

Listing Details

  • AgentJaime Ruiz
  • OfficeOPTION ONE REALTY & INVESTMENT
Please provide a valid email address.

Jaime Ruiz, OPTION ONE REALTY & INVESTMENT.

Based on information from California Regional Multiple Listing Service, Inc. as of December 18th, 2025 at 1:45pm PST. This information is for your personal, non-commercial use and may not be used for any purpose other than to identify prospective properties you may be interested in purchasing. Display of MLS data is usually deemed reliable but is NOT guaranteed accurate by the MLS. Buyers are responsible for verifying the accuracy of all information and should investigate the data themselves or retain appropriate professionals. Information from sources other than the Listing Agent may have been included in the MLS data. Unless otherwise specified in writing, Broker/Agent has not and will not verify any information obtained from other sources. The Broker/Agent providing the information contained herein may or may not have been the Listing and/or Selling Agent.