Connect

Find us on...

Dashboard

Login using...

Shawn Bengtson

Office Broker - DRE 01236964

  • Office 760-805-7199
Questions?

16454 Adelanto Road, Adelanto – $1,700,000

  • $1.7M Price
  • 3.28 Acres
  • 89 DOM
  • $1.7M Price
  • 3.28 Acres
  • 89 DOM

16454 Adelanto Road

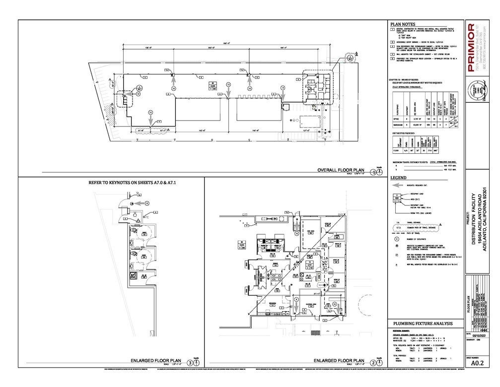
Prime 3.37-acre shovel-ready industrial lot at 16454 Adelanto Road, Adelanto, CA 92301. APN 3128-231-04. Zoned IL (Light Industrial). Owner advanced all entitlements, engineering, permits, and pre-construction requirements. Nothing vertical built, but the project is fully entitled and ready for immediate construction pending standard admin updates. All major fees, bonds, plans, and approvals are in place. Only the school impact fee remains; once paid, the City issues the Certificate of Compliance and the building permit can be pulled. Approved for a 46,742 SF truck-parts distribution facility featuring 9 dock-high and 2 grade-level truck doors, 2,500 SF office, guardhouse, and trash enclosure. Included is a Fire Department–approved 21-sheet construction plan set compliant with the 2022 CBC. Fire protection permit FCIC-2023-00001 is valid through 6/6/24. MDAQMD clearance application filed for clean warehouse use. School impact fee estimate: $24,773.26, payable by cashier’s check for Certificate of Compliance. Utilities and site improvements are prepped and ready. Electricity is connected on-site. Water, sewer (6" ABS), and gas are at the curb. Concrete curbs and driveway apron installed. The site offers gated access at both front and rear and is fully fenced by adjacent parcels. Pad is flat, compacted, and engineered for a 2,100 PSF soil bearing capacity. Excellent logistics location with rear exposure to Hwy 395 (25,000+ VPD) for signage and fleet access and direct frontage on the newly repaved Adelanto Rd, a four-lane truck route. Positioned between two operating industrial self-storage facilities and within five minutes of SCLA Airport and ten minutes of Interstate 15. Buyer path is straightforward: pay the school fee, obtain the Certificate of Compliance, submit the notice to proceed with grading, and begin foundation work—no rezoning, variances, or additional entitlements required. Drive by anytime; gate access and site walk available with agent. All documents, plans, and approvals are available in the supplements. All information is deemed reliable but not guaranteed. Buyer and buyer’s agents must verify all data, including zoning, permits, utilities, site details, fees, and plans. No warranties are made regarding accuracy or completeness. Buyer is responsible for all due diligence. Seller and broker disclaim any liability for errors, omissions, or changes.

Essential Information

  • MLS® #CV25260607
  • Price$1,700,000
  • Bathrooms0.00
  • Acres3.28
  • TypeLand
  • StatusActive

Community Information

  • Address16454 Adelanto Road
  • AreaADL - Adelanto
  • CityAdelanto
  • CountySan Bernardino
  • Zip Code92301

Amenities

  • ViewNeighborhood

Exterior

Lot Description

Rectangular Lot, Lot Over 40000 Sqft

Additional Information

  • Date ListedNovember 14th, 2025
  • Days on Market89
  • ZoningIL Light Industrial

Listing Details

  • AgentEnrique Vasquez-plaza
  • OfficeCentury 21 Masters
Please provide a valid email address.

Enrique Vasquez-plaza, Century 21 Masters.

Based on information from California Regional Multiple Listing Service, Inc. as of February 11th, 2026 at 11:45am PST. This information is for your personal, non-commercial use and may not be used for any purpose other than to identify prospective properties you may be interested in purchasing. Display of MLS data is usually deemed reliable but is NOT guaranteed accurate by the MLS. Buyers are responsible for verifying the accuracy of all information and should investigate the data themselves or retain appropriate professionals. Information from sources other than the Listing Agent may have been included in the MLS data. Unless otherwise specified in writing, Broker/Agent has not and will not verify any information obtained from other sources. The Broker/Agent providing the information contained herein may or may not have been the Listing and/or Selling Agent.