Connect

Find us on...

Dashboard

Login using...

Shawn Bengtson

Office Broker - DRE 01236964

  • Office 760-805-7199
Questions?

4464 Moorpark # 104, Toluca Lake – $975,000

  • 2 Beds
  • 3 Baths
  • 1,908 Sqft
  • .15 Acres
  • 2 Beds
  • 3 Baths
  • 1,908 Sqft
  • .15 Acres

4464 Moorpark # 104

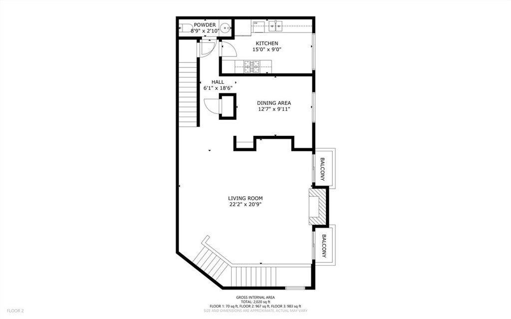
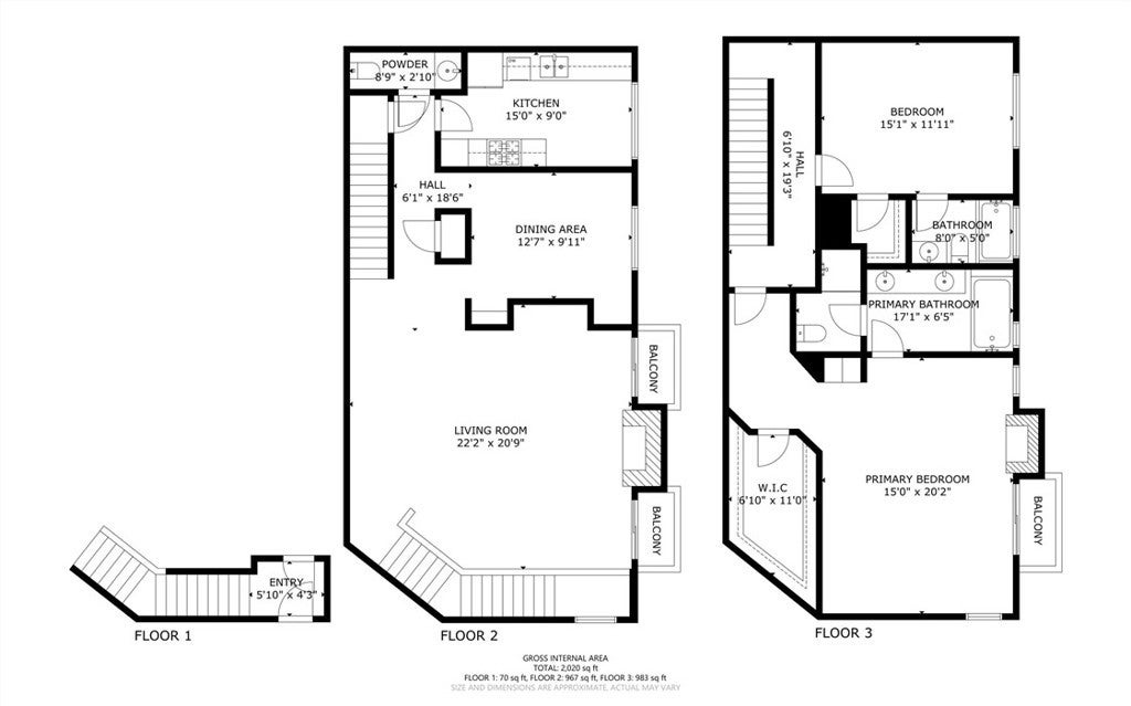
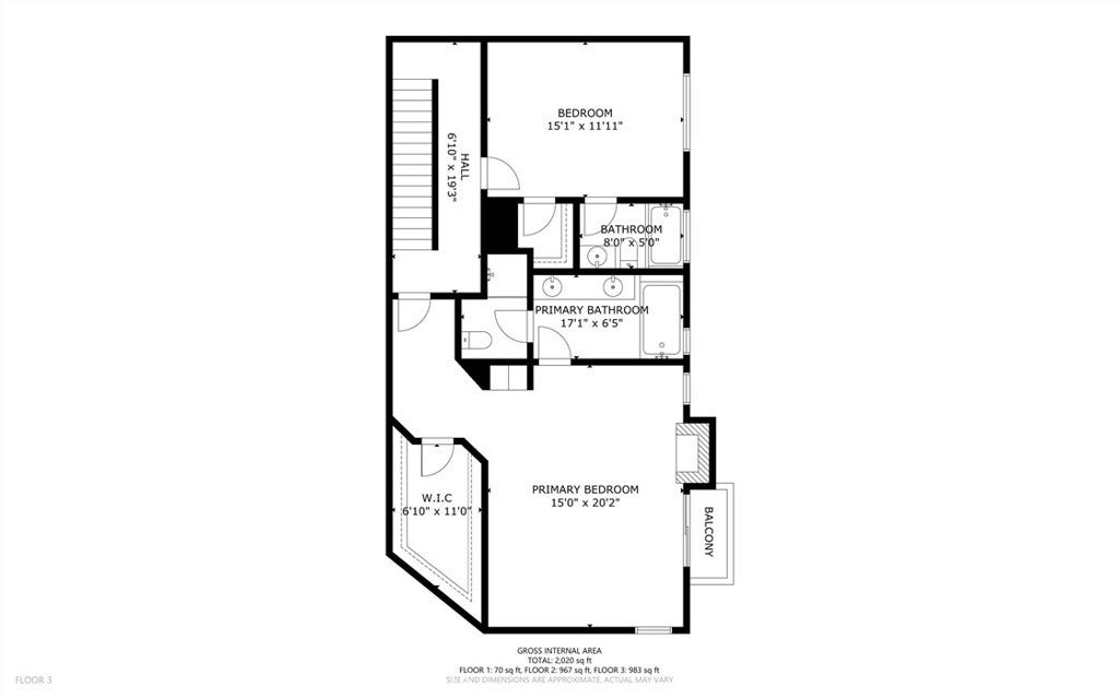
Private Direct Access 2 Car Garage and Rooftop Terrace End Unit in the rear portion of the complex! This bright, private, oversized Toluca Lake townhome is a rare find—especially if you work in film, TV, or the studios nearby. Jaw-dropping views, and an unbeatable location in the heart of the village, this home blends comfort, creativity, and convenience. This 1,908 sq ft corner unit sits in one of Toluca Lake’s most sought-after pockets—an area long loved by Hollywood legends like Bob Hope, Frank Sinatra, Ron Howard and Steve Carell. It’s quiet, tucked away, and still just minutes from Universal, Warner Bros., Disney, and NBCUniversal. Let’s talk about the real show-stopper: your private rooftop terrace. With 360° views of Universal Studios, the mountains, and city lights, this is your go-to spot for decompressing after a long shoot day, hosting friends, or just watching the sunset with your favorite beverage. The home lives more like a single-family house, in-unit laundry, and an approx. 200 sq ft bonus/storage room—perfect for gear, bikes, holiday storage, etc. Inside, natural light pours in from oversized windows, making every room feel open and inviting. The spacious living room features hardwood floors, a cozy gas fireplace, and two large sliding doors that open to your own private balconies—ideal for fresh air between Zoom calls. The formal dining area flows perfectly from the living space and works beautifully as a home office or creative workspace, with built-ins. A guest bath is conveniently nearby. The kitchen is warm and functional, featuring custom tile floors, glass-front cabinets, a walk-in pantry, and plantation shutters—perfect for quiet mornings before call time or winding down late nights. Upstairs, the primary suite is a true retreat with soaring 11-ft ceilings, a second gas fireplace, treetop views, its own private balcony, a large walk-in closet, and a bright spa-like bathroom with both a walk-in shower and soaking tub. Across the hall, the second bedroom functions as a junior suite, also with 11-ft ceilings, walk-in closet, great natural light, and its own full bathroom—perfect for guests or roommates. The intimate 4-unit building offers privacy, a low HOA, and walkability to Trader Joe’s, Gelson’s, great restaurants, and major movie studios. If you want space, privacy, light, and a location that truly works for today's lifestyle, this is it. Rare, relaxed, and quietly impressive—just like Toluca Lake itself.

Essential Information

  • MLS® #CV25268498
  • Price$975,000
  • Bedrooms2
  • Bathrooms3.00
  • Full Baths2
  • Half Baths1
  • Square Footage1,908
  • Acres0.15
  • Year Built1988
  • TypeResidential
  • Sub-TypeCondominium
  • StatusActive

Community Information

  • Address4464 Moorpark # 104
  • AreaTUL - Toluca Lake
  • CityToluca Lake
  • CountyLos Angeles
  • Zip Code91602

Amenities

  • AmenitiesOther
  • Parking Spaces2
  • # of Garages2
  • PoolNone

Utilities

Electricity Connected, Sewer Connected, Natural Gas Connected

Parking

Garage, Workshop in Garage, Direct Access, Garage Door Opener, Oversized, Private

Garages

Garage, Workshop in Garage, Direct Access, Garage Door Opener, Oversized, Private

View

Hills, City Lights, Landmark, Panoramic

Interior

  • InteriorCarpet, Wood
  • HeatingCentral
  • CoolingCentral Air
  • FireplaceYes
  • FireplacesFamily Room, Primary Bedroom
  • # of Stories2
  • StoriesTwo, Three Or More

Interior Features

Ceiling Fan(s), Separate/Formal Dining Room, High Ceilings, Pantry, Recessed Lighting, Storage, Primary Suite, Walk-In Closet(s), All Bedrooms Up, Balcony, Eat-in Kitchen, Multiple Primary Suites

Appliances

Gas Oven, Gas Range, Gas Water Heater, Range Hood

Exterior

Lot Description

Corner Lot, Level, TwoToFiveUnitsAcre

School Information

  • DistrictLos Angeles Unified

Additional Information

  • Date ListedJanuary 30th, 2026
  • Days on Market64
  • HOA Fees350
  • HOA Fees Freq.Monthly

Listing Details

  • AgentBaldwin Lopez
  • OfficeKELLER WILLIAMS COVINA
Please provide a valid email address.

Baldwin Lopez, KELLER WILLIAMS COVINA.

Based on information from California Regional Multiple Listing Service, Inc. as of April 10th, 2026 at 6:15pm PDT. This information is for your personal, non-commercial use and may not be used for any purpose other than to identify prospective properties you may be interested in purchasing. Display of MLS data is usually deemed reliable but is NOT guaranteed accurate by the MLS. Buyers are responsible for verifying the accuracy of all information and should investigate the data themselves or retain appropriate professionals. Information from sources other than the Listing Agent may have been included in the MLS data. Unless otherwise specified in writing, Broker/Agent has not and will not verify any information obtained from other sources. The Broker/Agent providing the information contained herein may or may not have been the Listing and/or Selling Agent.