Connect

Find us on...

Dashboard

Login using...

Shawn Bengtson

Office Broker - DRE 01236964

  • Office 760-805-7199
Questions?

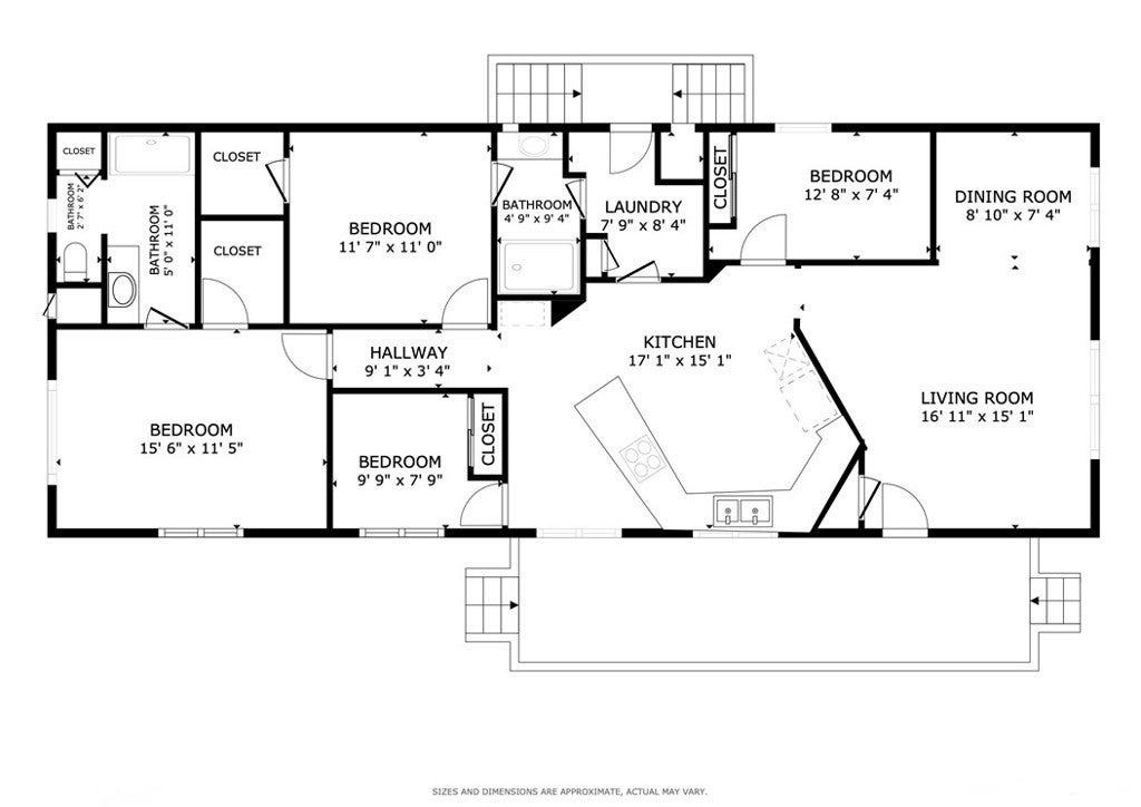
929 E Foothill # 53, Upland – $214,000

  • 4 Beds
  • 2 Baths
  • 1,440 Sqft
  • .03 Acres
  • 4 Beds
  • 2 Baths
  • 1,440 Sqft
  • .03 Acres

929 E Foothill # 53

Oh No! The buyer could not close on the house due to not obtaining park approval .. here is your chance .. do not miss it this time... This is for the family who needs rooms! Welcome to this beautifully upgraded 4-bedroom, 2-bath home offering approximately 1,440 sq ft, located in the desirable gated family community, Upland Meadows. Built in 1978, this home has been thoughtfully updated and is situated directly on the greenbelt, providing a peaceful setting with added privacy. The interior features a stunning upgraded kitchen with granite countertops, ample cabinetry, and an open flow into the dedicated dining area, perfect for everyday living and entertaining. Laminate flooring and shutters runs throughout the main living areas, complemented by custom interior paint that gives the home a modern, move-in-ready feel. The spacious primary bedroom offers plenty of storage and an on suite bathroom which includes a walk-in shower, and the home offers a separate indoor laundry area for convenience. Spacious covered carport parking which has room for three standard size vehicles. Community amenities include a Fully equipped club house with three pool-tables, sparkling pool, community spa, and a playground, plenty of guest parking - making this an ideal location (it diagonally right across the street from pool) for families of all ages. The gated community provides an added sense of security and pride of ownership. Located in the heart of Upland, residents enjoy easy access to shopping, dining, parks, top-rated schools, and nearby foothill views. Upland is known for its charming neighborhoods, strong community feel, and proximity to major freeways while still offering a quieter, suburban lifestyle. This is a rare opportunity to own an upgraded home in a well-maintained, amenity-rich community—don’t miss it and make us an offer we can not refuse!

Essential Information

  • MLS® #CV25281318
  • Price$214,000
  • Bedrooms4
  • Bathrooms2.00
  • Full Baths2
  • Square Footage1,440
  • Acres0.03
  • Year Built1978
  • TypeManufactured In Park
  • StatusActive

Community Information

  • Address929 E Foothill # 53
  • Area690 - Upland
  • CityUpland
  • CountySan Bernardino
  • Zip Code91786

Amenities

  • UtilitiesSewer, Trash Collection, Water
  • Has PoolYes
  • PoolCommunity, In Ground

View

Neighborhood, Park/Greenbelt, Peek-A-Boo

Interior

  • Interior FeaturesGranite Counters
  • HeatingCentral
  • CoolingCentral Air
  • # of Stories1
  • StoriesOne

Exterior

Lot Description

Close to Clubhouse, Landscaped, Greenbelt, Near Park

School Information

  • DistrictUpland

Additional Information

  • Date ListedJanuary 22nd, 2026
  • Days on Market74

Listing Details

  • AgentLori Alvarez
  • OfficeREAL ESTATE RESOLVED
Please provide a valid email address.

Price Change History for 929 E Foothill # 53, Upland, (MLS® #CV25281318)

Date Details Change
Status Changed from Active Under Contract to Active
Status Changed from Active to Active Under Contract

Lori Alvarez, REAL ESTATE RESOLVED.

Based on information from California Regional Multiple Listing Service, Inc. as of April 18th, 2026 at 6:30am PDT. This information is for your personal, non-commercial use and may not be used for any purpose other than to identify prospective properties you may be interested in purchasing. Display of MLS data is usually deemed reliable but is NOT guaranteed accurate by the MLS. Buyers are responsible for verifying the accuracy of all information and should investigate the data themselves or retain appropriate professionals. Information from sources other than the Listing Agent may have been included in the MLS data. Unless otherwise specified in writing, Broker/Agent has not and will not verify any information obtained from other sources. The Broker/Agent providing the information contained herein may or may not have been the Listing and/or Selling Agent.