Connect

Find us on...

Dashboard

Login using...

Shawn Bengtson

Office Broker - DRE 01236964

  • Office 760-805-7199
Questions?

809 S Atlantic Boulevard, Monterey Park – $3,250,000

  • $3.3M Price
  • .34 Acres
  • 78 DOM
  • $3.3M Price
  • .34 Acres
  • 78 DOM

809 S Atlantic Boulevard

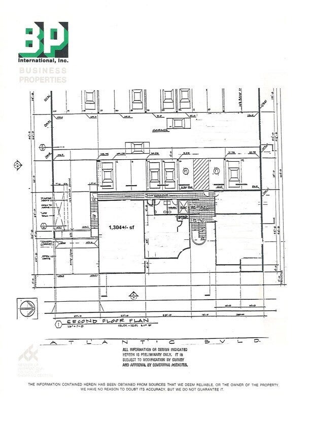
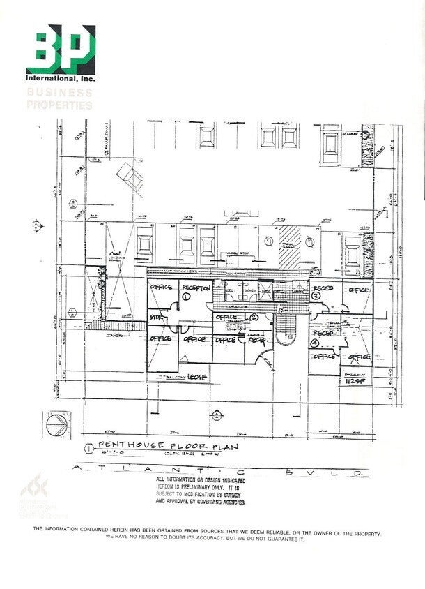
809 S. Atlantic Blvd presents an owner-user commercial opportunity in Monterey Park consisting of a ±11,766 square foot, three-story building situated on a ±15,000 square foot lot. The property includes nine units and is improved with elevator service, fire sprinklers, and individual electrical meters. Parking is well in excess of typical requirements, featuring 43 on-site spaces with an approximately 3.65:1 parking ratio, with each floor having its own dedicated parking level. Zoned Commercial/Professional (C-P) and constructed in 1999, the property is currently 100% leased with short-term lease agreements, providing near-term flexibility for an owner-user while benefiting from stable medical and professional tenancy. The asset is well suited for a medical, professional office, or service-oriented owner-user seeking a long-term operating location in a dense, supply-constrained San Gabriel Valley market.

Essential Information

  • MLS® #CV26010898
  • Price$3,250,000
  • Bathrooms0.00
  • Acres0.34
  • Year Built1999
  • TypeCommercial Sale
  • Sub-TypeOffice
  • StatusActive

Community Information

  • Address809 S Atlantic Boulevard
  • Area641 - Monterey Park
  • CityMonterey Park
  • CountyLos Angeles
  • Zip Code91754

Amenities

  • Parking Spaces43

Interior

  • # of Stories3

Exterior

  • Lot DescriptionSixToTenUnitsAcre
  • RoofTile

Additional Information

  • Date ListedJanuary 2nd, 2026
  • Days on Market78
  • Zoning(C-P)

Listing Details

  • AgentHenry Liu
  • OfficeGATEWAY PROPERTIES GROUP
Please provide a valid email address.

Price Change History for 809 S Atlantic Boulevard, Monterey Park, (MLS® #CV26010898)

Date Details Change
Price Reduced from $3,975,000 to $3,250,000 $725,000 (18.24%)

Henry Liu, GATEWAY PROPERTIES GROUP.

Based on information from California Regional Multiple Listing Service, Inc. as of April 4th, 2026 at 5:30am PDT. This information is for your personal, non-commercial use and may not be used for any purpose other than to identify prospective properties you may be interested in purchasing. Display of MLS data is usually deemed reliable but is NOT guaranteed accurate by the MLS. Buyers are responsible for verifying the accuracy of all information and should investigate the data themselves or retain appropriate professionals. Information from sources other than the Listing Agent may have been included in the MLS data. Unless otherwise specified in writing, Broker/Agent has not and will not verify any information obtained from other sources. The Broker/Agent providing the information contained herein may or may not have been the Listing and/or Selling Agent.