Connect

Find us on...

Dashboard

Login using...

Shawn Bengtson

Office Broker - DRE 01236964

  • Office 760-805-7199
Questions?

3990 Concours # 201, Ontario – $10,184

  • $10.2k Price
  • 2.97 Acres
  • 1 DOM
  • $10.2k Price
  • 2.97 Acres
  • 1 DOM

3990 Concours # 201

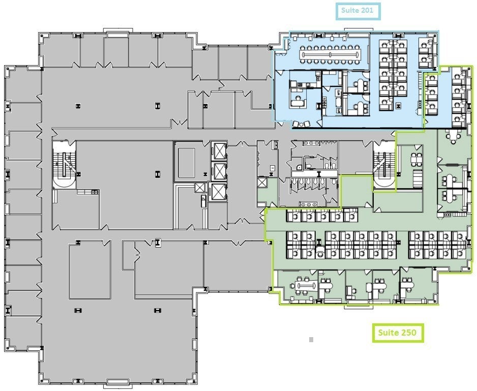
• 5-Story, Class A Office Building • Premiere Ontario Airport Submarket Location • Built in 2007; Zoning: SP, City of Ontario • Immediate Access to I-10, at Haven Avenue • Close Proximity to I-15 and 60 Freeways • Reserved Parking Available • Full Service Gross Leases • Professionally Managed and Maintained • Suite 201 is 3,843 SF with reception area, 1 large conference room, 3 offices, filing room, IT room, breakroom and 2 separate bullpen areas for 11 cubicle workstations

Essential Information

  • MLS® #CV26045009
  • Price$10,184
  • Bathrooms0.00
  • Acres2.97
  • Year Built2007
  • TypeCommercial Lease
  • Sub-TypeOffice
  • StatusActive

Community Information

  • Address3990 Concours # 201
  • Area686 - Ontario
  • CityOntario
  • CountySan Bernardino
  • Zip Code91764

Interior

  • # of Stories5

Exterior

  • Lot DescriptionZeroToOneUnitAcre

Additional Information

  • Date ListedMarch 1st, 2026
  • Days on Market1

Listing Details

  • AgentSangaroon Yangchana
  • OfficeMGR REAL ESTATE, INC.
Please provide a valid email address.

Sangaroon Yangchana, MGR REAL ESTATE, INC..

Based on information from California Regional Multiple Listing Service, Inc. as of March 2nd, 2026 at 4:20am PST. This information is for your personal, non-commercial use and may not be used for any purpose other than to identify prospective properties you may be interested in purchasing. Display of MLS data is usually deemed reliable but is NOT guaranteed accurate by the MLS. Buyers are responsible for verifying the accuracy of all information and should investigate the data themselves or retain appropriate professionals. Information from sources other than the Listing Agent may have been included in the MLS data. Unless otherwise specified in writing, Broker/Agent has not and will not verify any information obtained from other sources. The Broker/Agent providing the information contained herein may or may not have been the Listing and/or Selling Agent.