Connect

Find us on...

Dashboard

Login using...

Shawn Bengtson

Office Broker - DRE 01236964

  • Office 760-805-7199
Questions?

1128 Ardmore, Los Angeles – $3,595,000

  • 10 Beds
  • 11 Baths
  • .14 Acres
  • 17 DOM
  • 10 Beds
  • 11 Baths
  • .14 Acres
  • 17 DOM

1128 Ardmore

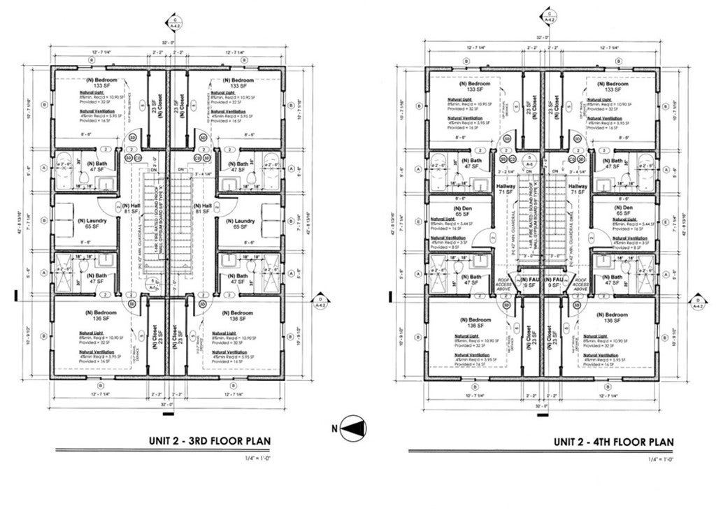
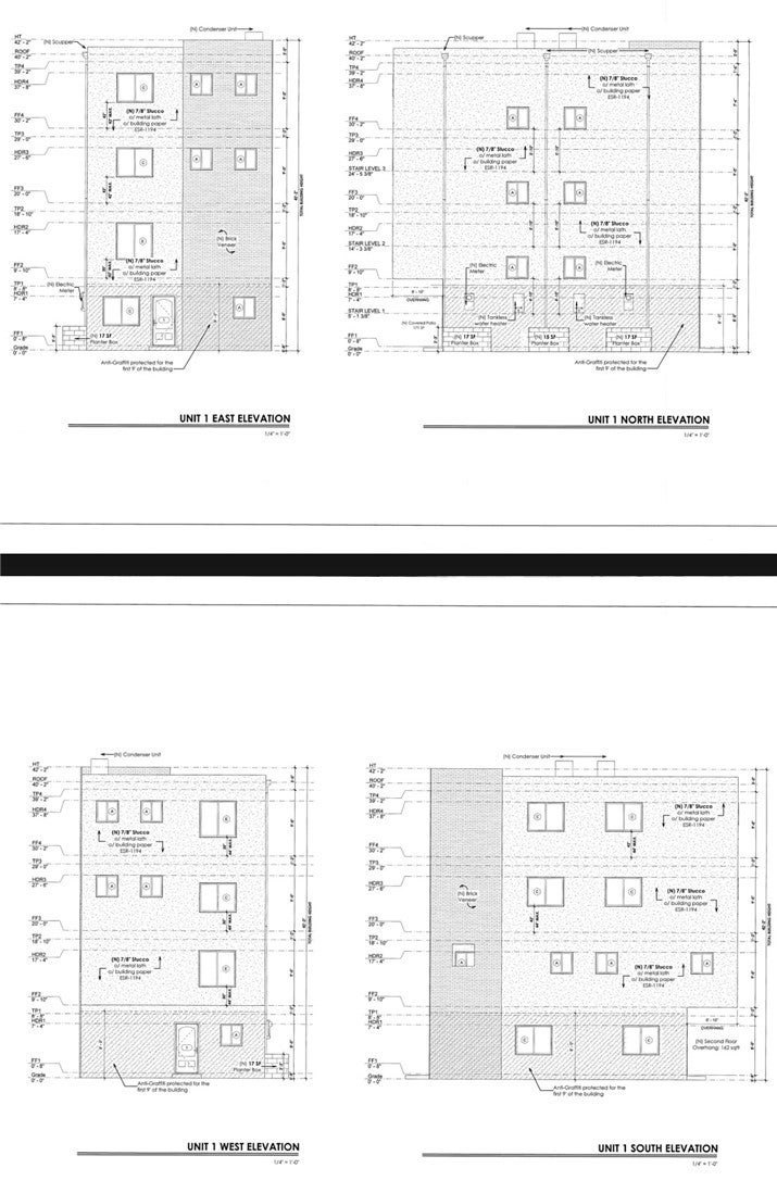
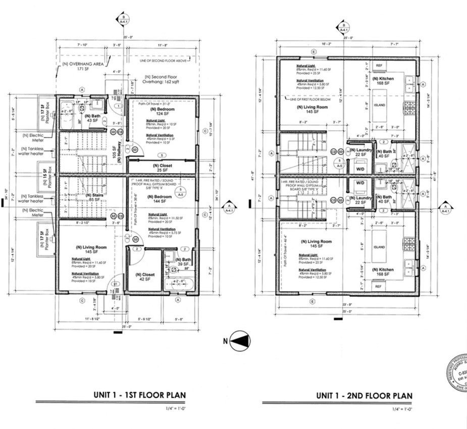
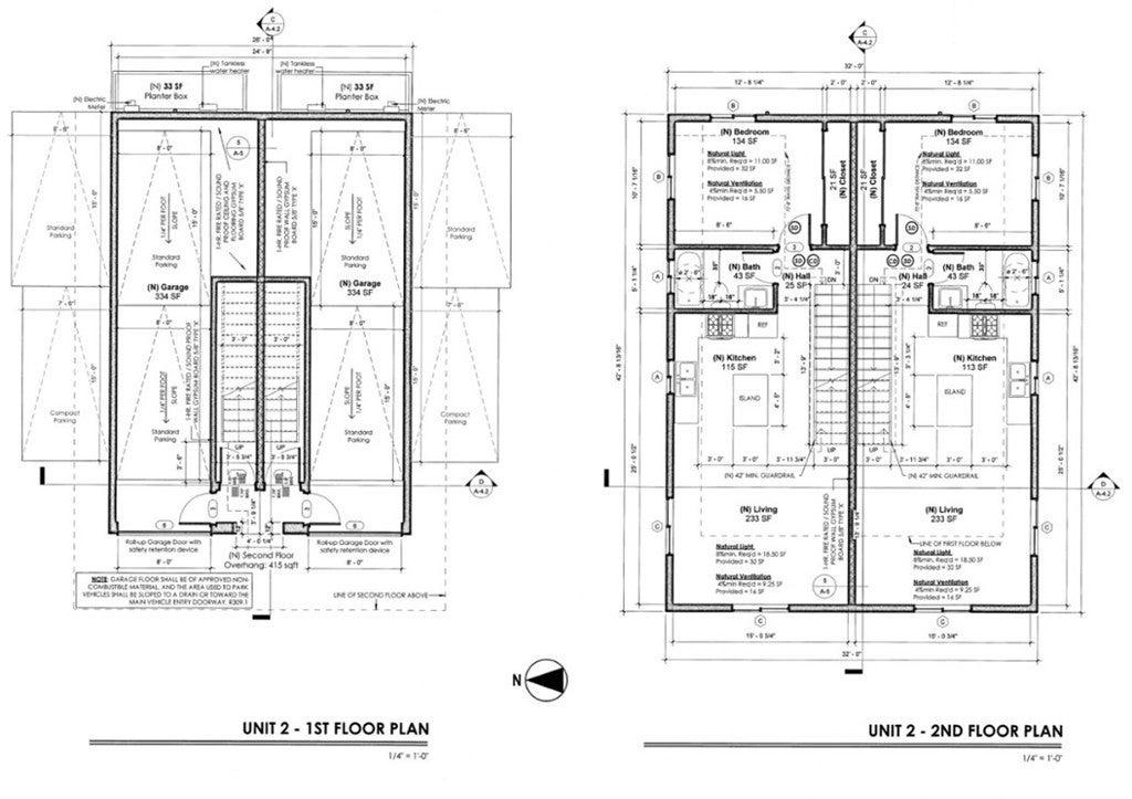
1128, 1128 1/2, 1130 & 1130 1/2 S Ardmore Ave, Los Angeles CA 90006 Appraised at:$3,595,000 Property is fully leased with a great Cap rate of 5.865%. Presenting a Clean Modern look BRAND NEW CONSTRUCTION Multi-family Investment 4 Unit Property. Property’s breakdown is the following: 4Plex consists of 2 Duplexes; total of 4units Mix of (2) 5 bedrooms & 5 bathrooms & (2) 5 bedrooms & 6 bathrooms Total of 20 Bedrooms and 22 Baths Total approx. Living sqft: 6,880 ( Not including 870 sqft Garage) Total approx. Lot sqft: 5,903 Unit 1 sqft: 1,652.5 Unit 2 sqft: 1,652.5 Unit 3 sqft: 2,222.5 Unit 4 sqft: 2,222.5 Note:Property is fully leased with a great Cap rate of 5.865%. All units are Quad-Level & separately metered for each utility service. This project is located in a hot rental area. Location, location, location! Multi family units are in high demand in this area. This project being Brand New Construction, these units are easy to lease out. Property has little to no maintenance; super convenient for the owner. Buyer(s) to independently verify all information on this listing. Listing agent is not liable for any information that turns out incorrect. The accuracy of all information, regardless of source, including but not limited to square footages, lot sizes, income, and expenses, is deemed reliable but not guaranteed.

Essential Information

  • MLS® #DW25243250
  • Price$3,595,000
  • Bedrooms10
  • Bathrooms11.00
  • Acres0.14
  • Year Built2024
  • TypeResidential Income
  • Sub-TypeQuadruplex
  • StatusActive

Community Information

  • Address1128 Ardmore
  • AreaKREA - Koreatown
  • CityLos Angeles
  • CountyLos Angeles
  • Zip Code90006

Amenities

  • Parking Spaces8
  • # of Garages4
  • PoolNone

Interior

  • HeatingCentral
  • CoolingCentral Air
  • FireplacesNone
  • # of Stories4
  • StoriesThree Or More

Exterior

  • Lot DescriptionZeroToOneUnitAcre

Additional Information

  • Date ListedOctober 21st, 2025
  • Days on Market17

Listing Details

  • AgentYossmira Hernandez
  • OfficeFirst Family Homes
Please provide a valid email address.

Yossmira Hernandez, First Family Homes.

Based on information from California Regional Multiple Listing Service, Inc. as of November 21st, 2025 at 10:56am PST. This information is for your personal, non-commercial use and may not be used for any purpose other than to identify prospective properties you may be interested in purchasing. Display of MLS data is usually deemed reliable but is NOT guaranteed accurate by the MLS. Buyers are responsible for verifying the accuracy of all information and should investigate the data themselves or retain appropriate professionals. Information from sources other than the Listing Agent may have been included in the MLS data. Unless otherwise specified in writing, Broker/Agent has not and will not verify any information obtained from other sources. The Broker/Agent providing the information contained herein may or may not have been the Listing and/or Selling Agent.