Connect

Find us on...

Dashboard

Login using...

Shawn Bengtson

Office Broker - DRE 01236964

  • Office 760-805-7199
Questions?

Big Springs Road, Agua Dulce – $1,200,000

  • $1.2M Price
  • 135.26 Acres
  • 515 DOM
  • $1.2M Price
  • 135.26 Acres
  • 515 DOM

Big Springs Road

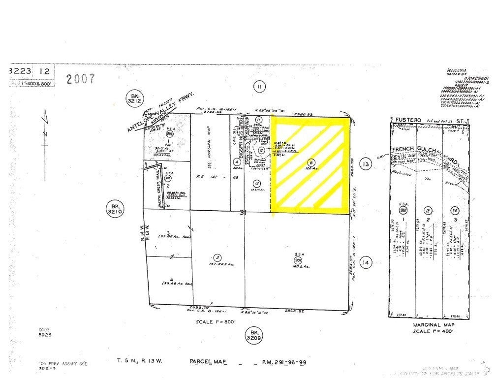
APN 3223-012-008 | This beautiful ±135.22 acres of unspoiled landscape in Agua Dulce, California could be all yours for the modest price of $1.2M. A short distance away from Escondido Canyon Road and the 14 Freeway, Make this an ideal location allowing you to enjoy both a secluded rural get-away, and still have an easy commute into town. Build a neighborhood of small rural estates across the rolling topography or keep the whole property for yourself to enjoy horseback riding, off-road riding and other outdoor activities on your own family compound. We’ve walked this expansive property ourselves before listing it for sale. The views are amazing, the grounds had a few trails carved through them, and the landscape was rich with vibrant colors both from the indigenous plant life as well as the soil, and minerals. Being there in person was an uplifting and energizing experience. From rural estate lots to recreational camping grounds your imagination is the only limit when it comes to enjoying this great investment. This parcel is zoned “Heavy Agriculture” allowing for a minimum lot size of 2.0 Acres each and allows for rural residential living with one dwelling unit per 10.00 Acres. There is a Tentative Tract Map in place allowing for a potential subdivision into six (6), twenty (20) acre lots. We have a motivated Seller that is open to negotiating a great deal. **Please note, although we believe that we have sourced accurate data regarding this property. All prospective Buyers are advised to satisfy themselves with all aspects of the subject property prior to completing a purchase.

Essential Information

  • MLS® #HD24139269
  • Price$1,200,000
  • Bathrooms0.00
  • Acres135.26
  • TypeLand
  • StatusActive

Community Information

  • AddressBig Springs Road
  • AreaADUL - Agua Dulce
  • SubdivisionCustom Agua Dulce (CADUL)
  • CityAgua Dulce
  • CountyLos Angeles
  • Zip Code91350

Amenities

  • ViewMountain(s)

Exterior

  • Lot DescriptionSteep Slope

Additional Information

  • Date ListedJuly 8th, 2024
  • Days on Market515
  • ZoningLCA21*

Listing Details

  • AgentJoseph Hisquierdo
  • OfficeLee & Associates
Please provide a valid email address.

Joseph Hisquierdo, Lee & Associates.

Based on information from California Regional Multiple Listing Service, Inc. as of December 6th, 2025 at 10:45am PST. This information is for your personal, non-commercial use and may not be used for any purpose other than to identify prospective properties you may be interested in purchasing. Display of MLS data is usually deemed reliable but is NOT guaranteed accurate by the MLS. Buyers are responsible for verifying the accuracy of all information and should investigate the data themselves or retain appropriate professionals. Information from sources other than the Listing Agent may have been included in the MLS data. Unless otherwise specified in writing, Broker/Agent has not and will not verify any information obtained from other sources. The Broker/Agent providing the information contained herein may or may not have been the Listing and/or Selling Agent.