Connect

Find us on...

Dashboard

Login using...

Shawn Bengtson

Office Broker - DRE 01236964

  • Office 760-805-7199
Questions?

20200 Us Highway 18 # D, Apple Valley – $0

  • $0 Price
  • .95 Acres
  • 485 DOM
  • $0 Price
  • .95 Acres
  • 485 DOM

20200 Us Highway 18 # D

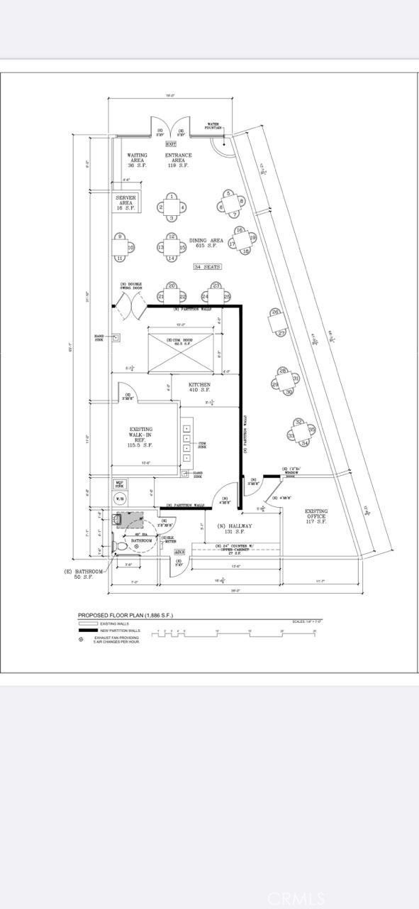
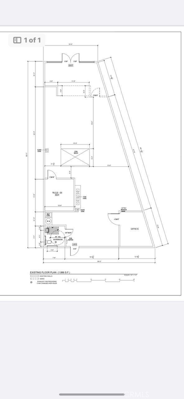
This ±1,886 square foot unit was a former Domino’s Pizza restaurant space which includes a walk-in cooler, hood with fire suppression, grease trap and one restroom. It is currently configured for takeout and delivery; however, the space can be reconfigured to include dining room space and public access to the restroom. Base rent is $1.50 per square foot per month NNN fees are $0.65 per square foot per month. This space requires $25,000.00 Key Money, plus first month’s rent and security deposit. This unit is adjacent to Chase Bank, Albertsons, Denny's Starbucks, Walmart, H&R Block tax services and is part of a larger retail Shopping Center anchored by The Gym. **Please note, although we believe that we have sourced accurate data regarding this property. All prospective Buyers/Tenants are advised to satisfy themselves with all aspects of the subject property prior to completing a final purchase or lease agreement.

Essential Information

  • MLS® #HD24145577
  • Bathrooms0.00
  • Acres0.95
  • Year Built1991
  • TypeCommercial Lease
  • Sub-TypeRetail
  • StatusActive

Community Information

  • Address20200 Us Highway 18 # D
  • AreaAPPV - Apple Valley
  • CityApple Valley
  • CountySan Bernardino
  • Zip Code92307

Interior

  • # of Stories1

Exterior

  • Lot DescriptionLevel, Street Level

Additional Information

  • Date ListedJuly 12th, 2024
  • Days on Market485

Listing Details

  • AgentPaul Casilla
  • OfficeLee & Associates
Please provide a valid email address.

Paul Casilla, Lee & Associates.

Based on information from California Regional Multiple Listing Service, Inc. as of November 14th, 2025 at 12:55pm PST. This information is for your personal, non-commercial use and may not be used for any purpose other than to identify prospective properties you may be interested in purchasing. Display of MLS data is usually deemed reliable but is NOT guaranteed accurate by the MLS. Buyers are responsible for verifying the accuracy of all information and should investigate the data themselves or retain appropriate professionals. Information from sources other than the Listing Agent may have been included in the MLS data. Unless otherwise specified in writing, Broker/Agent has not and will not verify any information obtained from other sources. The Broker/Agent providing the information contained herein may or may not have been the Listing and/or Selling Agent.