Connect

Find us on...

Dashboard

Login using...

Shawn Bengtson

Office Broker - DRE 01236964

  • Office 760-805-7199
Questions?

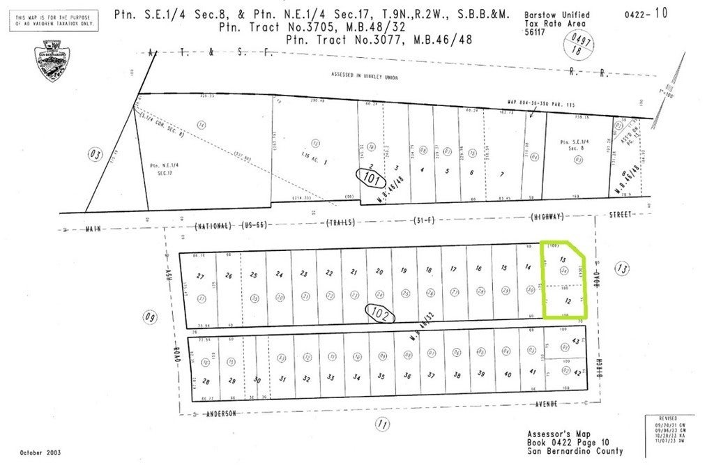
34530 Birch Road, Barstow – $99,990

  • $100k Price
  • .4 Acres
  • 367 DOM
  • $100k Price
  • .4 Acres
  • 367 DOM

34530 Birch Road

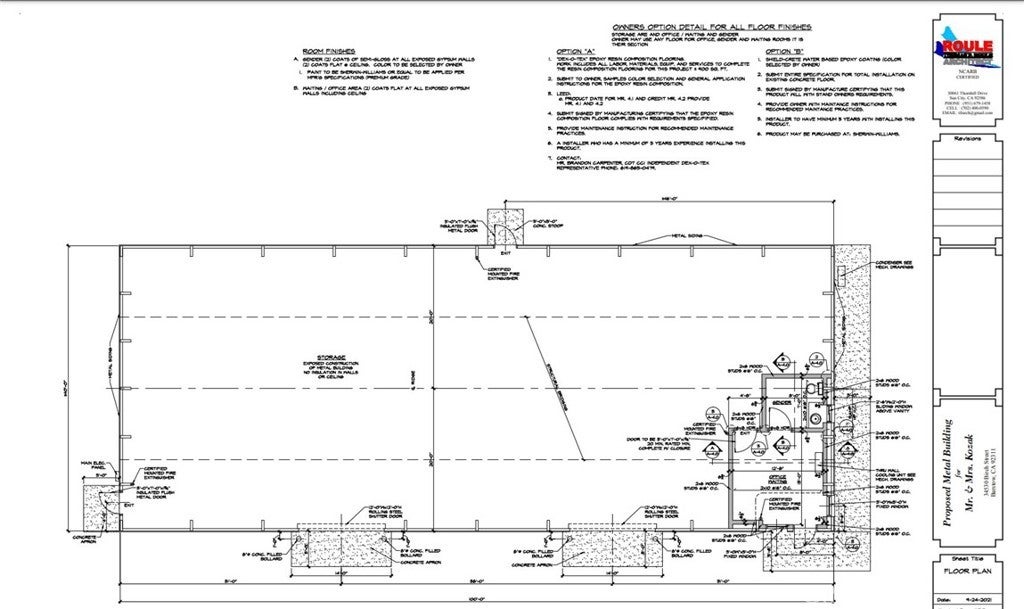
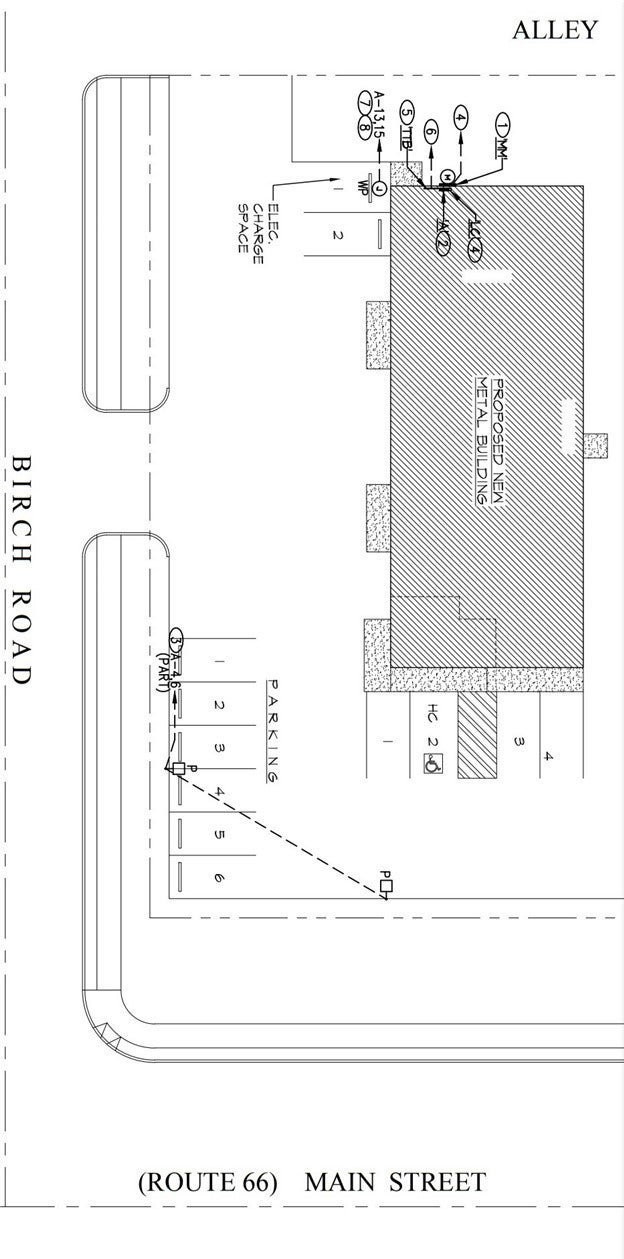
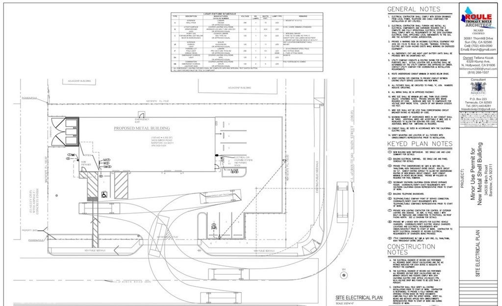
*** Come VIEW and MAKE an OFFER TODAY! Affordable COMMERCIAL LAND DEVELOPMENT OPPORTUNITY located in Barstow CA. The 17,500sf CORNER LOT situated on Birch Rd and Main St is zoned for commercial use allowing for tons of commercial/industrial applications. Included with the land are plans, and permits to develop a 4000sf Metal Building ideal for a savvy real estate investor or anyone looking to expand their business operations. Located right in the heart of town the site is less than 1-block from the Main St and Hwy 58 exit. In addition, the site is not far from Interstate-15, and Interstate 40 offering excellent access to pretty much all of Southern CA. The owner has spent lots of time and money engineering Geo-technical Reports/Studies, Hydrology Study, Grading Plan, Minor Use Permit, Landscaping Plan, Structural Analysis Plans, Mechanical/Plumbing Plans, Electrical Plans, Floor Plans, and Installation Plans. All of these plans, and permits to be included with the sale. With similar commercial/industrial buildings selling in the area for at least $120 per sf or more, all someone has to do is finish the last steps of planning with the city in order to start developing a building at about half the cost it would take to purchase an already constructed building. With the City Of Barstow rapidly expanding, and with the BNSF inter-modal facility coming to the area now is the time to take advantage of the real estate boom to come as the area prepares to accommodate an influx of nearly 20,000 jobs. Not to mention, auxiliary businesses will be needed to aide the increase of future logistical operations. A definite must see opportunity worth of serious consideration before it's too late.

Essential Information

  • MLS® #HD25036567
  • Price$99,990
  • Bathrooms0.00
  • Acres0.40
  • TypeCommercial Sale
  • Sub-TypeWarehouse
  • StatusActive

Community Information

  • Address34530 Birch Road
  • AreaBSTW - Barstow
  • CityBarstow
  • CountySan Bernardino
  • Zip Code92311

Amenities

Utilities

Cable Available, Electricity Available, Natural Gas Available, Phone Available, Sewer Available, Water Available

Interior

  • # of Stories1

Exterior

Lot Description

Corner Lot, Level, Rectangular Lot, Street Level

Additional Information

  • Date ListedFebruary 18th, 2025
  • Days on Market367

Listing Details

  • AgentJeffrey Nyal
  • OfficeColdwell Banker Home Source
Please provide a valid email address.

Price Change History for 34530 Birch Road, Barstow, (MLS® #HD25036567)

Date Details Change
Status Changed from Pending to Active
Price Increased from $79,990 to $99,990 $20,000 (25.00%)
Status Changed from Active to Pending
Price Reduced from $109,990 to $79,990 $30,000 (27.28%)
Price Reduced from $119,990 to $109,990 $10,000 (8.33%)
Show More (1)

Jeffrey Nyal, Coldwell Banker Home Source.

Based on information from California Regional Multiple Listing Service, Inc. as of March 26th, 2026 at 12:43am PDT. This information is for your personal, non-commercial use and may not be used for any purpose other than to identify prospective properties you may be interested in purchasing. Display of MLS data is usually deemed reliable but is NOT guaranteed accurate by the MLS. Buyers are responsible for verifying the accuracy of all information and should investigate the data themselves or retain appropriate professionals. Information from sources other than the Listing Agent may have been included in the MLS data. Unless otherwise specified in writing, Broker/Agent has not and will not verify any information obtained from other sources. The Broker/Agent providing the information contained herein may or may not have been the Listing and/or Selling Agent.