Connect

Find us on...

Dashboard

Login using...

Shawn Bengtson

Office Broker - DRE 01236964

  • Office 760-805-7199
Questions?

15330 Dos Palmas, Victorville – $0

  • $0 Price
  • .51 Acres
  • 4 DOM
  • $0 Price
  • .51 Acres
  • 4 DOM

15330 Dos Palmas

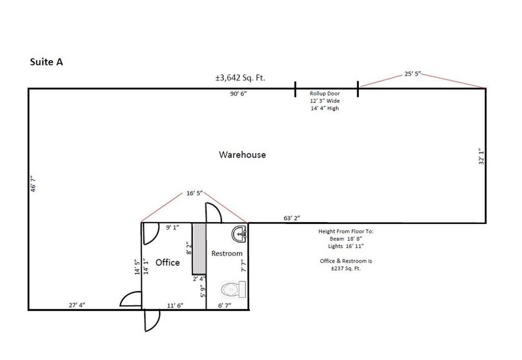
This very clean building is located in the Heart of Victorville in very close proximity to Interstate 15 with easy access to the North & the South. This open floor plan unit is ±3,642 Sq. Ft. with a ceiling height of ±17' and a large ±14' 4" High Roll up door in the back of the unit. Ample parking in both the front of the building & the back with alley way access. The Office & Restroom consume ±237 Sq. Ft., leaving the majority of this unit open for whatever you may need. Great visibility along Dos Palmas Rd. & Amargosa Rd. with traffic counts over ±10,322 per day. Multiple nearby businesses include car dealerships, retail businesses, office professional users and Medical. Large spaces like this are in high demand and do not last long. Call today to schedule a showing.

Essential Information

  • MLS® #HD26075438
  • Bathrooms0.00
  • Acres0.51
  • Year Built1986
  • TypeCommercial Lease
  • Sub-TypeMixed Use
  • StatusActive

Community Information

  • Address15330 Dos Palmas
  • AreaVIC - Victorville
  • CityVictorville
  • CountySan Bernardino
  • Zip Code92392

Amenities

Utilities

Cable Connected, Electricity Connected, Natural Gas Connected, Phone Connected, Water Connected

Interior

  • CoolingEvaporative Cooling
  • # of Stories1

Exterior

  • ExteriorDrywall, Steel
  • Lot DescriptionZeroToOneUnitAcre, Level
  • ConstructionDrywall, Steel

Additional Information

  • Date ListedApril 8th, 2026
  • Days on Market4
  • ZoningIndustrial

Listing Details

  • AgentJames Langley
  • OfficeRigel Capital
Please provide a valid email address.

James Langley, Rigel Capital.

Based on information from California Regional Multiple Listing Service, Inc. as of April 12th, 2026 at 9:21pm PDT. This information is for your personal, non-commercial use and may not be used for any purpose other than to identify prospective properties you may be interested in purchasing. Display of MLS data is usually deemed reliable but is NOT guaranteed accurate by the MLS. Buyers are responsible for verifying the accuracy of all information and should investigate the data themselves or retain appropriate professionals. Information from sources other than the Listing Agent may have been included in the MLS data. Unless otherwise specified in writing, Broker/Agent has not and will not verify any information obtained from other sources. The Broker/Agent providing the information contained herein may or may not have been the Listing and/or Selling Agent.