Connect

Find us on...

Dashboard

Login using...

Shawn Bengtson

Office Broker - DRE 01236964

  • Office 760-805-7199
Questions?

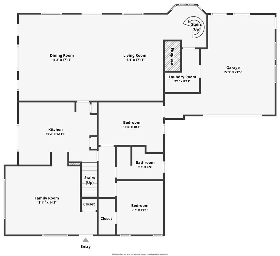
40153 Lakeview Drive, Big Bear Lake – $1,079,000

  • 4 Beds
  • 3 Baths
  • 2,375 Sqft
  • .32 Acres
  • 4 Beds
  • 3 Baths
  • 2,375 Sqft
  • .32 Acres

40153 Lakeview Drive

Motivated Sellers! Discover the ultimate mountain getaway with peaceful lake views and only steps to Big Bear Lake access. This iconic 4-bedroom, 3-bathroom home offers everything you need for a perfect vacation or full-time residence. Wake up to serene lake views every day from your spacious and cozy retreat. Enjoy the luxury of a fully remodeled kitchen and bathrooms, designed with both style and functionality in mind. Move right in or continue its legacy as a popular vacation rental, as this home is turnkey ready for immediate enjoyment. The game room/garage provides endless fun, ensuring guests and family are always entertained. Home to a well-known volleyball court, this property offers unique amenities that set it apart from the rest. Additional features include updated windows, a fresh coat of paint, and a durable 50-year fire-resistant roof, ensuring peace of mind and long-lasting beauty. Experience mountain living at its finest with this charming lakeview retreat!

Essential Information

  • MLS® #IG25077617
  • Price$1,079,000
  • Bedrooms4
  • Bathrooms3.00
  • Full Baths3
  • Square Footage2,375
  • Acres0.32
  • Year Built1962
  • TypeResidential
  • Sub-TypeSingle Family Residence
  • StyleCustom
  • StatusActive

Community Information

  • Address40153 Lakeview Drive
  • Area289 - Big Bear Area
  • CityBig Bear Lake
  • CountySan Bernardino
  • Zip Code92315

Amenities

  • UtilitiesNatural Gas Connected
  • Parking Spaces2
  • # of Garages2
  • WaterfrontLake
  • PoolNone

View

Neighborhood, Trees/Woods, Water

Interior

  • InteriorCarpet, Laminate
  • CoolingNone
  • FireplaceYes
  • # of Stories2
  • StoriesThree Or More

Interior Features

Ceiling Fan(s), Beamed Ceilings

Appliances

Dishwasher, Gas Cooktop, Gas Range, Gas Water Heater, Microwave, Refrigerator, Gas Oven

Heating

Central, Forced Air, Natural Gas

Fireplaces

Family Room, Living Room, Free Standing

Exterior

  • RoofMetal
  • FoundationRaised

Lot Description

Landscaped, Street Level, Yard, Corner Lot, Lawn

School Information

  • DistrictBear Valley Unified

Additional Information

  • Date ListedApril 10th, 2025
  • Days on Market355

Listing Details

  • AgentRachael Smith
  • OfficeRE/MAX BIG BEAR
Please provide a valid email address.

Price Change History for 40153 Lakeview Drive, Big Bear Lake, (MLS® #IG25077617)

Date Details Change
Price Reduced from $1,099,000 to $1,079,000 $20,000 (1.82%)
Price Reduced from $1,125,000 to $1,099,000 $26,000 (2.31%)
Price Reduced from $1,130,000 to $1,125,000 $5,000 (0.44%)
Price Reduced from $1,135,000 to $1,130,000 $5,000 (0.44%)
Price Reduced from $1,140,000 to $1,135,000 $5,000 (0.44%)
Show More (6)

Rachael Smith, RE/MAX BIG BEAR.

Based on information from California Regional Multiple Listing Service, Inc. as of April 2nd, 2026 at 4:30am PDT. This information is for your personal, non-commercial use and may not be used for any purpose other than to identify prospective properties you may be interested in purchasing. Display of MLS data is usually deemed reliable but is NOT guaranteed accurate by the MLS. Buyers are responsible for verifying the accuracy of all information and should investigate the data themselves or retain appropriate professionals. Information from sources other than the Listing Agent may have been included in the MLS data. Unless otherwise specified in writing, Broker/Agent has not and will not verify any information obtained from other sources. The Broker/Agent providing the information contained herein may or may not have been the Listing and/or Selling Agent.