Connect

Find us on...

Dashboard

Login using...

Shawn Bengtson

Office Broker - DRE 01236964

  • Office 760-805-7199
Questions?

39080 Waterview Drive, Big Bear Lake – $1,379,000

  • 4 Beds
  • 3 Baths
  • 3,698 Sqft
  • .12 Acres
  • 4 Beds
  • 3 Baths
  • 3,698 Sqft
  • .12 Acres

39080 Waterview Drive

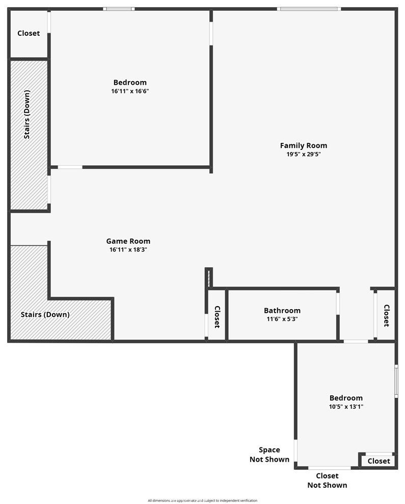
Experience the best of mountain living at 39080 Waterview Drive, a stunning lake view home for sale in Big Bear Lake, California. While not directly on the waterfront, this custom-designed home captures the essence of lakefront living with breathtaking panoramic views that stretch over the pines and toward Big Bear Lake. Inside, the home offers 3,698 square feet of beautifully designed space featuring vaulted ceilings, rich wood finishes, and walls of windows that flood the home with natural light. The heart of the home is a chef-inspired kitchen with quartz countertops, custom maple cabinetry, and stainless steel appliances—perfect for hosting or everyday living. The main-level primary suite includes a spa-style bathroom, walk-in closet, and private deck access. A versatile downstairs bonus room can serve as a game room, guest quarters, or home office. Additional highlights include central air conditioning, forced air heating, an epoxy-finished garage, and a large driveway with ample parking. Located just a short drive from Snow Summit, Bear Mountain, Big Bear Lake Village, and the marina, this home is a perfect choice for a full-time residence, vacation getaway, or short-term rental investment.

Essential Information

  • MLS® #IG25092238
  • Price$1,379,000
  • Bedrooms4
  • Bathrooms3.00
  • Full Baths3
  • Square Footage3,698
  • Acres0.12
  • Year Built2009
  • TypeResidential
  • Sub-TypeSingle Family Residence
  • StatusActive

Community Information

  • Address39080 Waterview Drive
  • Area289 - Big Bear Area
  • CityBig Bear Lake
  • CountySan Bernardino
  • Zip Code92315

Amenities

  • Parking Spaces2
  • # of Garages2
  • ViewLake, Trees/Woods
  • PoolNone

Utilities

Sewer Connected, Electricity Connected, Natural Gas Connected, Water Connected

Interior

  • InteriorCarpet, Tile
  • HeatingCentral
  • CoolingNone
  • FireplaceYes
  • FireplacesGas, Living Room
  • # of Stories1
  • StoriesOne

Interior Features

Open Floorplan, Bedroom on Main Level, Main Level Primary, Ceiling Fan(s), Living Room Deck Attached

Appliances

Dishwasher, Gas Range, Microwave, Refrigerator, Dryer, Washer, Gas Oven

Exterior

  • Lot DescriptionSloped Down

School Information

  • DistrictBear Valley Unified

Additional Information

  • Date ListedMarch 27th, 2025
  • Days on Market339

Listing Details

  • AgentDaniel Easterby
  • OfficeKELLER WILLIAMS BIG BEAR
Please provide a valid email address.

Price Change History for 39080 Waterview Drive, Big Bear Lake, (MLS® #IG25092238)

Date Details Change
Price Increased from $1,329,000 to $1,379,000 $50,000 (3.76%)
Price Reduced from $1,379,000 to $1,329,000 $50,000 (3.63%)

Daniel Easterby, KELLER WILLIAMS BIG BEAR.

Based on information from California Regional Multiple Listing Service, Inc. as of April 2nd, 2026 at 9:31am PDT. This information is for your personal, non-commercial use and may not be used for any purpose other than to identify prospective properties you may be interested in purchasing. Display of MLS data is usually deemed reliable but is NOT guaranteed accurate by the MLS. Buyers are responsible for verifying the accuracy of all information and should investigate the data themselves or retain appropriate professionals. Information from sources other than the Listing Agent may have been included in the MLS data. Unless otherwise specified in writing, Broker/Agent has not and will not verify any information obtained from other sources. The Broker/Agent providing the information contained herein may or may not have been the Listing and/or Selling Agent.