Connect

Find us on...

Dashboard

Login using...

Shawn Bengtson

Office Broker - DRE 01236964

  • Office 760-805-7199
Questions?

245 N Evans Street, Banning – $599,899

  • 4 Beds
  • 3 Baths
  • 2,144 Sqft
  • .16 Acres
  • 4 Beds
  • 3 Baths
  • 2,144 Sqft
  • .16 Acres

245 N Evans Street

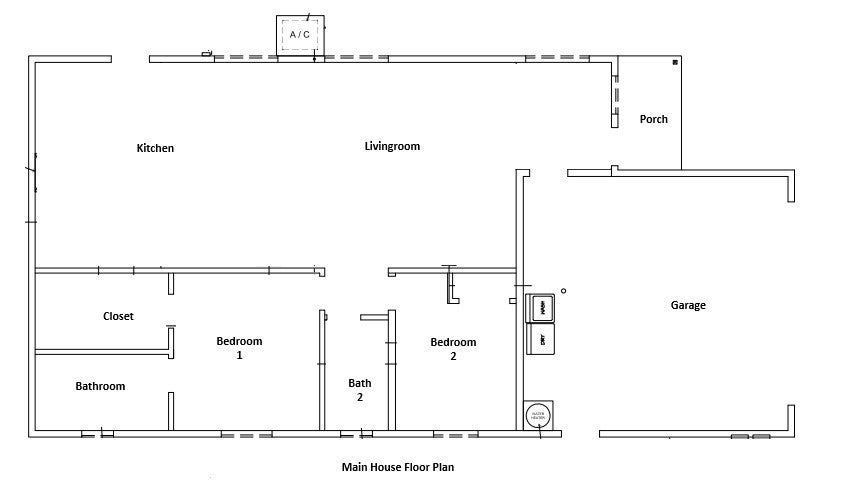
Your opportunity to own a BRAND new home plus an Accessory Dwelling unit (ADU)! The home is a 2 bedroom, 2 bath 1,222 sq ft home with a 2 car garage. Walk in closet in the main bedroom. The ADU is a 2 bedroom, 1 bath 922 sq ft ADU. Both are smartly designed for comfortable living! The kitchen and baths will come with White Shaker style cabinets and white quartz counter tops. The exterior walls are made with 2x6 lumber and filled with insulation. The windows are dual pane windows. New technology to keep your home cool in the summer and warm in the winter. The solar production system is fully paid for and will be owned by you with no payments to anyone for the power it produces. The home and ADU both have vinyl flooring throughout. They are currently under construction BUT we ARE now ready for showings. There is still work needed to be done to complete the project which is on going. Yet, you can come see it for yourself now to make it yours before someone else does.

Essential Information

  • MLS® #IG25196997
  • Price$599,899
  • Bedrooms4
  • Bathrooms3.00
  • Full Baths3
  • Square Footage2,144
  • Acres0.16
  • Year Built2025
  • TypeResidential
  • Sub-TypeDuplex
  • StatusActive

Community Information

  • Address245 N Evans Street
  • Subdivisionn/a
  • CityBanning
  • CountyRiverside
  • Zip Code92220

Area

263 - Banning/Beaumont/Cherry Valley

Amenities

  • Parking Spaces2
  • ParkingDriveway, Garage Faces Front
  • # of Garages2
  • GaragesDriveway, Garage Faces Front
  • ViewNone
  • PoolNone

Utilities

Electricity Connected, Sewer Connected, Water Connected

Interior

  • InteriorVinyl
  • HeatingCentral
  • CoolingCentral Air
  • FireplacesNone
  • # of Stories1
  • StoriesOne

Interior Features

Jack and Jill Bath, Open Floorplan, Quartz Counters, Walk-In Closet(s)

Appliances

Electric Range, Electric Water Heater, Tankless Water Heater

Exterior

  • ExteriorDrywall, Stucco
  • WindowsDouble Pane Windows
  • RoofComposition
  • ConstructionDrywall, Stucco
  • FoundationSlab

Lot Description

Level, Rectangular Lot, Street Level

School Information

  • DistrictBanning Unified

Additional Information

  • Date ListedAugust 28th, 2025
  • Days on Market224
  • ZoningR2

Listing Details

  • AgentDarren Jenkins
  • OfficeGREAT DAY REALTY
Please provide a valid email address.

Price Change History for 245 N Evans Street, Banning, (MLS® #IG25196997)

Date Details Change
Price Reduced from $599,900 to $599,899 $1 (0.00%)

Darren Jenkins, GREAT DAY REALTY.

Based on information from California Regional Multiple Listing Service, Inc. as of April 14th, 2026 at 4:45am PDT. This information is for your personal, non-commercial use and may not be used for any purpose other than to identify prospective properties you may be interested in purchasing. Display of MLS data is usually deemed reliable but is NOT guaranteed accurate by the MLS. Buyers are responsible for verifying the accuracy of all information and should investigate the data themselves or retain appropriate professionals. Information from sources other than the Listing Agent may have been included in the MLS data. Unless otherwise specified in writing, Broker/Agent has not and will not verify any information obtained from other sources. The Broker/Agent providing the information contained herein may or may not have been the Listing and/or Selling Agent.