Connect

Find us on...

Dashboard

Login using...

Shawn Bengtson

Office Broker - DRE 01236964

  • Office 760-805-7199
Questions?

20065 Curaco Court, Riverside – $699,000

  • 3 Beds
  • 3 Baths
  • 2,063 Sqft
  • .12 Acres
  • 3 Beds
  • 3 Baths
  • 2,063 Sqft
  • .12 Acres

20065 Curaco Court

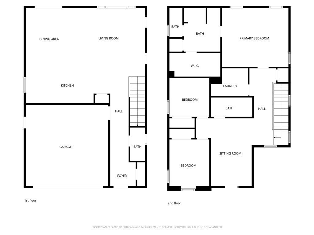
This home truly checks all the boxes: Prime location in the Spring Mountain Ranch community, smart layout, modern upgrades, and an easy, low-maintenance lifestyle. Ideal for a first-time buyer, growing family, or savvy investor, this thoughtfully designed residence offers comfort and functionality throughout. The open-concept first floor seamlessly blends the kitchen, living, and dining areas—perfect for everyday living, entertaining, and multitasking. The kitchen is a standout, featuring a large center island, upgraded quartz countertops, stylish backsplash, pendant lighting, recessed canned lights, and upgraded cabinetry, all complemented by durable vinyl flooring and 9-foot ceilings that enhance the sense of space and light. Media cord-hiding outlets add a clean, modern touch. Upstairs, you’ll find all three bedrooms, a versatile loft ideal for a home office, gym, or play area, and a convenient laundry room, keeping daily routines efficient. The bedroom layout offers privacy and separation from the main living spaces, while a downstairs half bath is perfect for guests. Additional highlights include: Leased Solar at approx. $117/month Low HOA of approx. $110/month Open floor plan with abundant natural light. Upgraded lighting and finishes throughout. Located in a well-maintained community close to shopping, dining, schools, and commuter routes, this home delivers modern living with long-term value. Come see if this is the home for you before it is gone...

Essential Information

  • MLS® #IG26030113
  • Price$699,000
  • Bedrooms3
  • Bathrooms3.00
  • Full Baths2
  • Half Baths1
  • Square Footage2,063
  • Acres0.12
  • Year Built2022
  • TypeResidential
  • Sub-TypeSingle Family Residence
  • StatusActive

Community Information

  • Address20065 Curaco Court
  • Area252 - Riverside
  • CityRiverside
  • CountyRiverside
  • Zip Code92507

Amenities

  • AmenitiesOther
  • Parking Spaces2
  • # of Garages2
  • ViewMountain(s), Neighborhood
  • PoolNone

Interior

  • Interior FeaturesLoft, Walk-In Closet(s)
  • HeatingCentral
  • CoolingCentral Air
  • FireplacesNone
  • # of Stories2
  • StoriesTwo

Exterior

  • Lot DescriptionYard

School Information

  • DistrictRiverside Unified

Additional Information

  • Date ListedFebruary 9th, 2026
  • Days on Market50
  • HOA Fees110
  • HOA Fees Freq.Monthly

Listing Details

  • AgentToan Bui
  • OfficeArnott & Associates
Please provide a valid email address.

Price Change History for 20065 Curaco Court, Riverside, (MLS® #IG26030113)

Date Details Change
Price Reduced from $715,000 to $699,000 $16,000 (2.24%)

Toan Bui, Arnott & Associates.

Based on information from California Regional Multiple Listing Service, Inc. as of April 1st, 2026 at 6:55am PDT. This information is for your personal, non-commercial use and may not be used for any purpose other than to identify prospective properties you may be interested in purchasing. Display of MLS data is usually deemed reliable but is NOT guaranteed accurate by the MLS. Buyers are responsible for verifying the accuracy of all information and should investigate the data themselves or retain appropriate professionals. Information from sources other than the Listing Agent may have been included in the MLS data. Unless otherwise specified in writing, Broker/Agent has not and will not verify any information obtained from other sources. The Broker/Agent providing the information contained herein may or may not have been the Listing and/or Selling Agent.