Connect

Find us on...

Dashboard

Login using...

Shawn Bengtson

Office Broker - DRE 01236964

  • Office 760-805-7199
Questions?

Lynn Road, Big Bear Lake – $749,900

  • $750k Price
  • .45 Acres
  • 48 DOM
  • $750k Price
  • .45 Acres
  • 48 DOM

Lynn Road

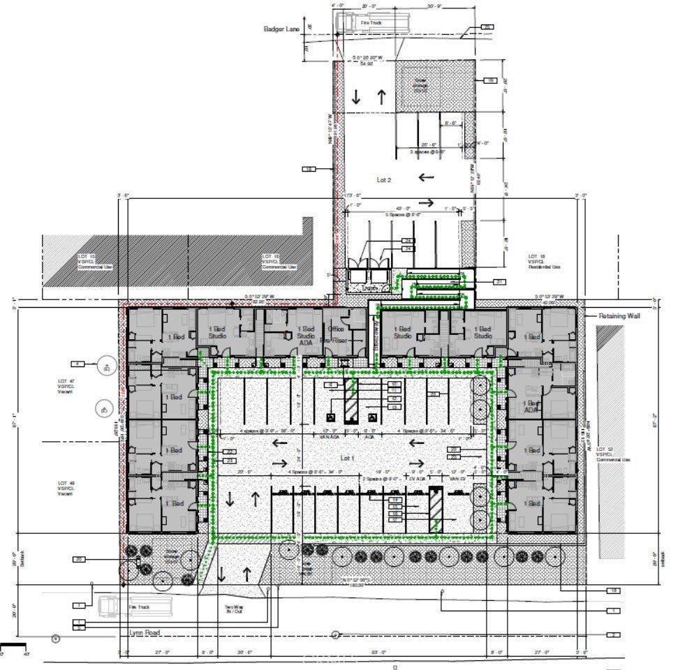
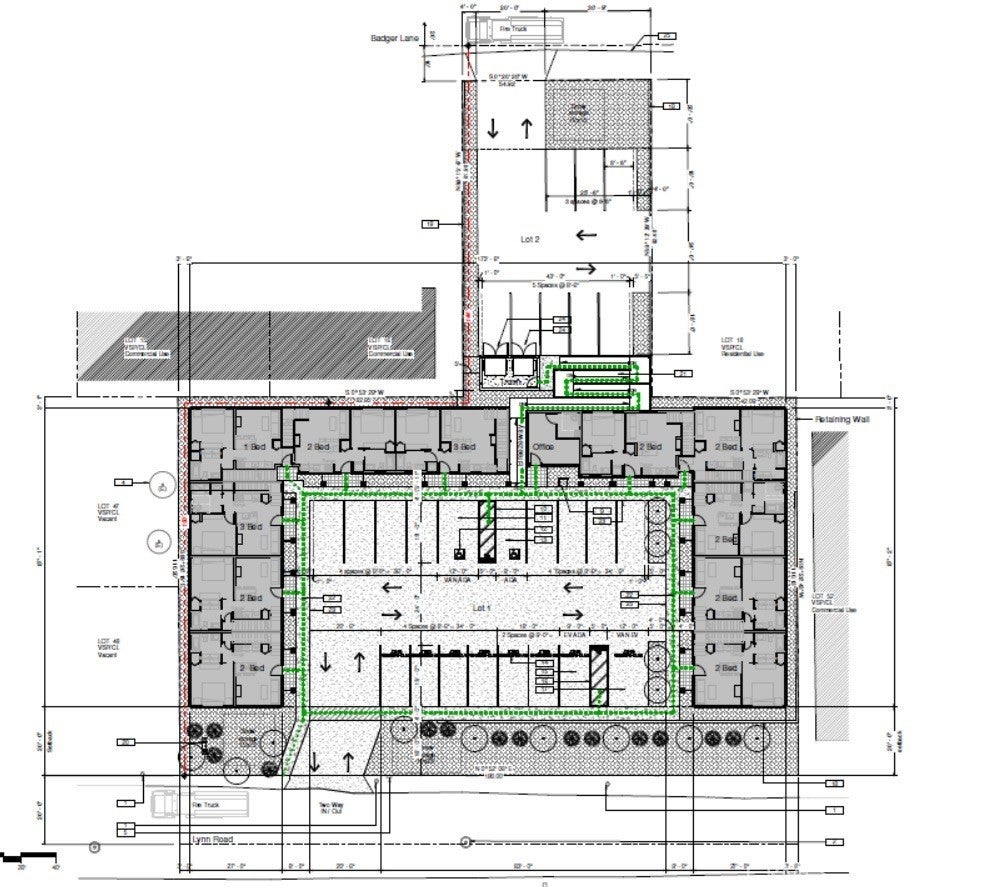
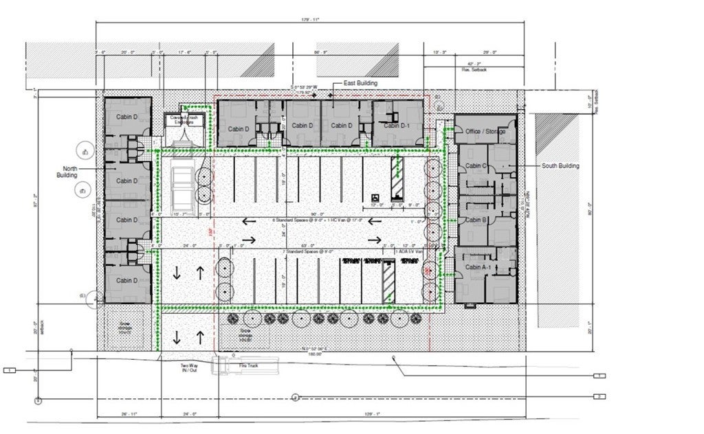
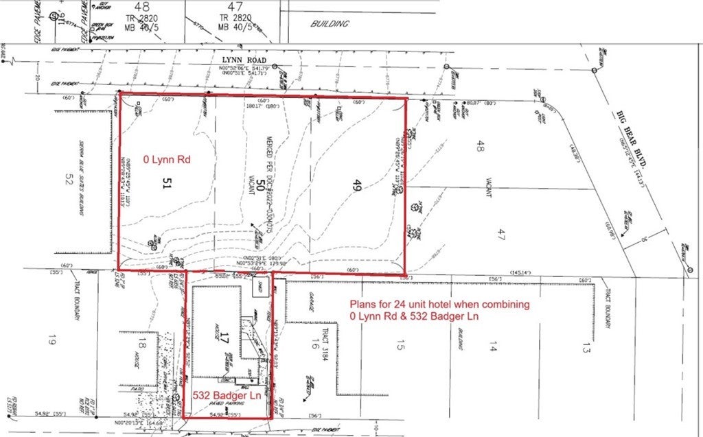
Exceptional development opportunity in Big Bear Lake within the highly desirable Village Specific Plan. This 19,800 sq.ft. commercial land parcel is zoned Commercial Lodging and offers rare flexibility for investors and developers seeking hospitality, residential, or retail potential in the heart of Big Bear Village. The property can be purchased on its own or combined with the adjacent lot at 532 Badger Ln (offered at $549,900) to unlock larger-scale development options. When assembled, preliminary plans are already in place for a 24-unit (16 one bedrooms/8 studios) hotel, as well as alternative plans for a 6-unit condo project, providing multiple viable paths depending on market strategy. The subject parcel alone can accommodate an 11 rental unit hotel + office/storage, with preliminary plans completed, or a 5-unit condo development, offering flexibility for phased or smaller-scale projects. Once built, upper-level and second-story units are anticipated to enjoy lake views, further enhancing long-term value and guest appeal. A perc test was completed in 2023, adding further value and reducing pre-development uncertainty. The location is a major highlight, just steps from the lake and a short walk to Pine Knot Ave, restaurants, shops, and entertainment, making it ideal for lodging, residential, or visitor-serving uses. In addition to hotel and condo development, the Village Specific Plan allows for a variety of other potential uses including residential, retail, restaurants, and related commercial uses, subject to approval. Buyer to conduct all due diligence with the planning commission and applicable agencies regarding permitted uses and development requirements.

Essential Information

  • MLS® #IG26032209
  • Price$749,900
  • Bathrooms0.00
  • Acres0.45
  • TypeLand
  • StatusActive

Community Information

  • AddressLynn Road
  • Area289 - Big Bear Area
  • CityBig Bear Lake
  • CountySan Bernardino
  • Zip Code92315

Amenities

  • ViewLake, Mountain(s), Valley

Utilities

Cable Available, Electricity Available, Natural Gas Available, Phone Available, Sewer Available, Water Available

Exterior

Lot Description

ZeroToOneUnitAcre, Sloped Down, Rectangular Lot, Near Public Transit

Additional Information

  • Date ListedFebruary 13th, 2026
  • Days on Market48
  • ZoningCommercial Lodging

Listing Details

  • AgentJason Saphire
  • OfficeJason Saphire Broker
Please provide a valid email address.

Jason Saphire, Jason Saphire Broker.

Based on information from California Regional Multiple Listing Service, Inc. as of April 2nd, 2026 at 4:15am PDT. This information is for your personal, non-commercial use and may not be used for any purpose other than to identify prospective properties you may be interested in purchasing. Display of MLS data is usually deemed reliable but is NOT guaranteed accurate by the MLS. Buyers are responsible for verifying the accuracy of all information and should investigate the data themselves or retain appropriate professionals. Information from sources other than the Listing Agent may have been included in the MLS data. Unless otherwise specified in writing, Broker/Agent has not and will not verify any information obtained from other sources. The Broker/Agent providing the information contained herein may or may not have been the Listing and/or Selling Agent.