Connect

Find us on...

Dashboard

Login using...

Shawn Bengtson

Office Broker - DRE 01236964

  • Office 760-805-7199
Questions?

17001 Sandoval Lane, Fontana – $705,000

  • 4 Beds
  • 3 Baths
  • 2,033 Sqft
  • .1 Acres
  • 4 Beds
  • 3 Baths
  • 2,033 Sqft
  • .1 Acres

17001 Sandoval Lane

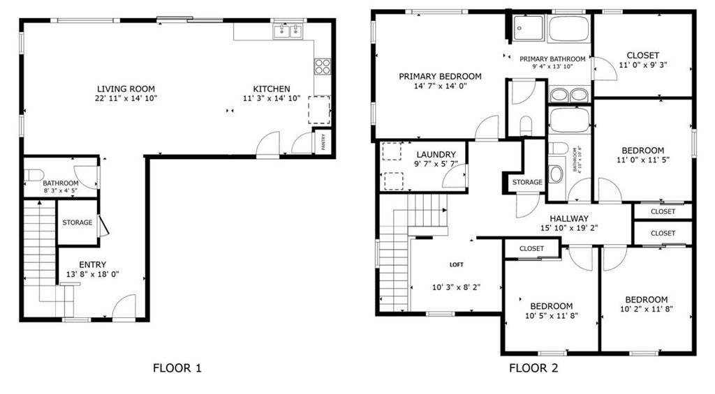
Welcome to this bright and thoughtfully designed home offering modern features and a functional layout. The open-concept main level seamlessly connects the kitchen, living, and dining areas—perfect for both everyday living and entertaining. Tile flooring runs throughout the main level, while plush carpeting adds comfort upstairs. The kitchen and living spaces are filled with natural light and feature a sliding glass door that opens to the backyard—currently a blank canvas ready for your personal touch. Additional main-level highlights include direct access to the attached 2-car garage. This home is equipped with valuable upgrades including including owned solar, a Tesla backup battery, reverse osmosis system, and water softener—providing efficiency, convenience, and peace of mind. Upstairs, a versatile loft has been enclosed with a door for added privacy, making it ideal as a home office, media room, or additional living space. The spacious primary suite offers a walk-in closet and an en-suite bathroom complete with dual sinks, a soaking tub, and a separate shower. Three additional bedrooms share a full bathroom, and a convenient upstairs laundry room completes the second level. This home combines comfort, flexibility, and modern amenities in a desirable layout ready to fit your lifestyle.

Essential Information

  • MLS® #IG26075255
  • Price$705,000
  • Bedrooms4
  • Bathrooms3.00
  • Full Baths2
  • Half Baths1
  • Square Footage2,033
  • Acres0.10
  • Year Built2020
  • TypeResidential
  • Sub-TypeSingle Family Residence
  • StatusActive

Community Information

  • Address17001 Sandoval Lane
  • Area264 - Fontana
  • CityFontana
  • CountySan Bernardino
  • Zip Code92336

Amenities

  • Parking Spaces4
  • # of Garages2
  • ViewMountain(s), Neighborhood
  • PoolNone

Parking

Concrete, Direct Access, Driveway, Electric Vehicle Charging Station(s), Garage Faces Front, Garage

Garages

Concrete, Direct Access, Driveway, Electric Vehicle Charging Station(s), Garage Faces Front, Garage

Interior

  • InteriorCarpet, Laminate, Tile
  • FireplacesNone
  • # of Stories2
  • StoriesTwo

Interior Features

Breakfast Bar, Granite Counters, High Ceilings, Open Floorplan, Pantry, Recessed Lighting, All Bedrooms Up, Attic, Entrance Foyer, Loft, Walk-In Closet(s)

Appliances

Dishwasher, Gas Cooktop, Disposal, Gas Oven, Microwave, Refrigerator, Water Softener, Tankless Water Heater, Water To Refrigerator, Water Purifier

Heating

Central, ENERGY STAR Qualified Equipment

Cooling

Central Air, ENERGY STAR Qualified Equipment

Exterior

  • Lot DescriptionZeroToOneUnitAcre, Back Yard
  • RoofShingle

School Information

  • DistrictRialto Unified

Additional Information

  • Date ListedApril 9th, 2026
  • Days on Market7

Listing Details

  • AgentPradinya Shastri
  • OfficeREDFIN
Please provide a valid email address.

Pradinya Shastri, REDFIN.

Based on information from California Regional Multiple Listing Service, Inc. as of April 16th, 2026 at 1:10am PDT. This information is for your personal, non-commercial use and may not be used for any purpose other than to identify prospective properties you may be interested in purchasing. Display of MLS data is usually deemed reliable but is NOT guaranteed accurate by the MLS. Buyers are responsible for verifying the accuracy of all information and should investigate the data themselves or retain appropriate professionals. Information from sources other than the Listing Agent may have been included in the MLS data. Unless otherwise specified in writing, Broker/Agent has not and will not verify any information obtained from other sources. The Broker/Agent providing the information contained herein may or may not have been the Listing and/or Selling Agent.