Connect

Find us on...

Dashboard

Login using...

Shawn Bengtson

Office Broker - DRE 01236964

  • Office 760-805-7199
Questions?

Ave Valdez, Cathedral City – $204,900

  • $205k Price
  • .17 Acres
  • 125 DOM
  • $205k Price
  • .17 Acres
  • 125 DOM

Ave Valdez

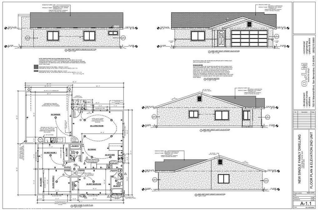
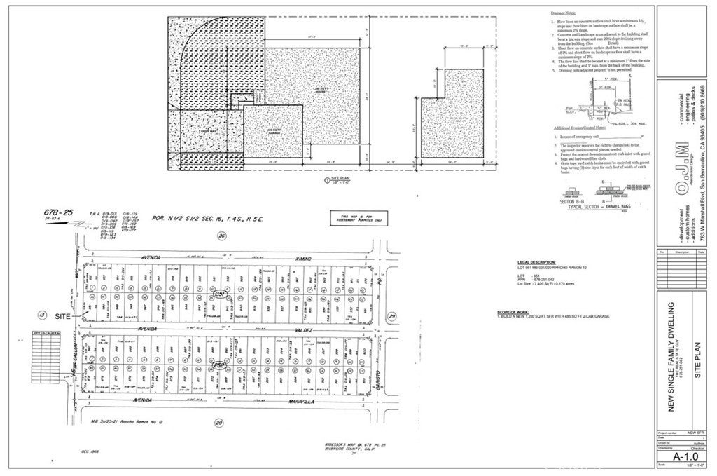
Corner Lot with Custom Home Design Plans with an ADU – Save Over $100K! Build your dream home and enjoy instant savings! This prime corner lot comes with professionally designed architectural plans. This could save you over $100,000 compared to buying from a builder who will also add costly special assessments. Located in a desirable area, this property offers the perfect blend of convenience and potential. The included plans maximize space, style, and functionality, giving you a head start on construction. Whether you’re building for yourself or as an investment, this is a rare opportunity to secure land and a ready-to-build design package in one. Opportunities like this don’t last long—make it yours today!

Essential Information

  • MLS® #IV25188219
  • Price$204,900
  • Bathrooms0.00
  • Acres0.17
  • TypeLand
  • StatusActive

Community Information

  • AddressAve Valdez
  • Area335 - Cathedral City North
  • Subdivisionunknown
  • CityCathedral City
  • CountyRiverside
  • Zip Code92234

Amenities

  • ViewNone

Exterior

  • Lot DescriptionValue In Land

Additional Information

  • Date ListedAugust 20th, 2025
  • Days on Market125
  • ZoningR1

Listing Details

  • AgentJerry Avila
  • OfficeALL NATIONS REALTY & INVS
Please provide a valid email address.

Price Change History for Ave Valdez, Cathedral City, (MLS® #IV25188219)

Date Details Change
Price Reduced from $209,900 to $204,900 $5,000 (2.38%)
Price Reduced from $225,000 to $209,900 $15,100 (6.71%)

Jerry Avila, ALL NATIONS REALTY & INVS.

Based on information from California Regional Multiple Listing Service, Inc. as of December 23rd, 2025 at 12:30pm PST. This information is for your personal, non-commercial use and may not be used for any purpose other than to identify prospective properties you may be interested in purchasing. Display of MLS data is usually deemed reliable but is NOT guaranteed accurate by the MLS. Buyers are responsible for verifying the accuracy of all information and should investigate the data themselves or retain appropriate professionals. Information from sources other than the Listing Agent may have been included in the MLS data. Unless otherwise specified in writing, Broker/Agent has not and will not verify any information obtained from other sources. The Broker/Agent providing the information contained herein may or may not have been the Listing and/or Selling Agent.