Connect

Find us on...

Dashboard

Login using...

Shawn Bengtson

Office Broker - DRE 01236964

  • Office 760-805-7199
Questions?

1048 E 5th Street, Long Beach – $2,350,000

  • $2.4M Price
  • .34 Acres
  • 6 DOM
  • $2.4M Price
  • .34 Acres
  • 6 DOM

1048 E 5th Street

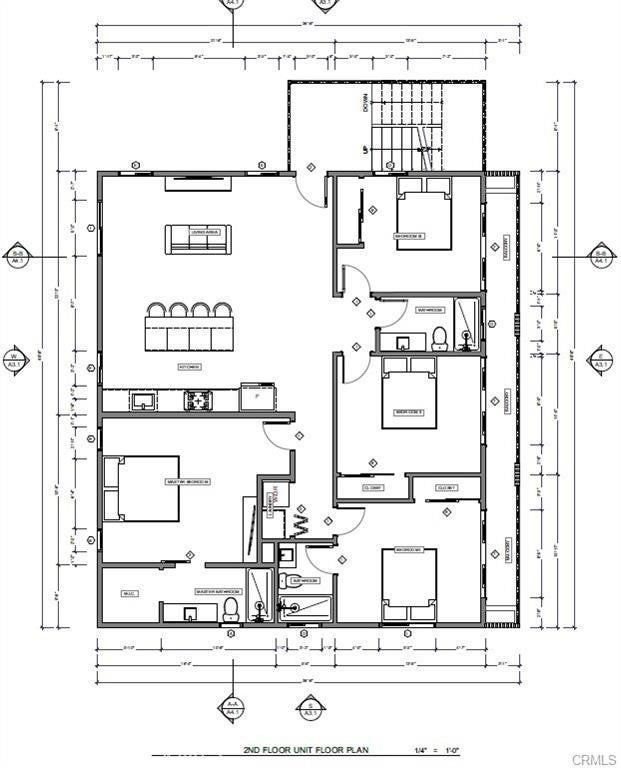
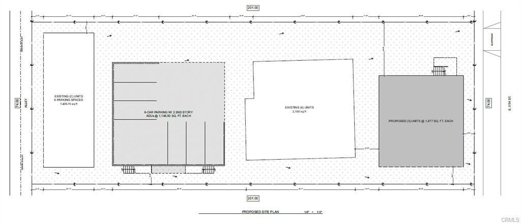
***Immediate Income Opportunity***Value-add 6-unit in Long Beach with permits for 5 additional units + parking. Fully renovated, strong cash flow, and shovel-ready expansion. High upside via development or hold. Contact agent for detailed pro forma and plans. Rare Long Beach opportunity: a fully stabilized 6-unit multifamily income property (5 of 6 units recently renovated, 6th unit has been updated) offered with approved and paid permits for 5 additional units plus structured parking. The redevelopment plan includes 3 × 4BR/3BA & 2 × 3BR/2BA ADUs above parking — conservatively modeled to generate AN ADDITIONAL $23,000/month in rent once built. Pro-forma NOI (post-build) projects to ~$316,739 on gross schedule income of ~$444,120/year. Permits are in hand, making this a fast-to-market value play. Located near freeway access, top Long Beach dining and shopping corridors, and waterfront attractions. Excellent for investors seeking both strong cash flow and development upside.

Essential Information

  • MLS® #IV25264295
  • Price$2,350,000
  • Bathrooms0.00
  • Acres0.34
  • Year Built1915
  • TypeCommercial Sale
  • Sub-TypeMulti Family
  • StatusActive

Community Information

  • Address1048 E 5th Street
  • CityLong Beach
  • CountyLos Angeles
  • Zip Code90802

Area

4 - Downtown Area, Alamitos Beach

Interior

  • # of Stories2

Additional Information

  • Date ListedNovember 21st, 2025
  • Days on Market6

Listing Details

  • AgentJennifer Mendoza
  • OfficeEXP REALTY OF CALIFORNIA INC
Please provide a valid email address.

Jennifer Mendoza, EXP REALTY OF CALIFORNIA INC.

Based on information from California Regional Multiple Listing Service, Inc. as of November 27th, 2025 at 6:15am PST. This information is for your personal, non-commercial use and may not be used for any purpose other than to identify prospective properties you may be interested in purchasing. Display of MLS data is usually deemed reliable but is NOT guaranteed accurate by the MLS. Buyers are responsible for verifying the accuracy of all information and should investigate the data themselves or retain appropriate professionals. Information from sources other than the Listing Agent may have been included in the MLS data. Unless otherwise specified in writing, Broker/Agent has not and will not verify any information obtained from other sources. The Broker/Agent providing the information contained herein may or may not have been the Listing and/or Selling Agent.