Connect

Find us on...

Dashboard

Login using...

Shawn Bengtson

Office Broker - DRE 01236964

  • Office 760-805-7199
Questions?

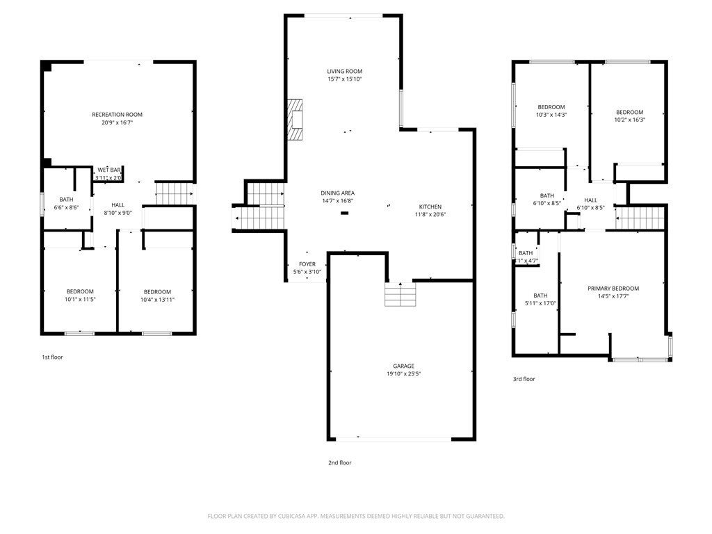
23313 Almarosa, Torrance – $2,288,000

  • 5 Beds
  • 3 Baths
  • 2,534 Sqft
  • .16 Acres
  • 5 Beds
  • 3 Baths
  • 2,534 Sqft
  • .16 Acres

23313 Almarosa

Step inside this stunning fully remodeled tri-level home in the highly sought-after Marble Estates of Torrance, where modern luxury meets exceptional indoor-outdoor living providing an Entertainers Delight! Boasting 5 bedrooms, 3 bathrooms, and approximately 2,534 sq ft of thoughtfully upgraded living space, this 1964 residence has been enhanced with hundreds of thousands of dollars in premium improvements that are truly unmatched in the neighborhood. From the moment you arrive, the fully landscaped front yard with low-maintenance turf creates impressive curb appeal. Inside, soaring high ceilings and an open-concept layout fill the home with natural light and create a seamless flow between living spaces. The beautifully updated kitchen with high end stainless steel appliances, custom cabinetry that opens directly to the main living room and out to your private backyard retreat—perfectly designed for effortless entertaining. The resort-style backyard is an entertainer’s dream, featuring a custom pool and spa, built-in BBQ/Kitchen area, and a thoughtfully designed exterior sitting area complete with heating features for year-round enjoyment. Whether hosting gatherings or relaxing under the stars, this outdoor space delivers the ultimate Southern California lifestyle. Additional highlights include a fully finished custom garage, spacious bedroom layout ideal for multigenerational living or home office needs, and extensive upgrades throughout that make this home completely move-in ready. With no HOA and low taxes, this rare Marble Estates opportunity offers luxury, functionality, and value all in one exceptional package. Don’t miss your chance to own this turnkey entertainer’s dream in one of Torrance’s most desirable neighborhoods. Do you want your dream home with the upgrades already in place with years of pride of ownership or do want to incur the current costs of doing it yourself at todays costs?? Lets do the Math, this is ready for you to immediately enjoy this summer.

Essential Information

  • MLS® #IV26039508
  • Price$2,288,000
  • Bedrooms5
  • Bathrooms3.00
  • Full Baths3
  • Square Footage2,534
  • Acres0.16
  • Year Built1964
  • TypeResidential
  • Sub-TypeSingle Family Residence
  • StyleModern
  • StatusActive

Community Information

  • Address23313 Almarosa
  • CityTorrance
  • CountyLos Angeles
  • Zip Code90505

Area

127 - South East Torrance - West

Amenities

  • Parking Spaces2
  • # of Garages2
  • ViewNeighborhood
  • Has PoolYes
  • PoolIn Ground, Private

Utilities

Electricity Connected, Natural Gas Connected, Sewer Connected, Water Connected

Parking

Door-Multi, Direct Access, Garage

Garages

Door-Multi, Direct Access, Garage

Interior

  • InteriorTile
  • HeatingCentral
  • CoolingCentral Air
  • FireplaceYes
  • FireplacesLiving Room
  • # of Stories2
  • StoriesThree Or More

Interior Features

Beamed Ceilings, Wet Bar, Multiple Staircases, Open Floorplan, Track Lighting

Exterior

  • ExteriorStucco
  • Exterior FeaturesBarbecue, Lighting
  • Lot DescriptionLevel, Sloped Up
  • WindowsDouble Pane Windows
  • RoofComposition
  • ConstructionStucco
  • FoundationSlab

School Information

  • DistrictTorrance Unified
  • HighTorrance

Additional Information

  • Date ListedFebruary 24th, 2026
  • Days on Market51

Listing Details

  • AgentJames Vega
  • OfficeREAL ESTATE MAVENS
Please provide a valid email address.

Price Change History for 23313 Almarosa, Torrance, (MLS® #IV26039508)

Date Details Change
Price Reduced from $2,375,000 to $2,288,000 $87,000 (3.66%)

James Vega, REAL ESTATE MAVENS.

Based on information from California Regional Multiple Listing Service, Inc. as of April 16th, 2026 at 1:56am PDT. This information is for your personal, non-commercial use and may not be used for any purpose other than to identify prospective properties you may be interested in purchasing. Display of MLS data is usually deemed reliable but is NOT guaranteed accurate by the MLS. Buyers are responsible for verifying the accuracy of all information and should investigate the data themselves or retain appropriate professionals. Information from sources other than the Listing Agent may have been included in the MLS data. Unless otherwise specified in writing, Broker/Agent has not and will not verify any information obtained from other sources. The Broker/Agent providing the information contained herein may or may not have been the Listing and/or Selling Agent.