Connect

Find us on...

Dashboard

Login using...

Shawn Bengtson

Office Broker - DRE 01236964

  • Office 760-805-7199
Questions?

153 Carmine, Irvine – $5,250

  • 3 Beds
  • 3 Baths
  • 2,249 Sqft
  • .06 Acres
  • 3 Beds
  • 3 Baths
  • 2,249 Sqft
  • .06 Acres

153 Carmine

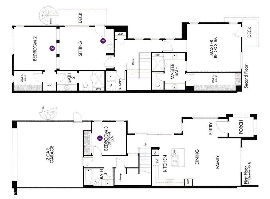
Modern 3 Bed/3 Bath townhome with downstairs bedroom, spacious loft, two decks, solar panels, 2 car garage and EV charger. Built in 2017, this 2,200 sq ft home offers an open layout, vinyl flooring on the first floor and loft, abundant natural light, and multiple outdoor spaces. The downstairs bedroom with full bath is ideal for guests, in-laws, or a home office. Upstairs features a large loft with its own deck, plus a primary suite with walk-in closet, large bath, and a second private deck. Solar panels reduce electricity costs, and the attached 2-car garage includes an EV charging station. Minutes to I-5 and I-405, shopping centers, and the upcoming walkable Canopy center. Zoned for top IUSD schools: Cadence Park (K-8) and Portola High. Great Park HOA amenities include pools, parks, sports courts, playgrounds, and community spaces.

Essential Information

  • MLS® #IV26046291
  • Price$5,250
  • Bedrooms3
  • Bathrooms3.00
  • Full Baths3
  • Square Footage2,249
  • Acres0.06
  • Year Built2017
  • TypeResidential Lease
  • Sub-TypeTownhouse
  • StatusActive

Community Information

  • Address153 Carmine
  • AreaGP - Great Park
  • SubdivisionBIRCH TRAIL (PPBIR)
  • CityIrvine
  • CountyOrange
  • Zip Code92618

Amenities

  • UtilitiesNone
  • Parking Spaces2
  • ParkingGarage, Storage
  • # of Garages2
  • GaragesGarage, Storage
  • ViewMountain(s), Neighborhood
  • Has PoolYes
  • PoolCommunity, Association

Amenities

Dog Park, Barbecue, Pickleball, Pool, Spa/Hot Tub, Tennis Court(s), Sauna

Interior

  • HeatingCentral
  • CoolingCentral Air
  • FireplacesNone
  • # of Stories2
  • StoriesTwo

Interior Features

Separate/Formal Dining Room, Bedroom on Main Level, Loft, Primary Suite, Walk-In Closet(s)

Appliances

SixBurnerStove, Convection Oven, Dishwasher, Electric Oven, Freezer, Gas Cooktop, Microwave, Refrigerator, Tankless Water Heater, Water To Refrigerator, Water Purifier, Dryer, Washer, Hot Water Circulator, Water Softener

Exterior

  • Lot DescriptionLevel, Yard
  • WindowsDouble Pane Windows
  • FoundationSlab

School Information

  • DistrictIrvine Unified

Additional Information

  • Date ListedMarch 2nd, 2026
  • Days on Market39

Listing Details

  • AgentRupi Azrot
  • OfficeLISTLEAN
Please provide a valid email address.

Rupi Azrot, LISTLEAN.

Based on information from California Regional Multiple Listing Service, Inc. as of April 11th, 2026 at 9:30pm PDT. This information is for your personal, non-commercial use and may not be used for any purpose other than to identify prospective properties you may be interested in purchasing. Display of MLS data is usually deemed reliable but is NOT guaranteed accurate by the MLS. Buyers are responsible for verifying the accuracy of all information and should investigate the data themselves or retain appropriate professionals. Information from sources other than the Listing Agent may have been included in the MLS data. Unless otherwise specified in writing, Broker/Agent has not and will not verify any information obtained from other sources. The Broker/Agent providing the information contained herein may or may not have been the Listing and/or Selling Agent.