Connect

Find us on...

Dashboard

Login using...

Shawn Bengtson

Office Broker - DRE 01236964

  • Office 760-805-7199
Questions?

5th Street, Desert Hot Springs – $53,500

  • $53.5k Price
  • .14 Acres
  • 1 DOM
  • $53.5k Price
  • .14 Acres
  • 1 DOM

5th Street

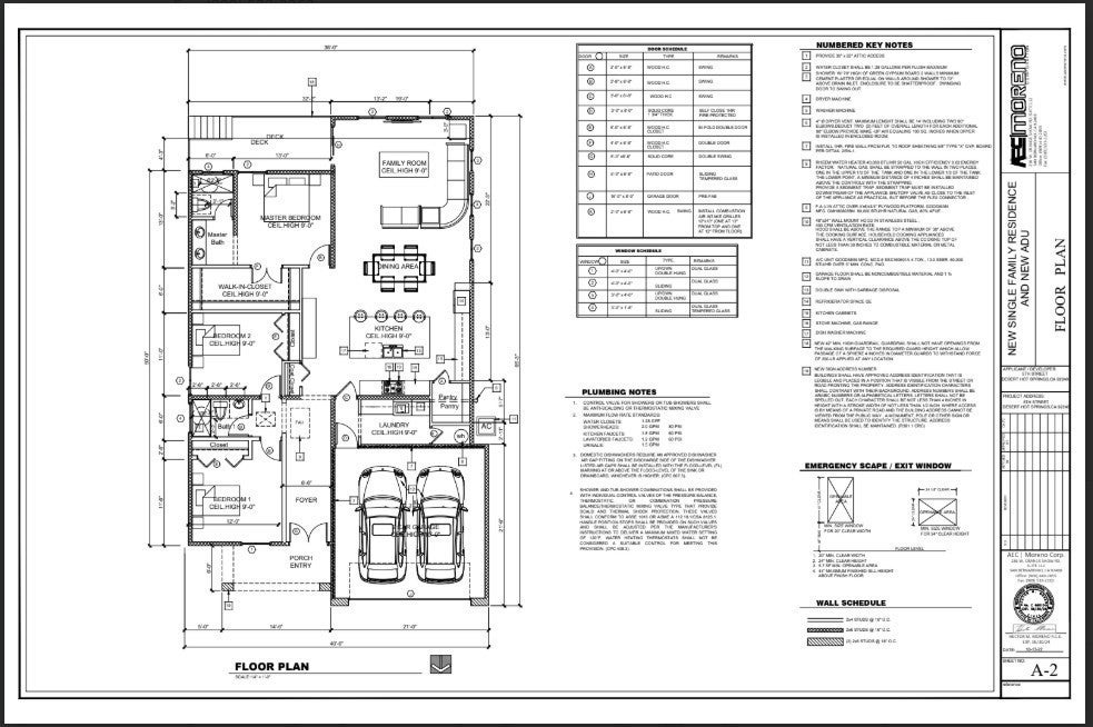
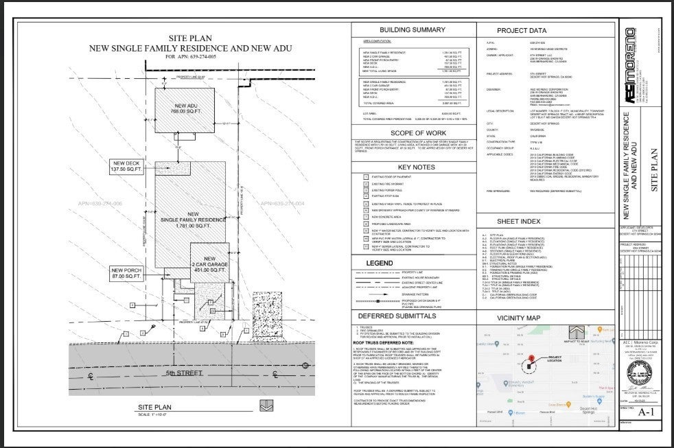
New construction opportunity in Desert Hot Springs! This planned home will offer approximately 1,781 sq. ft. of living space with a well-designed floor plan. Plans are complete and ready to be submitted to the city, providing a great opportunity for a buyer or investor to move the project forward. The main home will feature a spacious master bedroom with a walk-in closet and private master bathroom, plus two additional bedrooms and one full bathroom. The layout includes a family room, a kitchen with a pantry closet, and a dedicated laundry room. A two-car garage provides convenient parking and additional storage. Additional features include a new front porch entry, a new deck, and a detached 768 sq. ft. ADU in the backyard, offering excellent potential for rental income, guest quarters, or extended family living. Located on a vacant lot in the growing city of Desert Hot Springs, this is a great opportunity to build and own a brand-new property in the Coachella Valley.

Essential Information

  • MLS® #IV26057986
  • Price$53,500
  • Bathrooms0.00
  • Acres0.14
  • TypeLand
  • StatusActive

Community Information

  • Address5th Street
  • Area340 - Desert Hot Springs
  • SubdivisionUnknown
  • CityDesert Hot Springs
  • CountyRiverside
  • Zip Code92240

Amenities

  • UtilitiesWater Not Available
  • ViewNone

Exterior

  • Lot DescriptionLevel

Additional Information

  • Date ListedMarch 17th, 2026
  • Days on Market1
  • ZoningVS-M

Listing Details

  • AgentHector Moreno
  • OfficeH & R REALTY
Please provide a valid email address.

Hector Moreno, H & R REALTY.

Based on information from California Regional Multiple Listing Service, Inc. as of March 18th, 2026 at 3:26pm PDT. This information is for your personal, non-commercial use and may not be used for any purpose other than to identify prospective properties you may be interested in purchasing. Display of MLS data is usually deemed reliable but is NOT guaranteed accurate by the MLS. Buyers are responsible for verifying the accuracy of all information and should investigate the data themselves or retain appropriate professionals. Information from sources other than the Listing Agent may have been included in the MLS data. Unless otherwise specified in writing, Broker/Agent has not and will not verify any information obtained from other sources. The Broker/Agent providing the information contained herein may or may not have been the Listing and/or Selling Agent.