Connect

Find us on...

Dashboard

Login using...

Shawn Bengtson

Office Broker - DRE 01236964

  • Office 760-805-7199
Questions?

56819 Plaza Del Amigo, Yucca Valley – $185,000

  • $185k Price
  • 5 Acres
  • 56 DOM
  • $185k Price
  • 5 Acres
  • 56 DOM

56819 Plaza Del Amigo

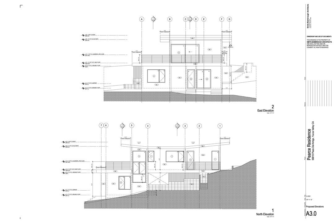
ROOSTER ROCK, THE HIGHEST BOULDER PEAK IN YUCCA VALLEY AND ONE OF THE FEW 5 ACRE BOULDER PROPERTIES REMAINING IN PINON RIDGE IS NOW AVAILABLE...This stunning boulder property is 5 sprawling acres with amazing views. Just off the paved road, you enter the exclusive Pinon Ridge neighborhood where you'll find this beautiful parcel just waiting to be developed. The rolling landscape allows for a unique building site. Imagine having the highest boulder peak in Yucca Valley as the dream backdrop to your home. The spectacular boulder pile rises up from the back of the lot providing a rare opportunity that very few desert residents are so fortunate to have and you can be one of them. Just minutes from the center of town for convenience, yet feels very secluded. The best of both worlds. Buyer to perform their own due diligence regarding cost and availability of all utilities, building permits, property boundaries, land use and zoning. Utilities appear to be available right across the street on Plaza Del Amigo. Previous owner had a proposed plan for a 2-story 2420 square foot single family dwelling with 2-car carport, as well as topography and architectural drawings (see photos). Proposed plan is available from seller. Be sure to watch the 360 degree 4K video above. **SELLER WILL CARRY WITH 50% DOWN at 7% interest (final terms to be negotiated in offer)** Don't hesitate on this one! Drive by today.

Essential Information

  • MLS® #JT22259688
  • Price$185,000
  • Bathrooms0.00
  • Acres5.00
  • TypeLand
  • StatusActive

Community Information

  • Address56819 Plaza Del Amigo
  • AreaDC545 - Pinion Ridge
  • CityYucca Valley
  • CountySan Bernardino
  • Zip Code92284

Amenities

Utilities

See Remarks, Electricity Available, Sewer Not Available, Water Available

View

Desert, Hills, Mountain(s), Neighborhood, Panoramic, Rocks

Exterior

Lot Description

Lot Over 40000 Sqft, Rectangular Lot, Rocks

Additional Information

  • Date ListedDecember 28th, 2022
  • Days on Market56
  • ZoningUNK

Listing Details

  • AgentYvonne Rohr
  • OfficeCapitis Real Estate
Please provide a valid email address.

Price Change History for 56819 Plaza Del Amigo, Yucca Valley, (MLS® #JT22259688)

Date Details Change
Price Increased from $119,000 to $185,000 $66,000 (55.46%)
Status Changed from Closed to Active
Status Changed from Pending to Closed
Status Changed from Active Under Contract to Pending
Status Changed from Active to Active Under Contract

Yvonne Rohr, Capitis Real Estate.

Based on information from California Regional Multiple Listing Service, Inc. as of February 27th, 2026 at 10:20am PST. This information is for your personal, non-commercial use and may not be used for any purpose other than to identify prospective properties you may be interested in purchasing. Display of MLS data is usually deemed reliable but is NOT guaranteed accurate by the MLS. Buyers are responsible for verifying the accuracy of all information and should investigate the data themselves or retain appropriate professionals. Information from sources other than the Listing Agent may have been included in the MLS data. Unless otherwise specified in writing, Broker/Agent has not and will not verify any information obtained from other sources. The Broker/Agent providing the information contained herein may or may not have been the Listing and/or Selling Agent.