Connect

Find us on...

Dashboard

Login using...

Shawn Bengtson

Office Broker - DRE 01236964

  • Office 760-805-7199
Questions?

14420 Lakeshore Drive, Clearlake – $675,000

  • $675k Price
  • .47 Acres
  • 638 DOM
  • $675k Price
  • .47 Acres
  • 638 DOM

14420 Lakeshore Drive

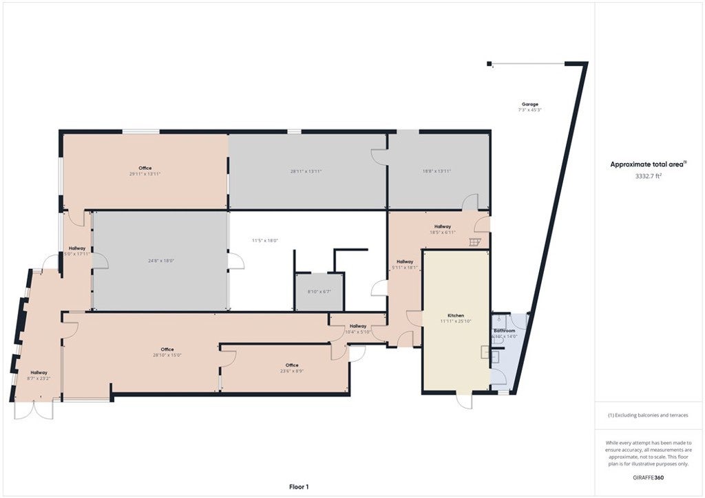
Owner financing on this one. This Clearlake Investment opportunity presents a remarkable opportunity in Lake County. This fully rented property immediately generates income with 3 retail/office spaces, storage unit and 2 residential units. The building has been very well maintained, creating a hassle-free ownership experience. It's an ideal live-work setup or Airbnb investment. Situated near shopping, dining, public transport, and the stunning Clear Lake, this property offers the perfect blend of convenience and leisure for its tenants. Not to mention, being surrounded by 35 wineries, Lake County is fast becoming a must-visit destination for wine enthusiasts. Embrace the rural charm and vibrant growth of this area by owning this fantastic property at 14420 Lakeshore Dr.

Essential Information

  • MLS® #LC24052332
  • Price$675,000
  • Bathrooms0.00
  • Acres0.47
  • TypeCommercial Sale
  • Sub-TypeMixed Use
  • StatusActive

Community Information

  • Address14420 Lakeshore Drive
  • AreaLCCLW - Clearlake West
  • CityClearlake
  • CountyLake
  • Zip Code95422

Amenities

  • Parking Spaces20

Utilities

Electricity Connected, Sewer Connected, Water Connected

Interior

  • HeatingCentral, Space Heater, Zoned
  • # of Stories2

Cooling

Central Air, Wall/Window Unit(s)

Exterior

  • ExteriorBrick, Drywall, Concrete
  • RoofComposition
  • ConstructionBrick, Drywall, Concrete

Lot Description

ZeroToOneUnitAcre, Level, Paved, Street Level, Flat

Additional Information

  • Date ListedMarch 18th, 2024
  • Days on Market638
  • ZoningC1

Listing Details

  • AgentJames Magliulo
  • OfficeCountry Air Properties
Please provide a valid email address.

Price Change History for 14420 Lakeshore Drive, Clearlake, (MLS® #LC24052332)

Date Details Change
Status Changed from Active to Closed
Price Reduced from $725,000 to $675,000 $50,000 (6.90%)
Price Reduced from $775,000 to $725,000 $50,000 (6.45%)
Price Reduced from $795,000 to $775,000 $20,000 (2.52%)

James Magliulo, Country Air Properties.

Based on information from California Regional Multiple Listing Service, Inc. as of December 18th, 2025 at 8:26pm PST. This information is for your personal, non-commercial use and may not be used for any purpose other than to identify prospective properties you may be interested in purchasing. Display of MLS data is usually deemed reliable but is NOT guaranteed accurate by the MLS. Buyers are responsible for verifying the accuracy of all information and should investigate the data themselves or retain appropriate professionals. Information from sources other than the Listing Agent may have been included in the MLS data. Unless otherwise specified in writing, Broker/Agent has not and will not verify any information obtained from other sources. The Broker/Agent providing the information contained herein may or may not have been the Listing and/or Selling Agent.