Connect

Find us on...

Dashboard

Login using...

Shawn Bengtson

Office Broker - DRE 01236964

  • Office 760-805-7199
Questions?

16345 Tee Road, Cobb – $369,000

  • 2 Beds
  • 3 Baths
  • 2,322 Sqft
  • ¼ Acres
  • 2 Beds
  • 3 Baths
  • 2,322 Sqft
  • ¼ Acres

16345 Tee Road

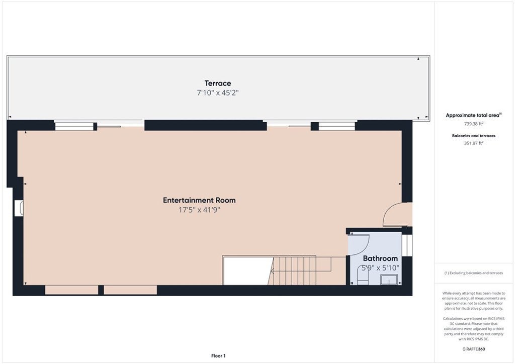
Expansive 2322 sq. ft, (.25 acre) 2 Bedroom, 3 Bathroom "Golf Course Home". NEW PRICE includes, rebuilt decking, interior and exterior paint, and new carpeting, all scheduled to be completed by the 2025 holiday season. This home offers a large open-concept design, Knotty Pine Beamed Ceilings both in the main living area and the bedrooms. A cozy fireplace, and a monitor heater in the main living space offer warmth and ambiance. The bedrooms and bathrooms all extremely spacious, offering both a walk-in shower, and bathtub option giving further value to the home. The rear top deck presents a delightful atmosphere in enjoying the tree lined golf course and mountain views by day, as well as the expansive starry night sky. A complete downstairs entertainment area with wet bar, a dedicated bathroom, a fireplace for chilly evenings, and a covered deck boasting tranquil views and cool summer shade. A private golf cart driveway offers access from your yard directly to the golf course. Located adjacent to Bellmont Pines Golf Course, moments walk to the grocery store, coffee shop and pizza parlor. Cobb Mountain is located approx. 2hr drive from San Francisco and approx. 20min drive to the world-renown Napa Valley county line. As a maturing wine region, Lake County offers over 30 wineries, mostly with tasting rooms. Cobb Mountain is known for its beautiful seasons, clean air and natural spring water. This home will shine with all of the upcoming scheduled upgrades. Call for a private tour today! New photos will be updated as upgrades on the home progress.

Essential Information

  • MLS® #LC25057364
  • Price$369,000
  • Bedrooms2
  • Bathrooms3.00
  • Full Baths2
  • Half Baths1
  • Square Footage2,322
  • Acres0.25
  • Year Built1972
  • TypeResidential
  • Sub-TypeSingle Family Residence
  • StatusActive Under Contract

Community Information

  • Address16345 Tee Road
  • AreaLCCOB - Cobb
  • CityCobb
  • CountyLake
  • Zip Code95426

Amenities

  • Parking Spaces5
  • ParkingCarport, Driveway
  • GaragesCarport, Driveway
  • ViewGolf Course, Mountain(s)
  • PoolNone

Utilities

Electricity Connected, Water Connected

Interior

  • AppliancesElectric Oven
  • HeatingFireplace(s), Kerosene, Wood
  • CoolingWall/Window Unit(s)
  • Has BasementYes
  • BasementFinished
  • FireplaceYes
  • FireplacesLiving Room
  • # of Stories2
  • StoriesTwo

Interior Features

All Bedrooms Up, Beamed Ceilings, Living Room Deck Attached, Wet Bar

Exterior

  • Lot DescriptionZeroToOneUnitAcre
  • RoofShingle

School Information

  • DistrictMiddletown Unified

Additional Information

  • Date ListedMarch 17th, 2025
  • Days on Market297
  • ZoningR1

Listing Details

  • AgentNatalie Phillips
  • OfficeCountry Air Properties
Please provide a valid email address.

Price Change History for 16345 Tee Road, Cobb, (MLS® #LC25057364)

Date Details Change
Status Changed from Active to Active Under Contract
Price Increased from $320,000 to $369,000 $49,000 (15.31%)
Price Reduced from $339,000 to $320,000 $19,000 (5.60%)
Price Reduced from $360,000 to $339,000 $21,000 (5.83%)

Natalie Phillips, Country Air Properties.

Based on information from California Regional Multiple Listing Service, Inc. as of January 15th, 2026 at 1:55am PST. This information is for your personal, non-commercial use and may not be used for any purpose other than to identify prospective properties you may be interested in purchasing. Display of MLS data is usually deemed reliable but is NOT guaranteed accurate by the MLS. Buyers are responsible for verifying the accuracy of all information and should investigate the data themselves or retain appropriate professionals. Information from sources other than the Listing Agent may have been included in the MLS data. Unless otherwise specified in writing, Broker/Agent has not and will not verify any information obtained from other sources. The Broker/Agent providing the information contained herein may or may not have been the Listing and/or Selling Agent.