Connect

Find us on...

Dashboard

Login using...

Shawn Bengtson

Office Broker - DRE 01236964

  • Office 760-805-7199
Questions?

971 Broadway Avenue, Atwater – $8,000

  • $8k Price
  • .71 Acres
  • 330 DOM
  • $8k Price
  • .71 Acres
  • 330 DOM

971 Broadway Avenue

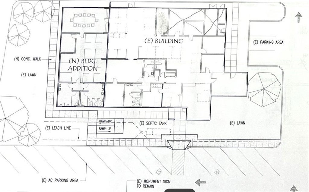
Very spacious professional office building FOR LEASE or FOR SALE in the Central Valley! This existing building is zoned CC (community commercial), consisting of 7,861sf of usable space and with 38 paved parking spaces to accommodate a large office operation of 35+/- working stations. The building also fronts to Hwy 99 North Bound, has an elevated sign monument for excellent exposure and high traffic visibility. Newer wrought iron fence with automatic gate access for privacy and security. You have an abundance of office cubicles, a large conference room, full kitchen, plenty of bathrooms, reception areas, an executive private office, other multiple private offices, a mail room and a vault room. Overall, the building is well maintained and has beautiful mature landscaping. As an added bonus, there are 2 charging stations for electric powered vehicles. Surrounded by residential subdivisions, Rancho Del Rey Golf Course, the Atwater Merced Expressway which is positioned for heavy future planned commercial development and short commute to UC Merced.

Essential Information

  • MLS® #MC25051467
  • Price$8,000
  • Bathrooms0.00
  • Acres0.71
  • TypeCommercial Lease
  • Sub-TypeOffice
  • StatusActive

Community Information

  • Address971 Broadway Avenue
  • CityAtwater
  • CountyMerced
  • Zip Code95301

Amenities

  • Parking Spaces38

Utilities

Cable Connected, Electricity Connected, Natural Gas Connected, Phone Connected, Water Connected

Interior

  • HeatingCentral, Natural Gas
  • CoolingCentral Air
  • # of Stories1

Exterior

  • Lot DescriptionRectangular Lot, Street Level

Additional Information

  • Date ListedMarch 7th, 2025
  • Days on Market330
  • ZoningCC

Listing Details

  • AgentErnesto Ochoa
  • OfficeKeller Williams Property Team
Please provide a valid email address.

Ernesto Ochoa, Keller Williams Property Team.

Based on information from California Regional Multiple Listing Service, Inc. as of February 24th, 2026 at 12:56pm PST. This information is for your personal, non-commercial use and may not be used for any purpose other than to identify prospective properties you may be interested in purchasing. Display of MLS data is usually deemed reliable but is NOT guaranteed accurate by the MLS. Buyers are responsible for verifying the accuracy of all information and should investigate the data themselves or retain appropriate professionals. Information from sources other than the Listing Agent may have been included in the MLS data. Unless otherwise specified in writing, Broker/Agent has not and will not verify any information obtained from other sources. The Broker/Agent providing the information contained herein may or may not have been the Listing and/or Selling Agent.