Connect

Find us on...

Dashboard

Login using...

Shawn Bengtson

Office Broker - DRE 01236964

  • Office 760-805-7199
Questions?

40586 Saddleback Road, Bass Lake – $625,500

  • 5 Beds
  • 4 Baths
  • 2,138 Sqft
  • .04 Acres
  • 5 Beds
  • 4 Baths
  • 2,138 Sqft
  • .04 Acres

40586 Saddleback Road

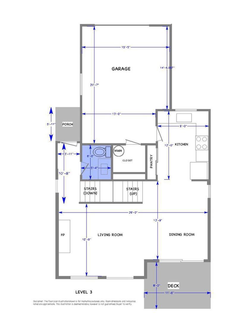
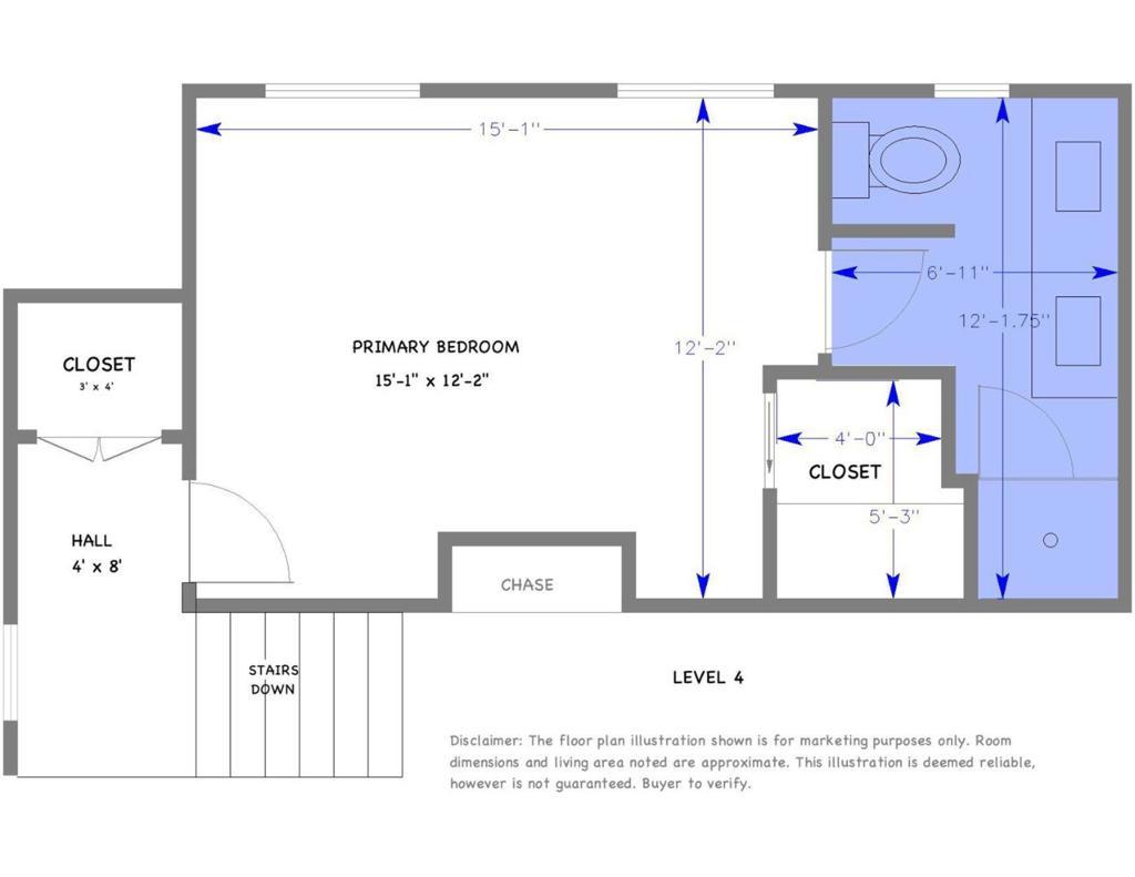
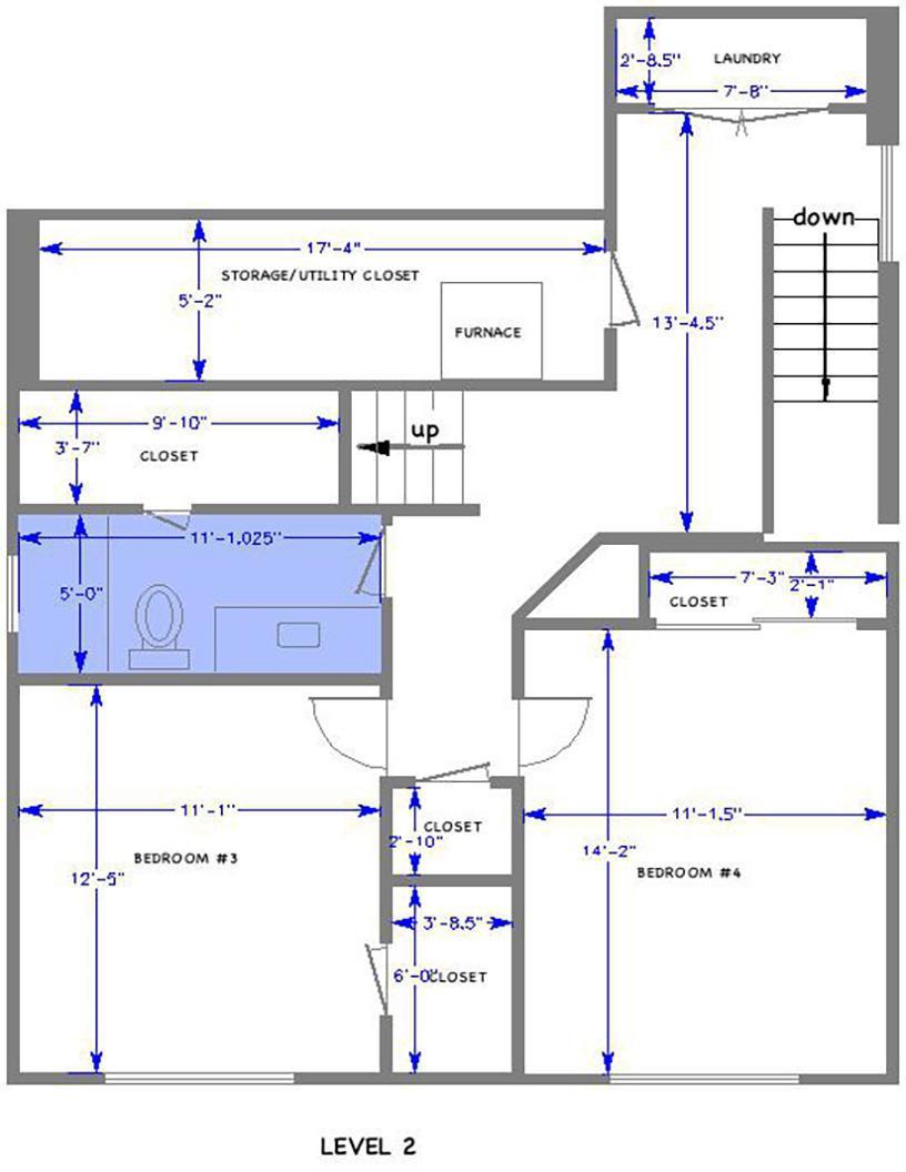
Beautiful, updated mountain retreat with white oak floors in the living and dining spaces on the main level. A wood burning fireplace in the living room and remodeled bathrooms with custom cabinetry, granite counters and high-end fixtures that create a relaxing and resort style atmosphere. Includes all appliances and furniture. This home offers low maintenance with comfort and convenience. HOA includes trash, snow plowing and offers a boat storage yard. HOA does not allow short-term rentals. The county sewer bond has been paid in full which reduces county property taxes. This Bass Lake Ridgeline home is located near Bass Lake and approximately 14 miles to the southern entrance to Yosemite National Park. If you have been thinking about a permanent change of scenery, a seasonal or weekend vacation home, look no further. Upon a flat level entry through the front door or garage, you will find a half bath, an open living room with hardwood floors and a fireplace to nestle up to on those cozy winter nights. Just off the living room is a large dining area that opens to a deck to enjoy those cool summer nights. This home has an inviting floor plan with the primary suite upstairs with an ensuite, and 2 bedrooms on each of the two lower levels with modern bathrooms and laundry.

Essential Information

  • MLS® #ML82000204
  • Price$625,500
  • Bedrooms5
  • Bathrooms4.00
  • Full Baths3
  • Half Baths1
  • Square Footage2,138
  • Acres0.04
  • Year Built1990
  • TypeResidential
  • Sub-TypeSingle Family Residence
  • StyleContemporary
  • StatusActive

Community Information

  • Address40586 Saddleback Road
  • CityBass Lake
  • CountyMadera
  • Zip Code93604

Amenities

  • AmenitiesManagement, Trash
  • Parking Spaces2
  • # of Garages1
  • ViewMountain(s)

Interior

  • InteriorCarpet, Tile, Wood
  • HeatingForced Air
  • CoolingCentral Air
  • FireplaceYes
  • FireplacesWood Burning
  • # of Stories4

Appliances

Dishwasher, Disposal, Microwave, Refrigerator, Vented Exhaust Fan, Gas Oven

Exterior

  • RoofTile

School Information

  • DistrictYosemite Unified
  • ElementaryOakhurst
  • MiddleOther
  • HighYosemite

Additional Information

  • Date ListedMarch 30th, 2025
  • Days on Market213
  • ZoningPD
  • HOA Fees127

Listing Details

  • AgentDennis Wayne Pevarnick
  • OfficeDennis Pevarnick, Broker
Please provide a valid email address.

Dennis Wayne Pevarnick, Dennis Pevarnick, Broker.

Based on information from California Regional Multiple Listing Service, Inc. as of October 29th, 2025 at 10:21am PDT. This information is for your personal, non-commercial use and may not be used for any purpose other than to identify prospective properties you may be interested in purchasing. Display of MLS data is usually deemed reliable but is NOT guaranteed accurate by the MLS. Buyers are responsible for verifying the accuracy of all information and should investigate the data themselves or retain appropriate professionals. Information from sources other than the Listing Agent may have been included in the MLS data. Unless otherwise specified in writing, Broker/Agent has not and will not verify any information obtained from other sources. The Broker/Agent providing the information contained herein may or may not have been the Listing and/or Selling Agent.