Connect

Find us on...

Dashboard

Login using...

Shawn Bengtson

Office Broker - DRE 01236964

  • Office 760-805-7199
Questions?

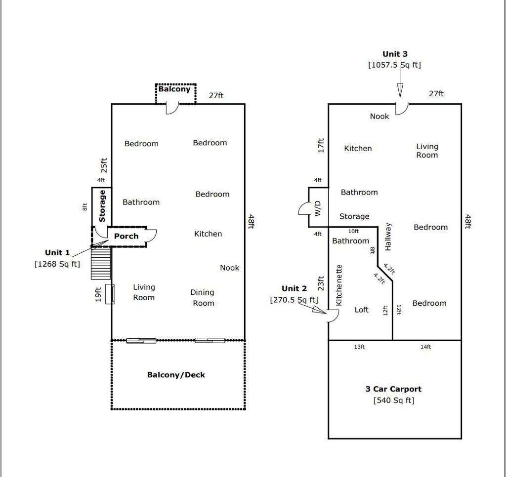
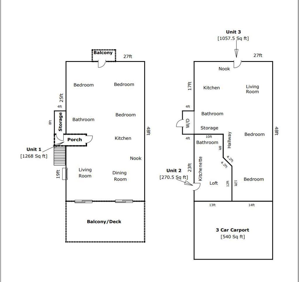
824 El Camino Real, Burlingame – $1,899,999

  • $1.9M Price
  • 2,592 Sqft
  • .13 Acres
  • 413 DOM
  • $1.9M Price
  • 2,592 Sqft
  • .13 Acres
  • 413 DOM

824 El Camino Real

Exceptional Multi-Unit Investment in Prime Burlingame Location Welcome to 824 El Camino Real a rare opportunity to own a fully leased triplex in the heart of Burlingame. This well-maintained property offers three income-producing units, each with strong rental demand, separate utilities, and on-site parking. Located just blocks from transit, shops, dining, and major commuter routes, this asset combines consistent cash flow with long-term appreciation potential. Whether youre looking to expand your portfolio, complete a 1031 exchange, or explore owner-occupancy with income offset, this property checks all the boxes. The layout, condition, and location make it ideal for both seasoned investors and first-time multi-unit buyers. Dont miss this rare chance to secure a high-performing asset in one of the Peninsulas most sought-after markets.

Essential Information

  • MLS® #ML82005442
  • Price$1,899,999
  • Bathrooms0.00
  • Square Footage2,592
  • Acres0.13
  • Year Built1937
  • TypeResidential Income
  • Sub-TypeTriplex
  • StatusActive

Community Information

  • Address824 El Camino Real
  • Area699 - Not Defined
  • CityBurlingame
  • CountySan Mateo
  • Zip Code94010

Amenities

  • Parking Spaces3
  • ParkingCovered
  • GaragesCovered

Interior

  • CoolingCentral Air
  • # of Stories2

Exterior

  • RoofShingle
  • FoundationBrick/Mortar

School Information

  • DistrictOther

Additional Information

  • Date ListedMay 4th, 2025
  • Days on Market413
  • ZoningR30000

Listing Details

  • AgentSydney Manuel

Office

Maxim Solution Realty Corporation

Please provide a valid email address.

Price Change History for 824 El Camino Real, Burlingame, (MLS® #ML82005442)

Date Details Change
Price Reduced from $1,939,999 to $1,899,999 $40,000 (2.06%)
Price Reduced from $1,999,999 to $1,939,999 $60,000 (3.00%)
Price Reduced from $2,175,000 to $1,999,999 $175,001 (8.05%)
Price Reduced from $2,325,000 to $2,175,000 $150,000 (6.45%)

Sydney Manuel, Maxim Solution Realty Corporation.

Based on information from California Regional Multiple Listing Service, Inc. as of April 6th, 2026 at 7:56pm PDT. This information is for your personal, non-commercial use and may not be used for any purpose other than to identify prospective properties you may be interested in purchasing. Display of MLS data is usually deemed reliable but is NOT guaranteed accurate by the MLS. Buyers are responsible for verifying the accuracy of all information and should investigate the data themselves or retain appropriate professionals. Information from sources other than the Listing Agent may have been included in the MLS data. Unless otherwise specified in writing, Broker/Agent has not and will not verify any information obtained from other sources. The Broker/Agent providing the information contained herein may or may not have been the Listing and/or Selling Agent.