Connect

Find us on...

Dashboard

Login using...

Shawn Bengtson

Office Broker - DRE 01236964

  • Office 760-805-7199
Questions?

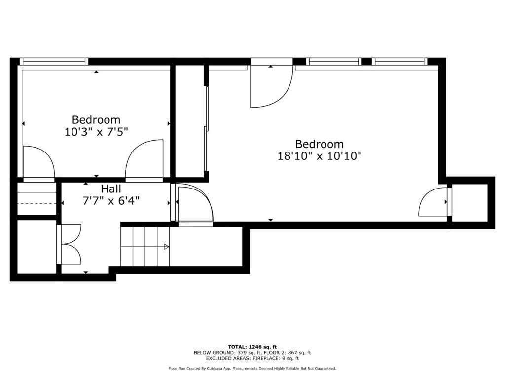
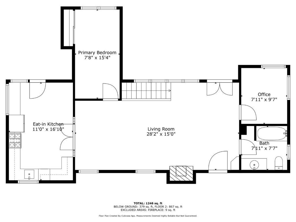
495 Primavera Road, Boulder Creek – $785,000

  • 5 Beds
  • 2 Baths
  • 1,338 Sqft
  • .23 Acres
  • 5 Beds
  • 2 Baths
  • 1,338 Sqft
  • .23 Acres

495 Primavera Road

New Price! Fully inspected with reports available including passing the point of sale septic inspection. This affordable 4-bedroom, 1-bath single family home with separate studio ADU in the redwoods is in a peaceful and quiet neighborhood. Think mountain chalet cool meets everyday comfort. Amenities include stainless steel appliances, new carpets, sleek kitchen tile, new windows, and a whole-house generator. Redwood vaulted ceilings and tons of natural light make it feel like the outdoors are right there with you. Outside, it's a sun-soaked, waterfront paradise with 2 decks and a patio along the river offering a beautiful view, perfect for summer BBQs, entertaining or relaxing after a busy day. A fenced in yard has a garden and a play space for dogs. The hot tub is your front-row seat to the kind of stargazing you only get with zero light pollution. A detached ADU is ready and waiting for multigenerational living, working from home, or renting. In the winter the fireplace/wood stove keeps the whole house nice and snug. This home is midway between surf and Silicon Valley and just a block off highway 9 makes it easy to get you to work, school or entertainment as well as offering a scenic drive. 495 Primavera Rd isn't just a house, it's a lifestyle. Ready to make it yours?

Essential Information

  • MLS® #ML82006616
  • Price$785,000
  • Bedrooms5
  • Bathrooms2.00
  • Full Baths2
  • Square Footage1,338
  • Acres0.23
  • Year Built1937
  • TypeResidential
  • Sub-TypeSingle Family Residence
  • StatusActive

Community Information

  • Address495 Primavera Road
  • Area699 - Not Defined
  • CityBoulder Creek
  • CountySanta Cruz
  • Zip Code95006

Amenities

  • ParkingOff Street
  • GaragesOff Street

Interior

  • InteriorCarpet
  • HeatingForced Air
  • FireplaceYes

Appliances

Dishwasher, Disposal, Refrigerator, Dryer, Washer

Fireplaces

Insert, Pellet Stove, Wood Burning Stove

Exterior

  • RoofComposition
  • FoundationConcrete Perimeter

School Information

  • DistrictOther
  • ElementaryOther
  • MiddleOther
  • HighOther

Additional Information

  • Date ListedMay 15th, 2025
  • Days on Market173
  • ZoningR-1-15

Listing Details

  • AgentJoshua Forst
  • OfficeRoom Real Estate
Please provide a valid email address.

Price Change History for 495 Primavera Road, Boulder Creek, (MLS® #ML82006616)

Date Details Change
Price Reduced from $799,000 to $785,000 $14,000 (1.75%)
Price Reduced from $825,000 to $799,000 $26,000 (3.15%)

Joshua Forst, Room Real Estate.

Based on information from California Regional Multiple Listing Service, Inc. as of November 5th, 2025 at 4:31pm PST. This information is for your personal, non-commercial use and may not be used for any purpose other than to identify prospective properties you may be interested in purchasing. Display of MLS data is usually deemed reliable but is NOT guaranteed accurate by the MLS. Buyers are responsible for verifying the accuracy of all information and should investigate the data themselves or retain appropriate professionals. Information from sources other than the Listing Agent may have been included in the MLS data. Unless otherwise specified in writing, Broker/Agent has not and will not verify any information obtained from other sources. The Broker/Agent providing the information contained herein may or may not have been the Listing and/or Selling Agent.