Connect

Find us on...

Dashboard

Login using...

Shawn Bengtson

Office Broker - DRE 01236964

  • Office 760-805-7199
Questions?

17595 Pond Derosa, Prunedale – $265,000

  • 2 Beds
  • 2 Baths
  • 1,440 Sqft
  • 40 DOM
  • 2 Beds
  • 2 Baths
  • 1,440 Sqft
  • 40 DOM

17595 Pond Derosa

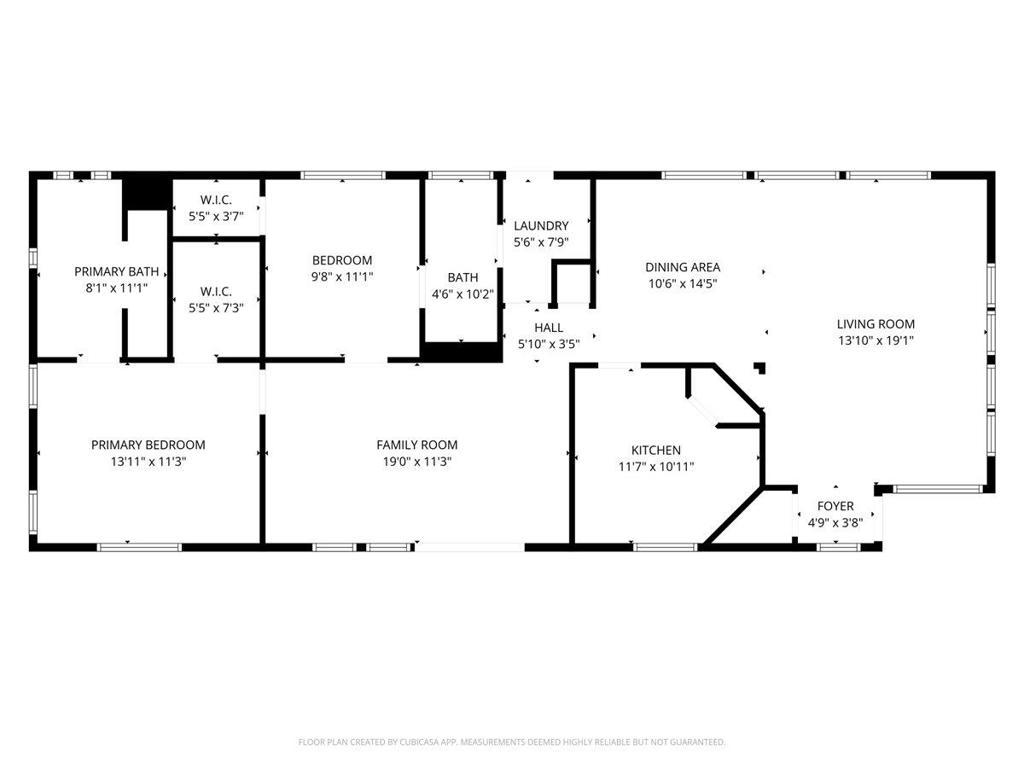
Welcome to Pond Derosa, a peaceful and beautifully maintained park-like community. This charming 2-bedroom, 2-bath home offers a bright and inviting layout with great natural light, classic wood accents, and plenty of room to relax and make your own. The primary bedroom features a spacious walk-in closet and in the bathroom, an oversized step-in soaking tub and is filled with natural light. The second bathroom includes a convenient walk-in jetted tub. Enjoy a separate living room and family room, giving everyone their own space to relax, work, or watch their favorite show, ideal for shared living or entertaining. The large front deck overlooks beautiful oak trees and open space, perfect for morning coffee or unwinding at the end of the day. With plenty of parking for BBQs, gatherings, and guests, this home blends comfort, convenience, and community. Pond Derosa is known for its tranquil setting, mature trees, and well-kept grounds, a rare find in mobile home living. A wonderful opportunity to own in one of the most beautiful parks in the area.

Essential Information

  • MLS® #ML82028569
  • Price$265,000
  • Bedrooms2
  • Bathrooms2.00
  • Full Baths2
  • Square Footage1,440
  • Acres0.00
  • Year Built1977
  • TypeManufactured In Park
  • StatusActive Under Contract

Community Information

  • Address17595 Pond Derosa
  • Area699 - Not Defined
  • CityPrunedale
  • CountyMonterey
  • Zip Code93907

Amenities

  • Parking Spaces2
  • ParkingCarport, Guest
  • GaragesCarport, Guest
  • ViewPark/Greenbelt

Interior

  • InteriorCarpet
  • Interior FeaturesWalk-In Closet(s)
  • HeatingCentral

Exterior

  • RoofElastomeric

School Information

  • DistrictNorth Monterey County Unified

Additional Information

  • Date ListedDecember 2nd, 2025
  • Days on Market40

Listing Details

  • AgentNicole Rodriguez

Office

eXp Realty of Northern California, Inc.

Please provide a valid email address.

Price Change History for 17595 Pond Derosa, Prunedale, (MLS® #ML82028569)

Date Details Change
Status Changed from Active to Active Under Contract

Nicole Rodriguez, eXp Realty of Northern California, Inc..

Based on information from California Regional Multiple Listing Service, Inc. as of January 11th, 2026 at 5:56pm PST. This information is for your personal, non-commercial use and may not be used for any purpose other than to identify prospective properties you may be interested in purchasing. Display of MLS data is usually deemed reliable but is NOT guaranteed accurate by the MLS. Buyers are responsible for verifying the accuracy of all information and should investigate the data themselves or retain appropriate professionals. Information from sources other than the Listing Agent may have been included in the MLS data. Unless otherwise specified in writing, Broker/Agent has not and will not verify any information obtained from other sources. The Broker/Agent providing the information contained herein may or may not have been the Listing and/or Selling Agent.