Connect

Find us on...

Dashboard

Login using...

Shawn Bengtson

Office Broker - DRE 01236964

  • Office 760-805-7199
Questions?

Kaspian Court, Aptos – $599,000

  • $599k Price
  • .26 Acres
  • 52 DOM
  • $599k Price
  • .26 Acres
  • 52 DOM

Kaspian Court

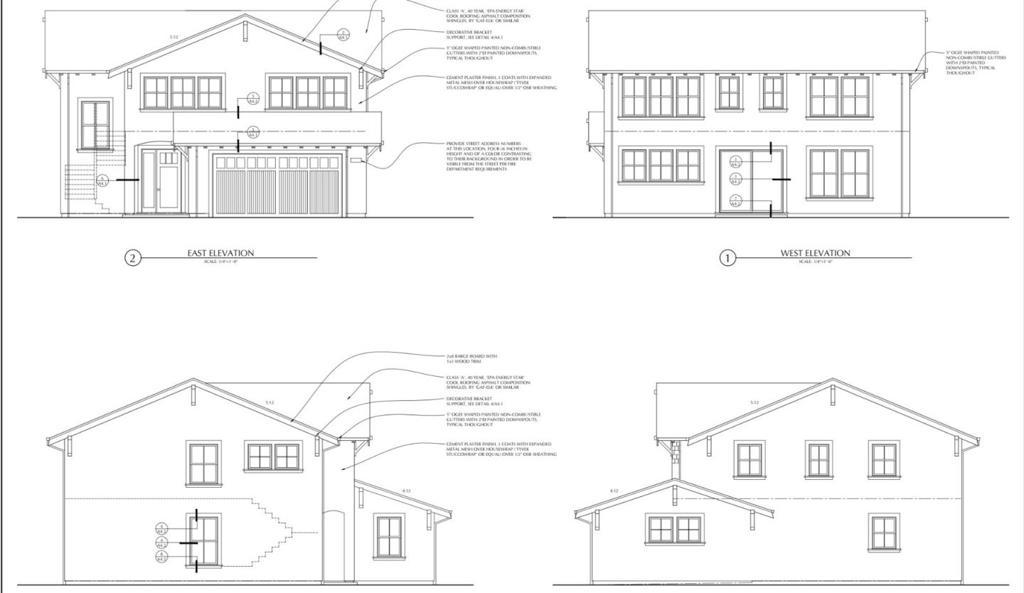
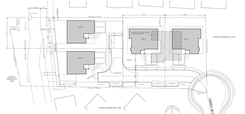
Attention Investors & Developers! This is an Incredible Opportunity! This is Lot 3 of Recently Split 4 Parcels. Preliminary Plans Are Available and Can Be Approved Quickly if Desired. Seller has Completed Laterals Including Gas. Seller Can Have Rough Driveways and Finished Pavement Completed. Buyer can Purchase Individually or Together! All Lots for Sale Now! Check Kaspian Court Listings! Highly Rated Soquel High School! Short Distance to Capitola Village, Cabrillo College, and New Brighton State Beach!

Essential Information

  • MLS® #ML82029779
  • Price$599,000
  • Bathrooms0.00
  • Acres0.26
  • TypeLand
  • StatusActive

Community Information

  • AddressKaspian Court
  • Area699 - Not Defined
  • CityAptos
  • CountySanta Cruz
  • Zip Code95003

Amenities

  • UtilitiesElectricity Available

Exterior

  • Lot DescriptionCorners Marked, Level

School Information

  • DistrictOther
  • HighSoquel

Additional Information

  • Date ListedDecember 20th, 2025
  • Days on Market52
  • ZoningR1

Listing Details

  • AgentJake Gipson
  • OfficeKW Bay Area Estates
Please provide a valid email address.

Price Change History for Kaspian Court, Aptos, (MLS® #ML82029779)

Date Details Change
Price Reduced from $650,000 to $599,000 $51,000 (7.85%)

Jake Gipson, KW Bay Area Estates.

Based on information from California Regional Multiple Listing Service, Inc. as of February 10th, 2026 at 3:56pm PST. This information is for your personal, non-commercial use and may not be used for any purpose other than to identify prospective properties you may be interested in purchasing. Display of MLS data is usually deemed reliable but is NOT guaranteed accurate by the MLS. Buyers are responsible for verifying the accuracy of all information and should investigate the data themselves or retain appropriate professionals. Information from sources other than the Listing Agent may have been included in the MLS data. Unless otherwise specified in writing, Broker/Agent has not and will not verify any information obtained from other sources. The Broker/Agent providing the information contained herein may or may not have been the Listing and/or Selling Agent.