Connect

Find us on...

Dashboard

Login using...

Shawn Bengtson

Office Broker - DRE 01236964

  • Office 760-805-7199
Questions?

2606 Paul Minnie Avenue, Santa Cruz – $1,200,000

  • $1.2M Price
  • .63 Acres
  • 69 DOM
  • $1.2M Price
  • .63 Acres
  • 69 DOM

2606 Paul Minnie Avenue

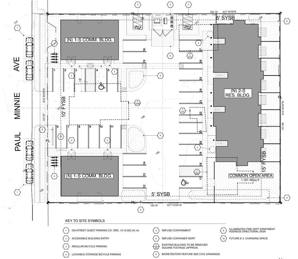
The proposed development site offers a highly promising opportunity for a mixed-use project that integrates modern residential apartments with vibrant commercial spaces. The tentative plan include 15 units apartment and 2 commercial buildings.

Essential Information

  • MLS® #ML82030761
  • Price$1,200,000
  • Bathrooms0.00
  • Acres0.63
  • TypeCommercial Sale
  • StatusActive

Community Information

  • Address2606 Paul Minnie Avenue
  • Area699 - Not Defined
  • CitySanta Cruz
  • CountySanta Cruz
  • Zip Code95062

Amenities

  • UtilitiesElectricity Available

School Information

  • DistrictOther

Additional Information

  • Date ListedJanuary 9th, 2026
  • Days on Market69
  • ZoningPA

Listing Details

  • AgentKenrick Do
  • OfficeK&K Homes Realty
Please provide a valid email address.

Kenrick Do, K&K Homes Realty.

Based on information from California Regional Multiple Listing Service, Inc. as of March 19th, 2026 at 12:15am PDT. This information is for your personal, non-commercial use and may not be used for any purpose other than to identify prospective properties you may be interested in purchasing. Display of MLS data is usually deemed reliable but is NOT guaranteed accurate by the MLS. Buyers are responsible for verifying the accuracy of all information and should investigate the data themselves or retain appropriate professionals. Information from sources other than the Listing Agent may have been included in the MLS data. Unless otherwise specified in writing, Broker/Agent has not and will not verify any information obtained from other sources. The Broker/Agent providing the information contained herein may or may not have been the Listing and/or Selling Agent.