Connect

Find us on...

Dashboard

Login using...

Shawn Bengtson

Office Broker - DRE 01236964

  • Office 760-805-7199
Questions?

260 Velarde Street, Mountain View – $3,995,000

  • 4 Beds
  • 4 Baths
  • 2,761 Sqft
  • .13 Acres
  • 4 Beds
  • 4 Baths
  • 2,761 Sqft
  • .13 Acres

260 Velarde Street

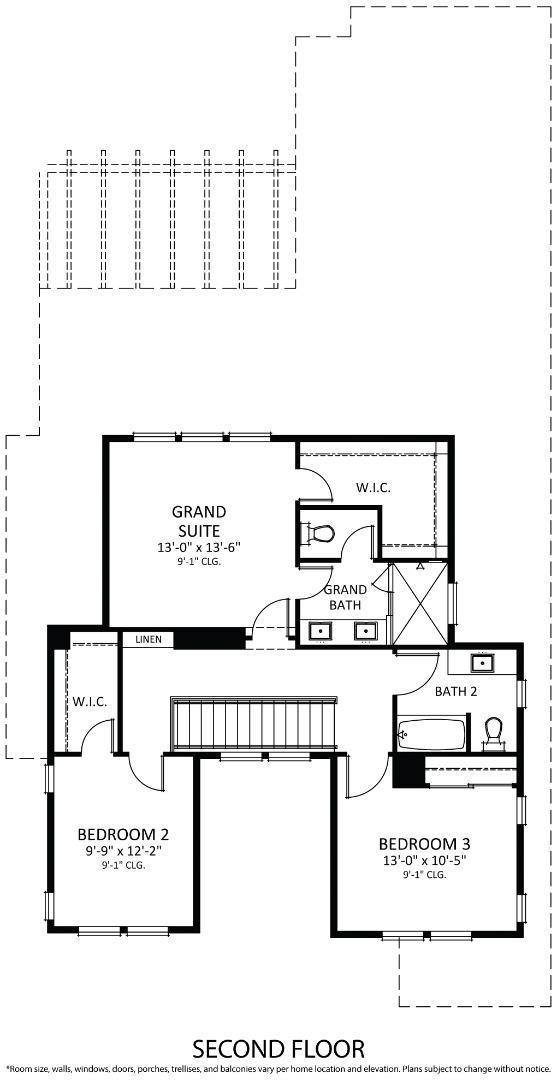
Charming Thomas James Homes craftsman-style residence ideally located in the heart of Old Mountain View. Thoughtfully designed with timeless architecture and modern livability, this home offers refined finishes and a bright, open layout. The main level features a welcoming great room with cozy fireplace and expansive stacking glass doors that open to the patio for seamless indooroutdoor living. The gourmet kitchen features an oversized island, premium Thermador appliances, abundant cabinetry, and designer finishes, flowing effortlessly into the dining area. Also on the main level are a laundry room with sink and built-in storage, plus a private ADU with en suite bath, ideal for guests, a home office, or multigen living. Upstairs includes two secondary bedrooms and a grand primary suite with walk-in closet and spa-like bath featuring dual vanities and luxe finishes. Enjoy an unbeatable location with walkability to downtown Castro Street, CalTrain, the Sunday Farmers Market, and nearby Pioneer Memorial and Eagle Parks, with Cuesta Park just minutes away. Buy early from Thomas James Homes to enjoy preferred pricing and design personalization. Estimated home completion is Winter 2026. *All imagery is illustrative and subject to change and does not depict the subject property.

Essential Information

  • MLS® #ML82032187
  • Price$3,995,000
  • Bedrooms4
  • Bathrooms4.00
  • Full Baths3
  • Half Baths1
  • Square Footage2,761
  • Acres0.13
  • Year Built2026
  • TypeResidential
  • Sub-TypeSingle Family Residence
  • StyleCraftsman
  • StatusActive

Community Information

  • Address260 Velarde Street
  • Area699 - Not Defined
  • CityMountain View
  • CountySanta Clara
  • Zip Code94041

Amenities

  • Parking Spaces1
  • # of Garages1
  • ViewNeighborhood

Interior

  • InteriorTile, Wood
  • Interior FeaturesWalk-In Closet(s)
  • HeatingCentral, Electric
  • CoolingCentral Air
  • FireplaceYes
  • FireplacesLiving Room
  • # of Stories2

Appliances

Dishwasher, Freezer, Disposal, Microwave, Refrigerator, Range Hood, Vented Exhaust Fan

Exterior

  • RoofComposition
  • FoundationSlab

School Information

  • DistrictOther
  • ElementaryEdith Landels
  • MiddleOther
  • HighMountain View

Additional Information

  • Date ListedJanuary 22nd, 2026
  • Days on Market11
  • ZoningR1

Listing Details

  • AgentFrances Ibay

Office

Thomas James Real Estate Services, Inc

Please provide a valid email address.

Frances Ibay, Thomas James Real Estate Services, Inc.

Based on information from California Regional Multiple Listing Service, Inc. as of February 2nd, 2026 at 7:50pm PST. This information is for your personal, non-commercial use and may not be used for any purpose other than to identify prospective properties you may be interested in purchasing. Display of MLS data is usually deemed reliable but is NOT guaranteed accurate by the MLS. Buyers are responsible for verifying the accuracy of all information and should investigate the data themselves or retain appropriate professionals. Information from sources other than the Listing Agent may have been included in the MLS data. Unless otherwise specified in writing, Broker/Agent has not and will not verify any information obtained from other sources. The Broker/Agent providing the information contained herein may or may not have been the Listing and/or Selling Agent.