Connect

Find us on...

Dashboard

Login using...

Shawn Bengtson

Office Broker - DRE 01236964

  • Office 760-805-7199
Questions?

1344 Rosalia Avenue, Sunnyvale – $2,699,998

  • $2.7M Price
  • .22 Acres
  • 40 DOM
  • $2.7M Price
  • .22 Acres
  • 40 DOM

1344 Rosalia Avenue

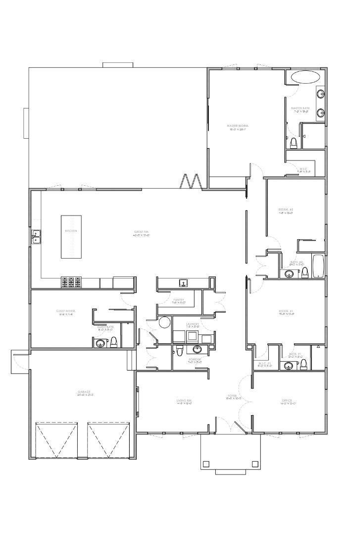
A rare, shovel-ready development opportunity in Sunnyvale's coveted north Raynor Park neighborhood, moments from Apple Park and major Silicon Valley employers. This approximately 9,375 square foot parcel offers a significant head start, with all permits in hand including demolition approval, allowing construction to begin immediately. Extensive preparation includes architectural plans for a sophisticated single-level luxury residence, surveys, utility coordination, asbestos abatement planning, and contractor alignment. The approved design allows for a four bedroom, four and one half bath residence with all bedrooms featuring private en-suite baths, plus a separate dedicated office. Buyers may build immediately or refine the project to suit their personal preferences. Located on a quiet residential street near parks, top schools, downtown Sunnyvale, dining, and commuter routes. Opportunities with this level of readiness are exceptionally rare.

Essential Information

  • MLS® #ML82033649
  • Price$2,699,998
  • Bathrooms0.00
  • Acres0.22
  • TypeLand
  • StatusActive

Community Information

  • Address1344 Rosalia Avenue
  • Area699 - Not Defined
  • CitySunnyvale
  • CountySanta Clara
  • Zip Code94087

School Information

  • DistrictOther

Additional Information

  • Date ListedFebruary 3rd, 2026
  • Days on Market40
  • ZoningR1AB

Listing Details

  • AgentChandani Group
  • OfficeCompass
Please provide a valid email address.

Chandani Group, Compass.

Based on information from California Regional Multiple Listing Service, Inc. as of March 15th, 2026 at 2:36am PDT. This information is for your personal, non-commercial use and may not be used for any purpose other than to identify prospective properties you may be interested in purchasing. Display of MLS data is usually deemed reliable but is NOT guaranteed accurate by the MLS. Buyers are responsible for verifying the accuracy of all information and should investigate the data themselves or retain appropriate professionals. Information from sources other than the Listing Agent may have been included in the MLS data. Unless otherwise specified in writing, Broker/Agent has not and will not verify any information obtained from other sources. The Broker/Agent providing the information contained herein may or may not have been the Listing and/or Selling Agent.