Connect

Find us on...

Dashboard

Login using...

Shawn Bengtson

Office Broker - DRE 01236964

  • Office 760-805-7199
Questions?

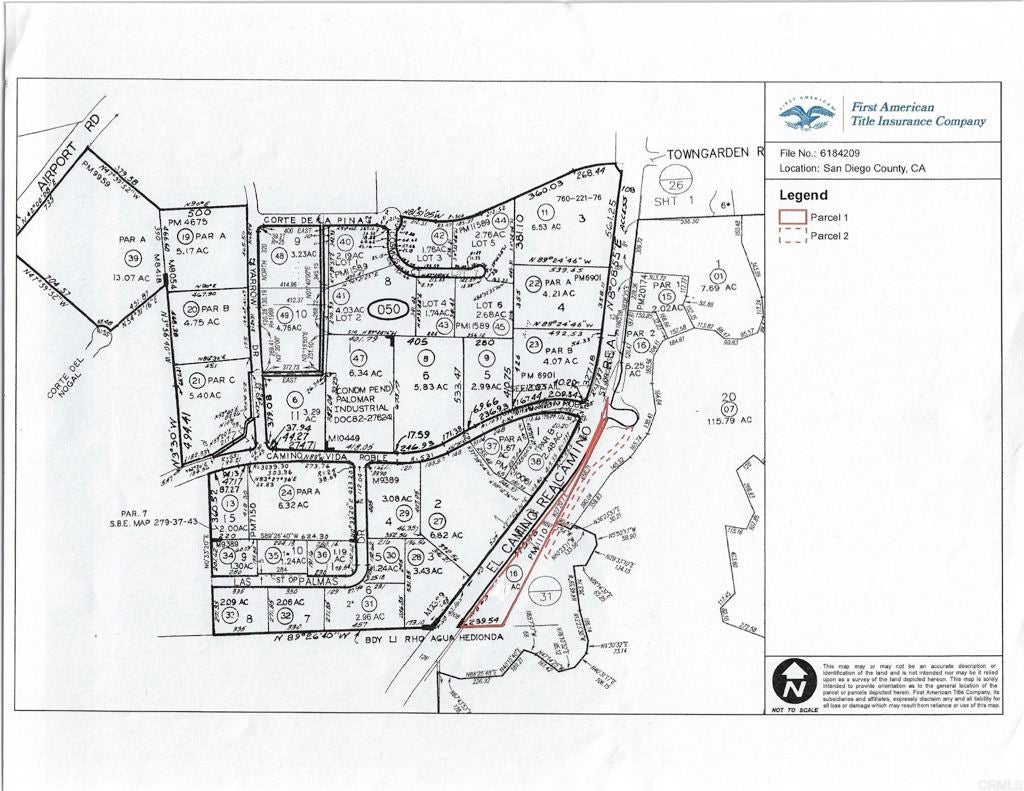
25 El Camino Real, Carlsbad – $1,300,000

  • $1.3M Price
  • 2.19 Acres
  • 371 DOM
  • $1.3M Price
  • 2.19 Acres
  • 371 DOM

25 El Camino Real

THIS PROPERTY IS TRANGULAR SHAPED WITH AN ESTIMATED ACERAGE OF 2.19 TO 2.48. AFTER REDUCTION OF THE EL CAMINO REAL ROAD WIDENING EASEMENT (BUYER TO VERIFY) ACCESS IS A 30 FOOT APRON OFF THE EASEMENT ROADWAY JASPER WAY. CURRENTLY THERE IS A SEWER HOOK UP MORATORIUM IN THE CITY OF CARLSBAD AFFECTING THIS PROPERTY THE CITY OF CARLSBAD PURCHASED AN EASEMENT ALONG EL CAMINO REAL ON THE WEST SIDE OF THIS PROPERTY FOR THE WIDENING AND IMPROVEMENT OF EL CAMINO REAL. THE CITY OF CARLSBAD HAS NOT SET A DATE NYET FOR THE CONSTRUCTION. THIS PROPERTY HAS A LONG ANBD NARROWING SHAPE. THE SOUTHERN END OF THE PROPERTY ,WHICH HAS A DEPRESSION IS THE MOST LIKELY LOCATION OF ANY IMPROVEMENTS. A SEWER EASEMENT OF 30 FEET CROSSES THE LOWER THIRD OF THE PROPERTY AND IS A HIGH PRESSURE LINE. THERE IS A 30 FOOT APRON ACCESS OFF JASPER WAY. BUYER TO SATISFY SELF AS TO ANY AND ALL CONDITIONS AND AVAILABILITY FOR DEVELOPMENT PRIOR TO THE CLOSE OF ESCROW. THERE IS A SDGE HIGH PRESSURE GAS LIKNE RUNNING ALONG THE NEW EASEMENT AS DESIGNATED BY YELLOW STAKES ABOUT 5 FEET TALL BUYER TO DETERMINE IF THERE IS ANY VEGETATION MITIGATION ON THE PROPERTY AND SATISY SELF.

Essential Information

  • MLS® #NDP2501745
  • Price$1,300,000
  • Bathrooms0.00
  • Acres2.19
  • TypeLand
  • StatusActive Under Contract

Community Information

  • Address25 El Camino Real
  • Area92009 - Carlsbad
  • CityCarlsbad
  • CountySan Diego
  • Zip Code92009

Amenities

  • ViewNone

Utilities

See Remarks, Electricity Available, Natural Gas Available, Underground Utilities

Exterior

  • Lot DescriptionIrregular Lot

Additional Information

  • Date ListedFebruary 24th, 2025
  • Days on Market371
  • ZoningRESIDENTIAL

Listing Details

  • AgentKenneth Snyker
  • OfficeLincoln Realty Assoc.
Please provide a valid email address.

Price Change History for 25 El Camino Real, Carlsbad, (MLS® #NDP2501745)

Date Details Change
Status Changed from Active to Active Under Contract
Status Changed from Active Under Contract to Active
Status Changed from Active to Active Under Contract

Kenneth Snyker, Lincoln Realty Assoc..

Based on information from California Regional Multiple Listing Service, Inc. as of March 2nd, 2026 at 12:20am PST. This information is for your personal, non-commercial use and may not be used for any purpose other than to identify prospective properties you may be interested in purchasing. Display of MLS data is usually deemed reliable but is NOT guaranteed accurate by the MLS. Buyers are responsible for verifying the accuracy of all information and should investigate the data themselves or retain appropriate professionals. Information from sources other than the Listing Agent may have been included in the MLS data. Unless otherwise specified in writing, Broker/Agent has not and will not verify any information obtained from other sources. The Broker/Agent providing the information contained herein may or may not have been the Listing and/or Selling Agent.