Connect

Find us on...

Dashboard

Login using...

Shawn Bengtson

Office Broker - DRE 01236964

  • Office 760-805-7199
Questions?

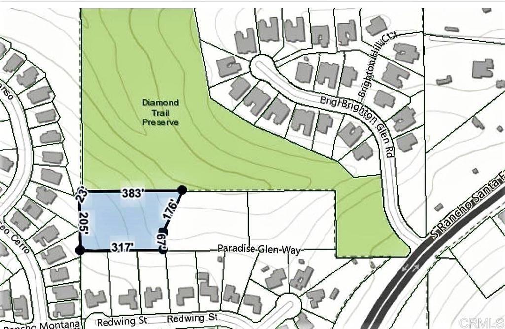
Paradise Glen Way, San Marcos – $1,299,000

  • $1.3M Price
  • 5.63 Acres
  • 287 DOM
  • $1.3M Price
  • 5.63 Acres
  • 287 DOM

Paradise Glen Way

Three contiguous parcels totaling 5.63 acres in unincorporated San Diego County—ideal for a private compound or multi-home retreat. Verified sewer easement enters from the south, supporting direct tie-in across all parcels. Private road easement originates at Brighton Glen, San Marcos, traverses Diamond Trails Preserve, and terminates at Parcel 24’s southeast corner—providing legal and physical access to each parcel. Parcel 24 features a verified 43,000 sq ft buildable pad. Combined buildable area across all parcels exceeds 83,000 sq ft. No HOA. No entitlement delays. Technical overlays, plotted easements, and feasibility report available upon request. ---

Essential Information

  • MLS® #NDP2503423
  • Price$1,299,000
  • Bathrooms0.00
  • Acres5.63
  • TypeLand
  • StatusActive

Community Information

  • AddressParadise Glen Way
  • Area92078 - San Marcos
  • CitySan Marcos
  • CountySan Diego
  • Zip Code92078

Amenities

  • ViewHills

Exterior

  • Lot DescriptionTwoToFiveUnitsAcre

Additional Information

  • Date ListedApril 6th, 2025
  • Days on Market287
  • ZoningRS: SFR. Variable Family

Listing Details

  • AgentFrank Cerda
  • OfficeHomeSmart Realty West
Please provide a valid email address.

Price Change History for Paradise Glen Way, San Marcos, (MLS® #NDP2503423)

Date Details Change
Price Reduced from $1,400,000 to $1,299,000 $101,000 (7.21%)

Frank Cerda, HomeSmart Realty West.

Based on information from California Regional Multiple Listing Service, Inc. as of January 21st, 2026 at 7:12pm PST. This information is for your personal, non-commercial use and may not be used for any purpose other than to identify prospective properties you may be interested in purchasing. Display of MLS data is usually deemed reliable but is NOT guaranteed accurate by the MLS. Buyers are responsible for verifying the accuracy of all information and should investigate the data themselves or retain appropriate professionals. Information from sources other than the Listing Agent may have been included in the MLS data. Unless otherwise specified in writing, Broker/Agent has not and will not verify any information obtained from other sources. The Broker/Agent providing the information contained herein may or may not have been the Listing and/or Selling Agent.