Connect

Find us on...

Dashboard

Login using...

Shawn Bengtson

Office Broker - DRE 01236964

  • Office 760-805-7199
Questions?

211 Via Dijon, Newport Beach – $4,200,000

  • 3 Beds
  • 4 Baths
  • 2,108 Sqft
  • .06 Acres
  • 3 Beds
  • 4 Baths
  • 2,108 Sqft
  • .06 Acres

211 Via Dijon

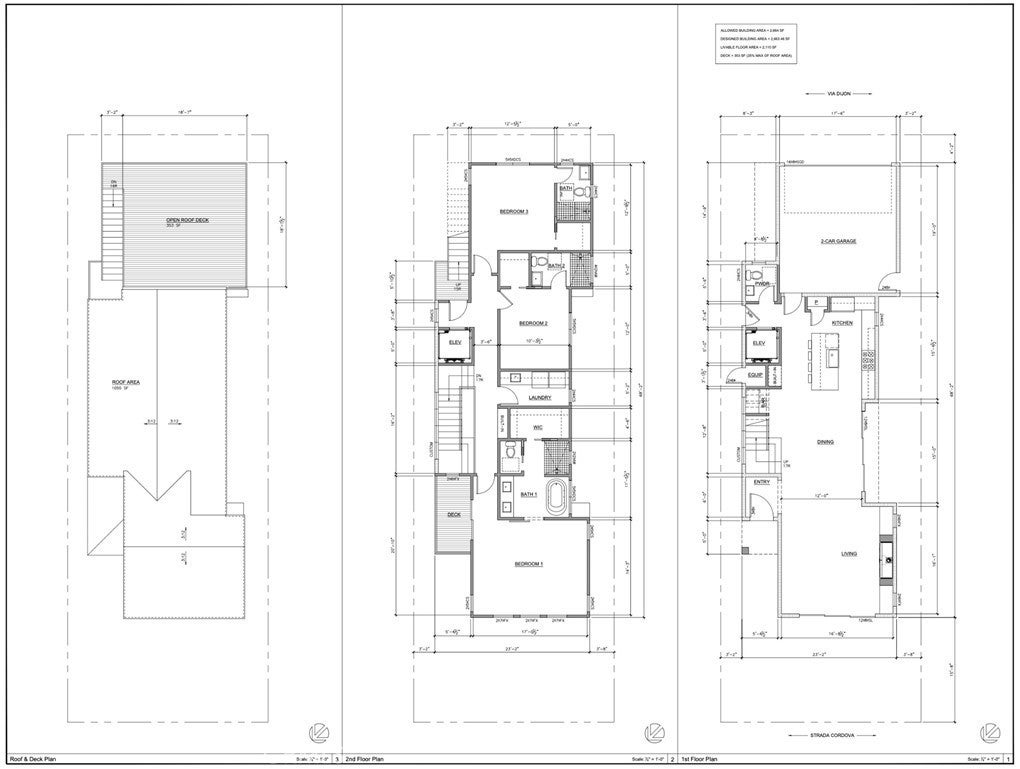
Build Your Dream Home on Lido Isle – Shovel-Ready Opportunity An exceptional opportunity awaits on Lido Isle to create your custom coastal residence without the delays of starting from scratch. The seller has completed all of the heavy lifting—architecture, city, HOA, and engineering approvals—so that the next owner can hit the ground running once the County records the new parcel number. This “shovel-ready” lot includes fully designed plans for a sophisticated 3-bedroom, 3.5-bath home featuring an elevator and rooftop deck, thoughtfully conceived to capture the relaxed yet refined essence of island living. Set within Newport Beach’s premier island enclave, this property offers convenient proximity to the Lido Marina Village, yacht club, tennis and pickleball courts, and the island’s private beaches. Enjoy the rare advantage of beginning your build immediately in one of coastal Orange County’s most desirable neighborhoods—an ideal opportunity to bring your vision to life on Lido Isle. Note: There is not a structure currently on the parcel. Offering is for a lot with plans to build, which will be approved once the APN is recorded. Prior lot was split into two parcels.

Essential Information

  • MLS® #NP25234271
  • Price$4,200,000
  • Bedrooms3
  • Bathrooms4.00
  • Full Baths3
  • Half Baths1
  • Square Footage2,108
  • Acres0.06
  • Year Built2025
  • TypeResidential
  • Sub-TypeSingle Family Residence
  • StatusActive

Community Information

  • Address211 Via Dijon
  • AreaN8 - West Newport - Lido
  • SubdivisionLido Island (LIDO)
  • CityNewport Beach
  • CountyOrange
  • Zip Code92663

Amenities

  • Parking Spaces2
  • ParkingDirect Access, Garage
  • # of Garages2
  • GaragesDirect Access, Garage
  • ViewNone
  • PoolNone

Amenities

Clubhouse, Sport Court, Dock, Fitness Center, Management, Meeting/Banquet/Party Room, Barbecue, Picnic Area, Pier, Playground, Pickleball, Tennis Court(s)

Interior

  • InteriorTile, Wood
  • Interior FeaturesElevator, All Bedrooms Up
  • HeatingForced Air
  • CoolingCentral Air
  • FireplaceYes
  • FireplacesLiving Room
  • # of Stories3
  • StoriesThree Or More

Exterior

  • Lot DescriptionZeroToOneUnitAcre
  • RoofSlate

School Information

  • DistrictNewport Mesa Unified

Additional Information

  • Date ListedOctober 7th, 2025
  • Days on Market43
  • HOA Fees1600
  • HOA Fees Freq.Annually

Listing Details

  • AgentJon Flagg
  • OfficePacific Sotheby's Int'l Realty
Please provide a valid email address.

Jon Flagg, Pacific Sotheby's Int'l Realty.

Based on information from California Regional Multiple Listing Service, Inc. as of November 19th, 2025 at 7:35pm PST. This information is for your personal, non-commercial use and may not be used for any purpose other than to identify prospective properties you may be interested in purchasing. Display of MLS data is usually deemed reliable but is NOT guaranteed accurate by the MLS. Buyers are responsible for verifying the accuracy of all information and should investigate the data themselves or retain appropriate professionals. Information from sources other than the Listing Agent may have been included in the MLS data. Unless otherwise specified in writing, Broker/Agent has not and will not verify any information obtained from other sources. The Broker/Agent providing the information contained herein may or may not have been the Listing and/or Selling Agent.