Connect

Find us on...

Dashboard

Login using...

Shawn Bengtson

Office Broker - DRE 01236964

  • Office 760-805-7199
Questions?

209 N Dahlia Drive, Anaheim – $875,000

  • 3 Beds
  • 1 Bath
  • 998 Sqft
  • .17 Acres
  • 3 Beds
  • 1 Bath
  • 998 Sqft
  • .17 Acres

209 N Dahlia Drive

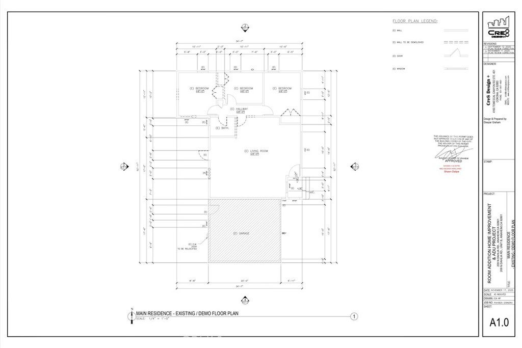
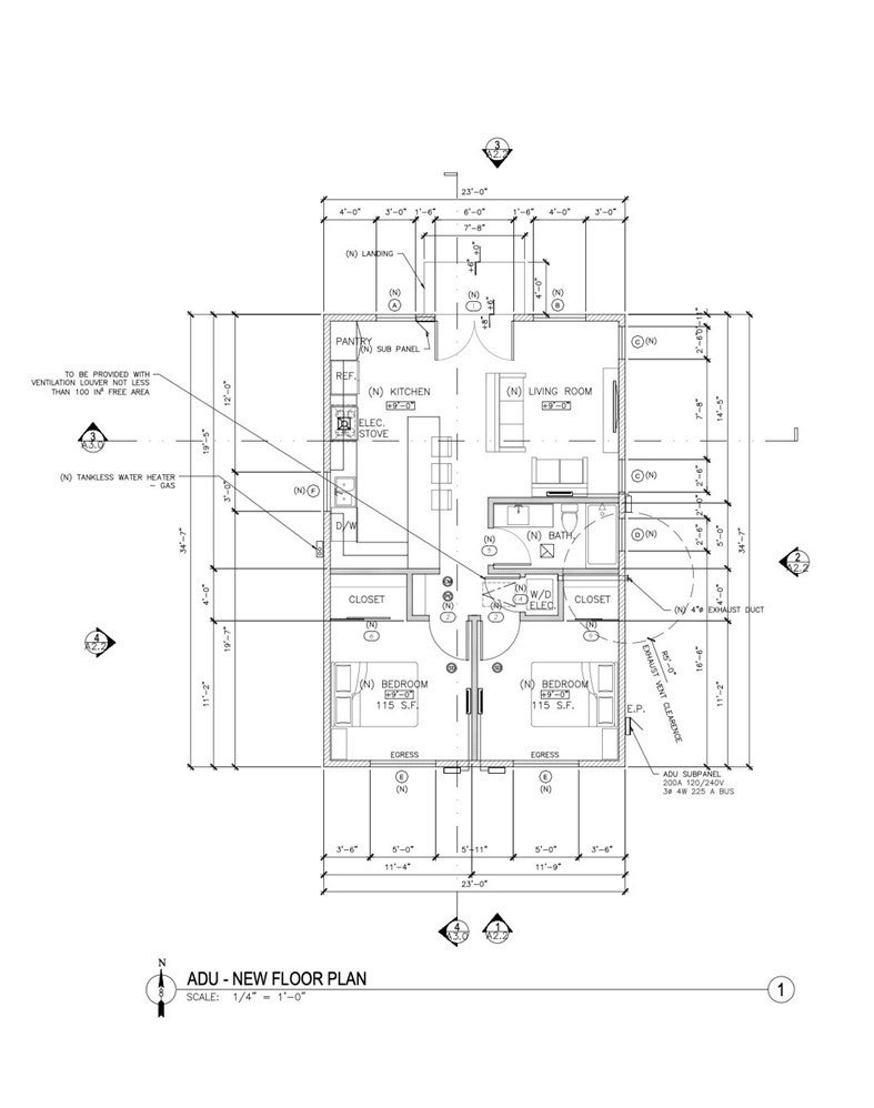
209 N Dahlia Dr offers a rare opportunity to step into a thoughtfully planned project where approximately seven months of design, engineering, and permitting have already been completed by the seller. Approved plans and active permits are in place to transform the main residence into a 3 bedroom and 2 bathroom home with a dedicated laundry room. The home has been taken down to framing, creating a clean slate for the next phase of construction. Underground sewer, water, and gas work has been completed, inspected and signed off by the city at the rough stage. The plans also include a detached ADU, approximately 795 sq ft, designed as a 2 bedroom, 1 bathroom unit. The ADU plans are fully approved by the City of Anaheim and the foundation is prepped and ready for concrete pour. This property allows a buyer to take over at a stage where the vision is approved, the groundwork is underway, and the remaining construction can be completed to their own preferences and timeline. Buyer to verify all plans, permits, square footage, and construction status with the City of Anaheim.

Essential Information

  • MLS® #NP26012991
  • Price$875,000
  • Bedrooms3
  • Bathrooms1.00
  • Full Baths1
  • Square Footage998
  • Acres0.17
  • Year Built1953
  • TypeResidential
  • Sub-TypeSingle Family Residence
  • StatusActive

Community Information

  • Address209 N Dahlia Drive
  • Area79 - Anaheim West of Harbor
  • Subdivision/
  • CityAnaheim
  • CountyOrange
  • Zip Code92801

Amenities

  • Parking Spaces2
  • # of Garages2
  • ViewNeighborhood
  • PoolNone

Interior

  • Interior FeaturesAll Bedrooms Down
  • CoolingNone
  • FireplacesNone
  • # of Stories1
  • StoriesOne

Exterior

  • Lot DescriptionBack Yard

School Information

  • DistrictAnaheim Union High

Additional Information

  • Date ListedJanuary 21st, 2026
  • Days on Market2

Listing Details

  • AgentKacey Taormina
  • OfficeCompass
Please provide a valid email address.

Kacey Taormina, Compass.

Based on information from California Regional Multiple Listing Service, Inc. as of January 25th, 2026 at 2:21pm PST. This information is for your personal, non-commercial use and may not be used for any purpose other than to identify prospective properties you may be interested in purchasing. Display of MLS data is usually deemed reliable but is NOT guaranteed accurate by the MLS. Buyers are responsible for verifying the accuracy of all information and should investigate the data themselves or retain appropriate professionals. Information from sources other than the Listing Agent may have been included in the MLS data. Unless otherwise specified in writing, Broker/Agent has not and will not verify any information obtained from other sources. The Broker/Agent providing the information contained herein may or may not have been the Listing and/or Selling Agent.