Connect

Find us on...

Dashboard

Login using...

Shawn Bengtson

Office Broker - DRE 01236964

  • Office 760-805-7199
Questions?

1121 Broad Street, San Luis Obispo – $0

  • $0 Price
  • .09 Acres
  • 286 DOM
  • $0 Price
  • .09 Acres
  • 286 DOM

1121 Broad Street

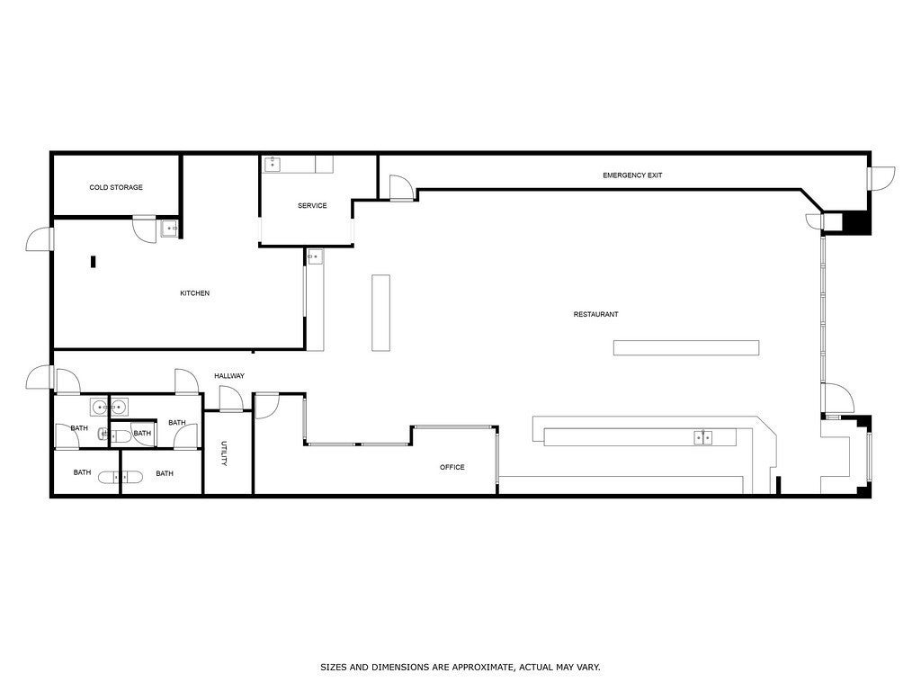
Ideally located in the downtown core, this prime restaurant space benefits from high foot traffic and excellent visibility, ensuring a steady flow of potential customers. The Front of House (FOH) features a spacious dining area, large bar, employee station, manager’s office, and two ADA-compliant restrooms, providing a well-equipped and inviting space for guests. The Back of House (BOH) includes a commercial-grade kitchen with a hood, Ansul fire suppression system, newly rebuilt walk-in refrigerator, grease trap, floor drains, and dedicated prep and dishwashing areas, ensuring efficient and compliant kitchen operations. Asking rate of $11,000.00 per month Gross. Ownership is willing to work with qualified tenants on rent incentives to support their success and help establish a thriving restaurant business.

Essential Information

  • MLS® #NS25022968
  • Bathrooms0.00
  • Acres0.09
  • Year Built1929
  • TypeCommercial Lease
  • Sub-TypeRetail
  • StatusActive

Community Information

  • Address1121 Broad Street
  • AreaSLO - San Luis Obispo
  • CitySan Luis Obispo
  • CountySan Luis Obispo
  • Zip Code93401

Interior

  • # of Stories1

Exterior

  • Lot DescriptionStreet Level

Additional Information

  • Date ListedJanuary 31st, 2025
  • Days on Market286

Listing Details

  • AgentCorban Holland
  • OfficePacifica Commercial Realty
Please provide a valid email address.

Corban Holland, Pacifica Commercial Realty.

Based on information from California Regional Multiple Listing Service, Inc. as of November 13th, 2025 at 3:12pm PST. This information is for your personal, non-commercial use and may not be used for any purpose other than to identify prospective properties you may be interested in purchasing. Display of MLS data is usually deemed reliable but is NOT guaranteed accurate by the MLS. Buyers are responsible for verifying the accuracy of all information and should investigate the data themselves or retain appropriate professionals. Information from sources other than the Listing Agent may have been included in the MLS data. Unless otherwise specified in writing, Broker/Agent has not and will not verify any information obtained from other sources. The Broker/Agent providing the information contained herein may or may not have been the Listing and/or Selling Agent.