Connect

Find us on...

Dashboard

Login using...

Shawn Bengtson

Office Broker - DRE 01236964

  • Office 760-805-7199
Questions?

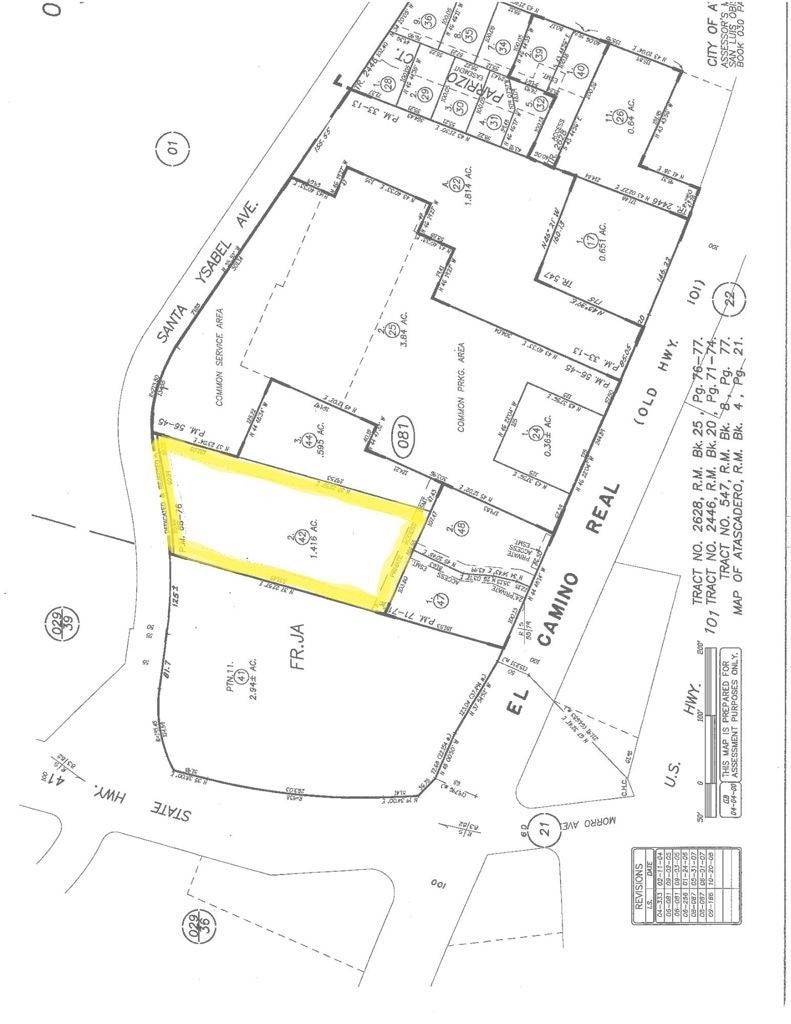
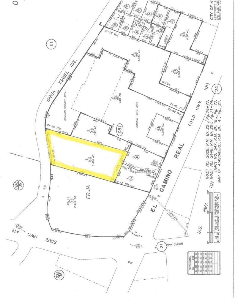
7065 El Camino Real, Atascadero – $10,271

  • $10.3k Price
  • 1.73 Acres
  • 244 DOM
  • $10.3k Price
  • 1.73 Acres
  • 244 DOM

7065 El Camino Real

Prime retail space available in one of Atascadero’s most successful shopping centers! Anchored by major tenants including Vons, Starbucks, Panda Express, Carl’s Jr., Rite Aid, US Bank, American Riviera Bank, Mr. Pickles, and more, this center enjoys consistent foot traffic and strong visibility. Offered at $1.50 per square foot, estimated triple net (NNN) charges are just $0.17 per square foot (well below market average), this location is a standout value. The space features rear access with a loading door, interior improvements, ample parking, and high-visibility signage. With no restrictions on business type, this versatile space is perfect for uses such as a furniture store, small market, mattress shop, thrift store, or other retail concepts.

Essential Information

  • MLS® #NS25137702
  • Price$10,271
  • Bathrooms0.00
  • Acres1.73
  • TypeCommercial Lease
  • Sub-TypeRetail
  • StatusActive

Community Information

  • Address7065 El Camino Real
  • AreaATSC - Atascadero
  • CityAtascadero
  • CountySan Luis Obispo
  • Zip Code93422

Interior

  • HeatingForced Air
  • # of Stories1

Exterior

  • Lot DescriptionLevel, Paved

Additional Information

  • Date ListedJune 19th, 2025
  • Days on Market244
  • ZoningCR

Listing Details

  • AgentRichard Shannon
  • OfficeCentury 21 Masters
Please provide a valid email address.

Richard Shannon, Century 21 Masters.

Based on information from California Regional Multiple Listing Service, Inc. as of February 18th, 2026 at 3:45am PST. This information is for your personal, non-commercial use and may not be used for any purpose other than to identify prospective properties you may be interested in purchasing. Display of MLS data is usually deemed reliable but is NOT guaranteed accurate by the MLS. Buyers are responsible for verifying the accuracy of all information and should investigate the data themselves or retain appropriate professionals. Information from sources other than the Listing Agent may have been included in the MLS data. Unless otherwise specified in writing, Broker/Agent has not and will not verify any information obtained from other sources. The Broker/Agent providing the information contained herein may or may not have been the Listing and/or Selling Agent.