Connect

Find us on...

Dashboard

Login using...

Shawn Bengtson

Office Broker - DRE 01236964

  • Office 760-805-7199
Questions?

104 W Mariposa Street, Avenal – $375,000

  • 3 Beds
  • 2 Baths
  • 1,248 Sqft
  • .23 Acres
  • 3 Beds
  • 2 Baths
  • 1,248 Sqft
  • .23 Acres

104 W Mariposa Street

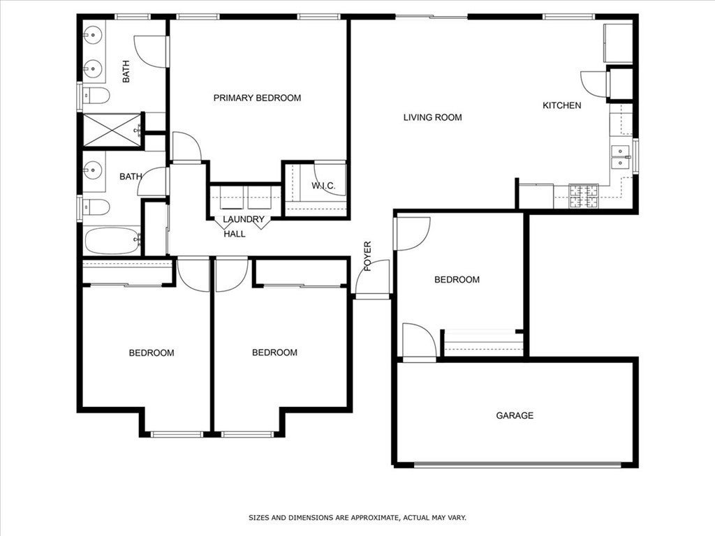
Welcome to 104 W Mariposa Street — a welcoming 3 bedroom, 2 bathroom home built in 2013, offering flexible living spaces and a spacious backyard perfect for entertaining. Inside, you’ll find an inviting open floor plan with updated wood-look tile flooring, a bright kitchen with tile countertops, and a comfortable dining area that flows into the living room. Originally a two-car garage, the space has been thoughtfully converted to include a bonus bedroom, an office, and a home gym — ideal for remote work, hobbies, or accommodating guests. The large backyard is your own private retreat, featuring an above-ground pool, a concrete patio with room for outdoor dining, lush lawn, and mature palm trees for that resort-style feel. Located in a peaceful neighborhood, this home offers comfort, versatility, and plenty of room to grow. Don’t miss the chance to make it yours!

Essential Information

  • MLS® #NS25181740
  • Price$375,000
  • Bedrooms3
  • Bathrooms2.00
  • Full Baths2
  • Square Footage1,248
  • Acres0.23
  • Year Built2013
  • TypeResidential
  • Sub-TypeSingle Family Residence
  • StatusActive Under Contract

Community Information

  • Address104 W Mariposa Street
  • Area699 - Not Defined
  • CityAvenal
  • CountyKings
  • Zip Code93204

Amenities

  • ViewNone
  • Has PoolYes
  • PoolPrivate, Above Ground

Interior

  • HeatingForced Air
  • CoolingCentral Air
  • FireplacesNone
  • # of Stories1
  • StoriesOne

Interior Features

All Bedrooms Down, Main Level Primary

Exterior

Lot Description

Back Yard, Front Yard, Garden, Lawn, Yard

School Information

  • DistrictOther

Additional Information

  • Date ListedAugust 11th, 2025
  • Days on Market115

Listing Details

  • AgentTy Christensen
  • OfficeWebber-Nelson Real Estate, Inc
Please provide a valid email address.

Price Change History for 104 W Mariposa Street, Avenal, (MLS® #NS25181740)

Date Details Change
Status Changed from Active to Active Under Contract
Price Reduced from $385,000 to $375,000 $10,000 (2.60%)

Ty Christensen, Webber-Nelson Real Estate, Inc.

Based on information from California Regional Multiple Listing Service, Inc. as of December 5th, 2025 at 3:56pm PST. This information is for your personal, non-commercial use and may not be used for any purpose other than to identify prospective properties you may be interested in purchasing. Display of MLS data is usually deemed reliable but is NOT guaranteed accurate by the MLS. Buyers are responsible for verifying the accuracy of all information and should investigate the data themselves or retain appropriate professionals. Information from sources other than the Listing Agent may have been included in the MLS data. Unless otherwise specified in writing, Broker/Agent has not and will not verify any information obtained from other sources. The Broker/Agent providing the information contained herein may or may not have been the Listing and/or Selling Agent.