Connect

Find us on...

Dashboard

Login using...

Shawn Bengtson

Office Broker - DRE 01236964

  • Office 760-805-7199
Questions?

16500 Bake Parkway, Irvine – $2,625,000

  • $2.6M Price
  • .06 Acres
  • 617 DOM
  • $2.6M Price
  • .06 Acres
  • 617 DOM

16500 Bake Parkway

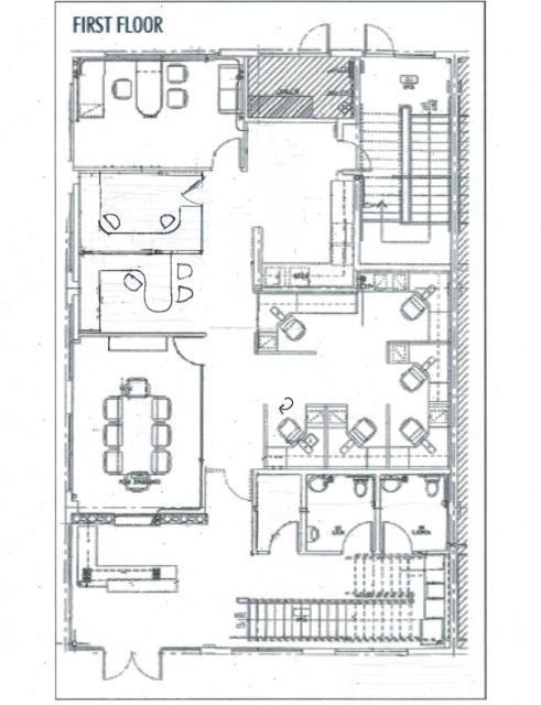
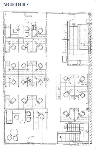
PRICE REDUCED by $50K! This high image building in Bacchus Office Park has a very professional environment with modern colors and décor, offering a great first impression for current and potential clients. The building has a double-door lobby entrance with a floor-to-ceiling water-wall feature. Suite 100 space includes a large conference room surrounded by glass walls, as well as the water feature from the lobby, an executive office, and two open areas for workstations currently configured with 9 workstations, as well as a large copy/file room. Suite 200 has two executive offices and a large workstation area currently with 20 workstations. The lobby contains restrooms and kitchenette. No expense was spared when building out this building, including high-end finishes, lobby water feature, magnetic lock security system, enhanced dropped ceiling design, and Cat 6 phone and internet cabling. The building also offers creative features including full-wall whiteboard space and multi-teared ceilings. Located in the highly desired and convenient Irvine Spectrum area. Immediate 5, 405, & 133 Freeway Access. Building Signage facing Bake Parkway and the parking lot. Zoned as 4.2D-Community Commercial - Not R&D. Its zoned usage is office with 4:1000 parking. Perfect for owner-occupied and/or investment use. Highlights: - Professional office park - Bacchus Office Park - Ideal 4.2D Zoning for General Office - Quick & easy 5, 405, & 133 Freeway Access - Building Signage facing Bake Pkwy and parking lot - Divisible Suites, by Floor. Furniture and fixtures - most can be included in the sale at a reasonable offer​​‌​​​​‌​​‌‌​​‌​​​‌‌​​​​​​‌‌​‌‌​​‌​​​‌‌​ price.

Essential Information

  • MLS® #OC24043839
  • Price$2,625,000
  • Bathrooms0.00
  • Acres0.06
  • Year Built2007
  • TypeCommercial Sale
  • Sub-TypeOffice
  • StatusActive Under Contract

Community Information

  • Address16500 Bake Parkway
  • AreaIRSP - Irvine Spectrum
  • CityIrvine
  • CountyOrange
  • Zip Code92618

Amenities

  • Parking Spaces20

Interior

  • HeatingCentral, Forced Air, Heat Pump
  • CoolingCentral Air, Dual, Heat Pump
  • # of Stories2

Exterior

  • ExteriorBlock, Drywall
  • Lot DescriptionStreet Level
  • RoofAsphalt
  • ConstructionBlock, Drywall

Additional Information

  • Date ListedFebruary 29th, 2024
  • Days on Market617

Listing Details

  • AgentPatrick Norris
  • OfficeColdwell Banker Realty
Please provide a valid email address.

Price Change History for 16500 Bake Parkway, Irvine, (MLS® #OC24043839)

Date Details Change
Status Changed from Active to Active Under Contract
Price Reduced from $2,675,000 to $2,625,000 $50,000 (1.87%)
Status Changed from Active Under Contract to Active
Status Changed from Active to Active Under Contract
Price Reduced from $2,749,000 to $2,675,000 $74,000 (2.69%)
Show More (1)

Patrick Norris, Coldwell Banker Realty.

Based on information from California Regional Multiple Listing Service, Inc. as of November 11th, 2025 at 1:55am PST. This information is for your personal, non-commercial use and may not be used for any purpose other than to identify prospective properties you may be interested in purchasing. Display of MLS data is usually deemed reliable but is NOT guaranteed accurate by the MLS. Buyers are responsible for verifying the accuracy of all information and should investigate the data themselves or retain appropriate professionals. Information from sources other than the Listing Agent may have been included in the MLS data. Unless otherwise specified in writing, Broker/Agent has not and will not verify any information obtained from other sources. The Broker/Agent providing the information contained herein may or may not have been the Listing and/or Selling Agent.